NEU - Sehr schöne und helle 2-Zimmerwohnung mit Terrasse!

Wohnung zur Miete in 8055 Graz-Puntigam - Gesamtmiete: 674,63 € / Objektnummer: 98752
Ausstattung: Boden Fahrstuhl Wohnküche / offene Küche Bad Zentralheizung Fußbodenheizung Terrasse

Preisinformationen

Gesamtmiete:
674,63 € / Monat
Betriebskosten netto:
93,08 € / Monat
Umsatzsteuer:
61,33 €
Kaution:
3 Bruttomonatsmieten
Provision:
Gemäß Erstauftraggeberprinzip bezahlt der Abgeber die Provision.

Fakten

Objektnummer:
98752
Objekttyp:
Wohnung
Terrasse:
1
Nutzfläche:
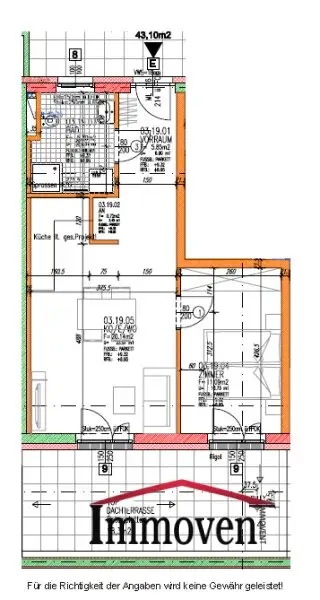
43,1 m²
Zimmer:
2
Badezimmer:
1
Toilette:
1
Stockwerk:
3
Neubau:
Ja
Verfügbarkeit:
Verfügbar

Beschreibung

Sie suchen ein schönes Zuhause? Wir haben ein Angebot für Sie! 
Die 2-Zimmerwohnung befindet sich im 3. Obergeschoss, bietet eine Nutzfläche von ca. 43 m² und eine Terrasse.

Raumaufteilung:
+ Wohnraum mit integrierter Küche und Ausgang auf die Terrasse
+ 1 Zimmer mit Ausgang auf die Terrasse
+ Bad mit Dusche, Toilette und Fenster
+ Vorraum
+ Terrasse (ca. 18 m²)

Ausstattung:
+ Parkettböden in den Wohnräumen
+ Fliesen in den Nebenräumen
+ moderne, vollausgestattete Küche
+ Fußbodenheizung
+ Anschluss für die Waschmaschine

Zu dieser schönen Wohnung gehört auch ein im Haus befindliches Kellerabteil.

Bitte beachten Sie, dass es sich bei den Fotos um Symbolbilder einer bauähnlichen Wohnung im selben Haus handelt!

_Senden Sie uns Ihre Anfrage, gerne zeigen wir Ihnen dieses Objekt._

Lage und Infrastruktur:
Der Verkehrsknotenpunkt Puntigam mit Straßenbahn und diversen Buslinien ist in wenigen Minuten erreichbar. Verschiedene Einkaufsmöglichkeiten wie das Shopping City Seiersberg befinden sich in der näheren Umgebung. Schulen und ein Kindergarten befinden sich in unmittelbarer Nachbarschaft.

Öffentliche Verkehrsmittel:
+ Buslinien: 62, 78
+ S-Bahnhof Puntigam.
_ _ _ _ _ _ _ _ _ _ _ _ _ _ _ 

Über weitere Informationen zu diesem bzw. ähnlichen Objekten aus unserem bestehenden Portfolio informieren wir Sie sehr gerne persönlich auf Anfrage unter:

Christina Dobnikar
+43 (0)664 12 13 731
ch.dobnikar@immovent.at

Die obigen Angaben über dieses Objekt erfolgen mit der Sorgfalt eines ordentlichen Immobilienmaklers und basieren auf den Angaben und Informationen des Eigentümers. Daher können wir keine Gewähr für die Richtigkeit der Angaben leisten.

Der Immobilienmakler erklärt, dass er – entgegen dem in der Immobilienwirtschaft üblichen Geschäftsgebrauch des Doppelmaklers – einseitig nur für den Vermieter tätig ist.

Infrastruktur / Entfernungen

Gesundheit
Arzt <250m
Apotheke <500m
Klinik <4.500m
Krankenhaus <2.000m

Kinder & Schulen
Schule <500m
Kindergarten <500m
Universität <4.250m
Höhere Schule <4.500m

Nahversorgung
Supermarkt <250m
Bäckerei <1.750m
Einkaufszentrum <500m

Sonstige
Geldautomat <250m
Bank <250m
Post <500m
Polizei <1.750m

Verkehr
Bus <250m
Straßenbahn <750m
Autobahnanschluss <1.750m
Bahnhof <1.000m
Flughafen <4.250m

Angaben Entfernung Luftlinie / Quelle: OpenStreetMap
Beschreibung weiterlesen

Lage und Verkehrsanbindung

Graz Puntigam Bahnhof

Energieeffizienz

HWB:
57 kWh/(m²*a)
HWB Klasse:
C
fGEE:
0,88
fGEE Klasse:
B
Energieausweisart:
Energiebedarfs-ausweis
Gültig bis:
06.07.2033

Dokumente

Grundrisse

Lageplan

8055 Graz-Puntigam | Graz (Stadt)

Lade...
Christina Dobnikar

Christina Dobnikar
Makler

Immovent GmbH

Lade...

Fotomix

Bild 1 Bild 2 Bild 3 Bild 4 Bild 5 Bild 6 Bild 7 Bild 8 Bild 9