NEU - Shared Office mit Altbaufeeling im Herzen von Tulln

Immobilie zur Miete in 3430 Tulln an der Donau / Objektnummer: 4923
Ausstattung: Boden Etagenheizung Terrasse
Zimmer 2
Zimmer 2
Gang
Eingangsbereich
Küche
Küche
Küche
Badezimmer mit Walk-in-Dusche
WC mit Handwaschbecken
Außenansicht
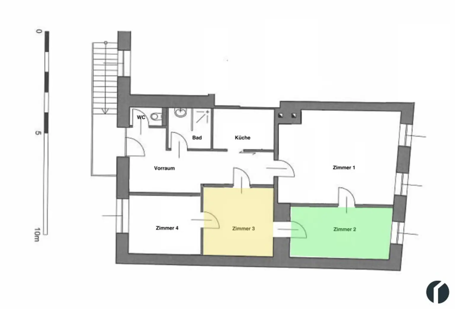
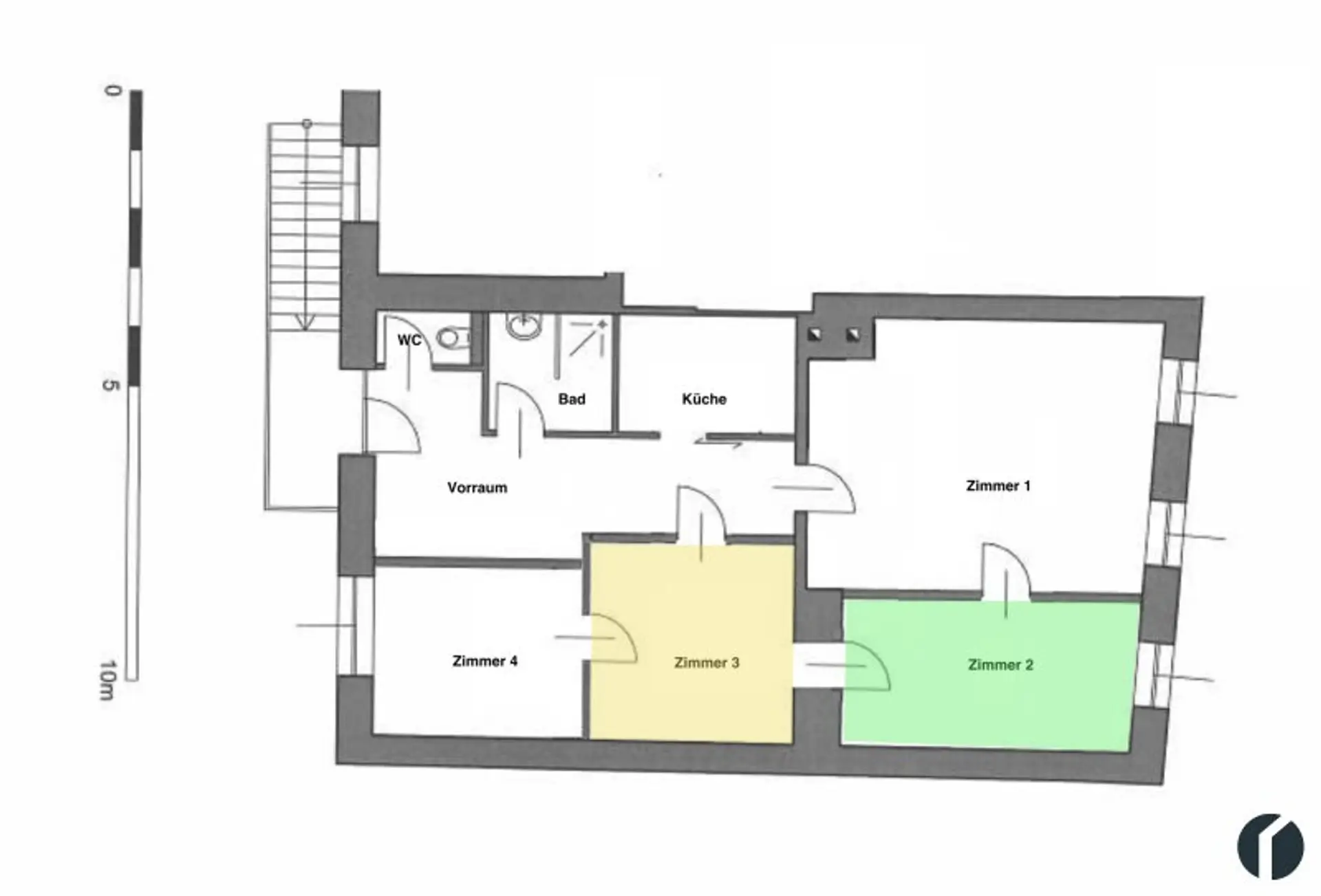
Grundriss

Preisinformationen

Gesamtmiete (exkl. USt.):
375,00 € / Monat
Umsatzsteuer:
75,00 €
Kaution:
1.350,00 €
Vermittlungsprovision:
Ja
Provision:
900,00 € inkl. 20% USt.

Fakten

Objektnummer:
4923
Terrasse:
1
Bürofläche:
13 m²
Zimmer:
1
Badezimmer:
1
Toilette:
1
Stockwerk:
1
Altbau:
Ja
Zustand:
Modernisiert
Verfügbarkeit:
Verfügbar

Beschreibung

Zur Vermietung gelangt ein eleganter Büroraum im Shared Office im 1. Stock eines Geschäftshauses in der Wiener Straße. Die sehr schön ausgestattete Räumlichkeit im denkmalgeschützten Gebäude bietet modernes Arbeiten im eleganten, historischen Ambiente. Der schöne Fischgrät Parkett und die hohen Räume, Details wie das historische Fenster mit Ornament Rahmen, die restaurierten Türstöcke, all das macht den Charme dieser wunderbaren Räumlichkeit aus. Die Technik, Küche, Bad und WC Anlage sind aber auf dem neuesten Stand, so dass das Arbeiten zum Vergnügen wird. 

Die zentrale Lage in unmittelbarer Nähe der Parkgarage Albrechtsgasse bietet Ihnen eine gute Erreichbarkeit sowie Parkmöglichkeiten (1 Stunde gratis Parken in der Parkgarage Albrechtsgasse).

Der ca. 13 m2 große Raum verfügt über Fischgrät-Parkettboden sowie ein großes Fenster mit Blick auf die Wiener Straße.
Die All-inclusive Bruttomonatsmiete für diesen Raum beträgt € 450,- inkl. 20 % Ust., Betriebskosten, Strom, Gas sowie Reinigung und 80MBit-Internetanschluss. Befristung auf 4 Jahre. Der Raum wird ausschließlich zur Nutzung als Büro ohne Kundenverkehr vermietet. 

Die Gemeinschaftsräume bieten Ihnen ein Vorzimmer mit Garderobe, eine Küche mit allen Geräten (Herd, Geschirrspüler, Dunstabzug, Kühl- Gefrierkombination, Mikrowelle), ein Bad mit Dusche sowie ein WC mit Handwaschbecken. Auch die vor der Eingangstüre liegende ca. 5 m2 Terrasse kann von allen Mietern genutzt werden.

Technische Details:

* Heizung: Gastherme, Radiatoren in den Zimmern, Fußbodenheizung im Vorraum, Bad und Küche
* Internet: A1 Glasfaser
* Böden: Fliesen in Holzoptik, Fischgrät-Parkett
* Fenster: Innenjalousien, 2-fach verglaste Holzfenster

Hinweis: Die Angaben zu dieser Immobilie sind ohne Gewähr. Auf Grund der Nachweispflicht gegenüber dem Eigentümer ersuchen wir Sie um Verständnis, dass wir nur Anfragen mit vollständiger Anschrift und Telefonnummer bearbeiten können, sowie keine Auskünfte betreffend Objektunterlagen und der genauen Liegenschaftsadresse erteilen können. 

Der Vermittler ist als Doppelmakler tätig.

Infrastruktur / Entfernungen

Gesundheit
Arzt <500m
Apotheke <500m
Klinik <6.500m
Krankenhaus <1.500m

Kinder & Schulen
Schule <500m
Kindergarten <500m
Universität <1.500m
Höhere Schule <1.500m

Nahversorgung
Supermarkt <500m
Bäckerei <500m
Einkaufszentrum <500m

Sonstige
Bank <500m
Geldautomat <500m
Post <500m
Polizei <500m

Verkehr
Bus <500m
Bahnhof <500m
Autobahnanschluss <3.500m
Flughafen <5.000m

Angaben Entfernung Luftlinie / Quelle: OpenStreetMap
Beschreibung weiterlesen

Lage und Verkehrsanbindung

Nähe Hauptplatz
Nähe Donaulände
Nähe Parkhaus Albrechtsgasse

Hauptplatz

Energieeffizienz

HWB:
153 kWh/(m²*a)
HWB Klasse:
D
fGEE:
3,27
Energieausweisart:
Energiebedarfs-ausweis
Gültig bis:
07.05.2023

Grundriss

Lageplan

3430 Tulln an der Donau | Tulln

Lade...
Claudia Friesinger

Claudia Friesinger
Geschäftsführerin

Immobilien86 KG

Anrufen
Lade...

Fotomix

Bild 1 Zimmer 2 Zimmer 2 Gang Eingangsbereich Küche Küche Küche Badezimmer mit Walk-in-Dusche WC mit Handwaschbecken Außenansicht