NEU - Singel - Wohnung Nähe U6 Alserstraße. Zentral, modern und mit Blick! Miete inklusive Heizkosten und Warmwasser!

Wohnung zur Miete in 1170 Wien - Gesamtmiete: 679,05 € / Objektnummer: 1609/46897
Ausstattung: Barrierefrei Fahrstuhl Teeküche Bad Zentralheizung
Zimmer
Zimmer
Zimmer
Ausblick
Badezimmer
Supermarkt im Haus

Preisinformationen

Gesamtmiete:
679,05 € / Monat
Betriebskosten netto:
60,50 € / Monat
Heizkosten netto:
108,00 €
Umsatzsteuer:
49,95 €
Kaution:
2.500,00 €
Provision:
Gemäß Erstauftraggeberprinzip bezahlt der Abgeber die Provision.

Fakten

Objektnummer:
1609/46897
Objekttyp:
Wohnung
Keller Fläche:
2 m²
Wohnfläche:
23 m²
Toilette:
1
Stockwerk:
4
Baujahr:
1972
Verfügbarkeit:
Verfügbar

Beschreibung

Kompakte 1-Zimmer Wohnung im 4. Liftstock! Sehr gute Infrastruktur!

Hell, sehr gut gelegen, mit Südausrichtung und toller öffentlichen Anbindung - eine perfekte Lösung für Pendler, Singles oder Pärchen, die das urbane Leben lieben und eine zentrale Lage der Stadt genießen möchten.
Auch für junge Menschen bietet die Nähe zur Universität und höheren Schulen eine ideale Voraussetzung. 

Diese helle Wohnung liegt nahe AKH und St. Anna Krankenhaus, nur wenige Minuten zu Fuß zur U6 Station Alserstraße. Die Straßenbahn 43 hält gleich ums Eck. 

Die Kochnische ist mit zwei Elektrokochplatten, einem kleinen Kühlschrank und einer Spüle ausgestattet, der Wohnbereich und das Vorraum mit dem Laminatboden, das Badezimmer (mit WC) mit modernen Fliesen.

Das Apartment wird über die Zentralheizung des Hauses beheizt, der Mieter muss sich um keine Therme kümmern.

 

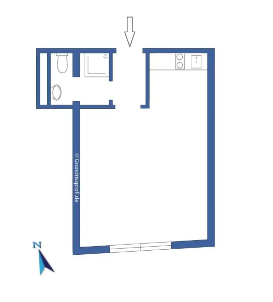
RAUMAUFTEILUNG:

- Vorzimmer mit Zugang zum Wohnzimmer und Bad mit WC

- Wohnzimmer mit einer Küchennische, südseitig ausgerichtet 

- Badezimmer mit Dusche, Waschbecken, Handtuchtrockner und WC

- Kellerabteil

- gemeinschaftliche Waschküche im Keller
 

LAGE- ausgezeichnet!:

- sehr gute öffentliche Verkehrsanbindung:

* U6 Alserstraße // Straßenbahn 43, 42, 44 // Autobus N43, N8 

- Einkaufsmöglichkeiten beim Spar direkt im Haus, auch viele andere Geschäfte in der unmittelbaren Nähe

Mietkostenaufstellung:

Miete: Euro 439,00
Betriebskosten a Conto derzeit: Euro 60,50
Heizkosten/ Warmwasser a Conto derzeit: Euro 108,00
MWST 10%/20%: Euro 71,55
Gesamtkosten/Monat inkl. Betriebs-, Warmwasser- und Heizkosten: Euro 679,05

Die Angaben beruhen auf Informationen der Eigentümer und/oder Dritter und sind daher ohne Gewähr. Änderungen vorbehalten!

Wir weisen darauf hin, dass zwischen dem Vermittler und dem zu vermittelnden Dritten ein familiäres oder wirtschaftliches Naheverhältnis besteht.

Der Immobilienmakler erklärt, dass er – entgegen dem in der Immobilienwirtschaft üblichen Geschäftsgebrauch des Doppelmaklers – einseitig nur für den Vermieter tätig ist.

Infrastruktur / Entfernungen

Gesundheit
Arzt <100m
Apotheke <50m
Klinik <175m
Krankenhaus <525m

Kinder & Schulen
Schule <275m
Kindergarten <175m
Universität <850m
Höhere Schule <625m

Nahversorgung
Supermarkt <75m
Bäckerei <250m
Einkaufszentrum <500m

Sonstige
Geldautomat <25m
Bank <25m
Post <500m
Polizei <425m

Verkehr
Bus <125m
U-Bahn <300m
Straßenbahn <125m
Bahnhof <325m
Autobahnanschluss <3.025m

Angaben Entfernung Luftlinie / Quelle: OpenStreetMap
Beschreibung weiterlesen

Lage und Verkehrsanbindung

- sehr gute öffentliche Verkehrsanbindung:
* U6 Alserstraße // Straßenbahn 43, 42, 44 // Autobus N43, N8 
- Einkaufsmöglichkeiten beim Spar direkt im Haus, auch viele andere Geschäfte in der unmittelbaren Nähe

Energieeffizienz

HWB:
70,7 kWh/(m²*a)
HWB Klasse:
C
fGEE:
1,31
fGEE Klasse:
C
Energieausweisart:
Energiebedarfs-ausweis
Gültig bis:
21.12.2032

Grundriss

Lageplan

1170 Wien | Wien 17., Hernals

Lade...
Monika Mansoory

Monika Mansoory
RE/MAX Immobilienberaterin

RE/MAX First - REM Immobilienmakler GmbH & Co KG

Lade...

Fotomix

Zimmer Zimmer Zimmer Bild 4 Ausblick Badezimmer Supermarkt im Haus Bild 8