NEU - Six in the City: Hochwertiges Neubau-Apartment, BESTLAGE, 2-Zimmer ZWEITBEZUG mit Loggia! RUHELAGE

Wohnung zur Miete in 1060 Wien - Gesamtmiete: 1.438,35 € / Objektnummer: 63018
Ausstattung: Barrierefrei Rollstuhlgerecht Boden Fahrstuhl Bad Kabel/Satelliten-TV Klimaanlage Tiefgarage Parkplatz Fahrradraum Zentralheizung Fußbodenheizung Loggia

Preisinformationen

Gesamtmiete:
1.438,35 € / Monat
Betriebskosten netto:
144,72 € / Monat
Heizkosten netto:
58,03 €
Umsatzsteuer:
124,70 €
Kaution:
4.315,08 €
Provision:
Gemäß Erstauftraggeberprinzip bezahlt der Abgeber die Provision.

Fakten

Objektnummer:
63018
Objekttyp:
Wohnung
Loggia:
1
Wohnfläche:
49,32 m²
Loggia Fläche:
3,16 m²
Zimmer:
2
Badezimmer:
1
Toilette:
1
Baujahr:
2018
Neubau:
Ja
Letzte Sanierung:
2018
Zustand:
Gepflegt
Verfügbarkeit:
Verfügbar

Beschreibung

Zur befristeten Vermietung gelangt diese komplett ruhig gelegene, helle, toll aufgeteilte und sehr hochwertig ausgestattete ca. 50 m² große Neubauwohnung mit Loggia im 3. Stock eines Neubaus in absoluter Bestlage im 06. Wiener Gemeindebezirk, unmittelbar beim Haus des Meeres gelegen.

 

Bauteil Luftbadgasse:

Top 8: Diese wunderschöne 50m² große Neubauwohnung gliedert sich in einen Wohnbereich mit Einbauküche mit Ausgang auf die Loggia, ein großzügiges Schlafzimmer mit en suite Badezimmer, ein getrenntes WC und einen Vorraum.

**** ZUR VEREINBARUNG eines BESICHTIGUNGSTERMINS kontaktieren SIE uns bitte unter: +43 664 46 21 412 ****
Oder lassen uns eine schriftliche ANFRAGE zukommen! 
 

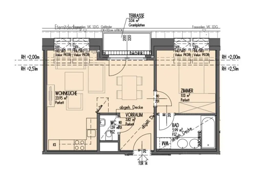
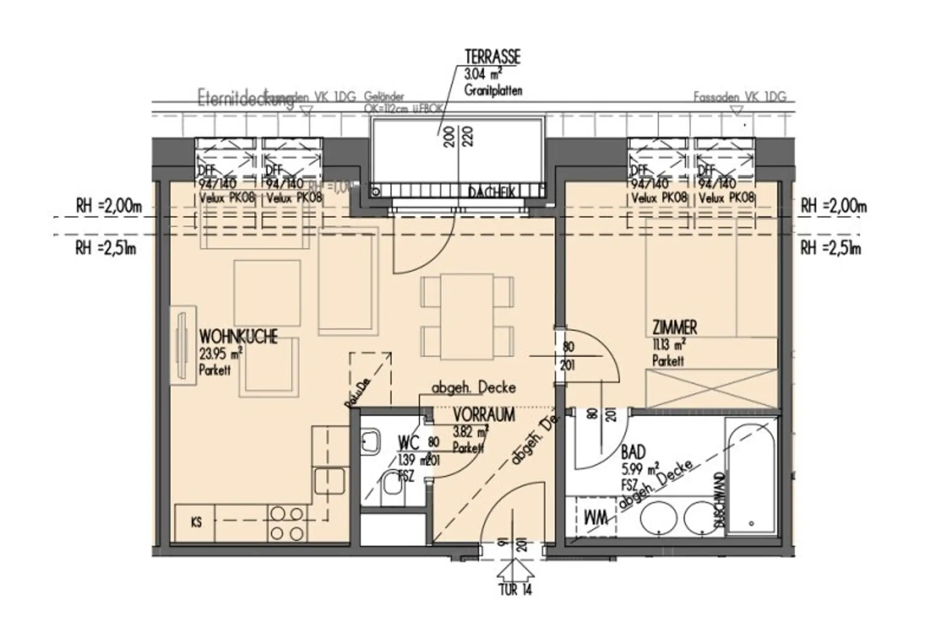
Raumaufteilung:

Sehr durchdachter Grundriss, RUHELAGE!

* Vorraum (3,77 m²)
* getrenntes WC 
* Wohnzimmer mit Einbauküche (25,70 m²)
* südseitige Loggia (3,16m²)
* Schlafzimmer mit en suite Badezimmer (19,29 m²)

 (siehe Plan)

Zustand/Ausstattung:
Bei allen Wohnungen des Projekts und bei dem gesamten Gebäude handelt es sich um einen hochwertigen Zweitbezug! Alle Wohnungen zeichnen sich durch eine sehr gute Ausstattung aus:

* hochwertige Badezimmer mit Doppelwaschtisch
* hochwertiger Parkett
* Klimaanlagen (Dachgeschoss)
* elektrische Außenraffstore
* Türschließer
* voll ausgestattete Küchen
* Sicherheitstüren
* Fußbodenheizung
* SAT-Anschluss sowie UPC-Verkabelung
* Glasfaserkabel
* uvm.

Haus:
Bei dem Gebäude handelt es sich um ein aus zwei Bauteilen bestehendes neu errichtetes Wohnhaus. Der eine Bauteil ist völlig ruhig in der Luftbadgasse, der andere Bauteil in der Gumpendorferstraße gelegen und bietet einen tollen Ausblick auf das Haus des Meeres und die umliegenden Gebäude. Beide Bauteile verfügen über einen Lift, der von der Tiefgarage bis zu den Dachgeschossen führt, weshalb das Gebäude komplett barrierefrei zu begehen ist. Die komplett trockenen Einlagerungsräume bieten zusätzlichen Stauraum für die zukünftigen Bewohner des Hauses. Im Kellergeschoss befindet sich eine Waschküche (mit Trockner) sowie ein Fahrrad- und Kinderwagenabstellraum.
 
Verkehrsanbindung:
Die Wohnung ist mit den Buslinien 13A, 57A und N71 sowie mit den Ubahn-Stationen U3 Neubaugasse (5 Gehminuten), U4 Kettenbrückengasse (5 Gehminuten) und U6 Gumpendorferstraße (20 Gehminuten) perfekt an das öffentliche Verkehrsnetz angebunden.
 
Lage: 

Die Wohnung ist in einer der begehrtesten Lagen Wiens gelegen und besticht mit einer unglaublichen Vielfalt an Unterhaltungs- und Freizeitaktivitäten, welche alle fußläufig zu erreichen sind.

Beginnend vom Apollo Cineplexx Kino, eines der größten Kinos Wiens, über das Haus des Meeres bis hin zur berühmten Shoppingmeile Mariahilferstraße findet sich eine Vielzahl an Freizeit- und Kulturaktivitäten in unmittelbarer Nähe. Auch alle Geschäfte des täglichen Bedarfs sowie Arztpraxen sind hier zu finden. In nur 10 Gehminuten befindet man sich schon in der Wiener Innenstadt und erreicht das Museumsquartier sowie das Kunst- und Naturhistorische Museum, welche Besucher aus der ganzen Welt anlocken. Der bunte Wiener Naschmarkt kann in nur 5 Minuten fußläufig erreicht werden und lässt Sie in ein multikulturelles Spezialitätenparadies eintauchen.

Auch kulinarisch werden Sie hier nichts missen- die Gumpendorferstraße sowie die Mariahilferstraße bieten eine hohe Varietät an Restaurants, Bars und Kneipen, hier findet sich für jeden Geschmack etwas Passendes.

Mehrere Volkschulen, Gymnasien und Kindergärten sind fußläufig erreichbar. Die Technische Universität liegt 10 Gehminuten entfernt. Die Universität Wien ist mit öffentlichen Verkehrsmitteln gut innerhalb von 20 Minuten zu erreichen.

Preis:
Die monatliche Gesamtmiete (inkl. Betriebskosten und Ust.) beträgt 1.438,36 €

Das Haus verfügt über eine großzügige Tiefgarage. Die Anmietung eines Stellplatzes kostet monatlich 120,00 € inkl. BK und USt. 

Die Vermietung erfolgt befristet auf 5 Jahre. Die Kaution beträgt 4.315,08 €

Mietbeginn: 01.07.2026

 

Das Kleingedruckte:

Wir weisen ausdrücklich auf unser wirtschaftliches Naheverhältnis mit dem Abgeber/ der Abgeberin hin! 

Wir sind in unserer Position als Vermittler als Doppelmakler tätig. 

Für die Erstellung des Mietvertrags in ein Honorar in der Höhe von € 180 an die Hausverwaltung zu entrichten.

Alle hier veröffentlichen Informationen basieren auf den uns von dem Abgeber/ der Abgeberin zur Verfügung gestellten Informationen und wurden nicht selbst erhoben.

Unsere Allgemeinen Geschäftsbedingungen können Sie sowohl in dem Ihnen zugesandten Expose einsehen als auch auf unserer Homepage. Wir weisen ausdrücklich darauf hin, dass diese AGBs Vertragsinhalt werden.

Der Schutz von personenbezogenen Daten ist uns wichtig und auch gesetzlich gefordert. Die Verarbeitung Ihrer personenbezogenen Daten erfolgt nach den datenschutzrechtlichen Bestimmungen. Auf unserer Homepage (unter Datenschutzinformation) finden Sie eine Übersicht die Sie über die wichtigsten Aspekte der Verarbeitung personenbezogener Daten informieren soll.

Irrtum und Änderungen vorbehalten. 

 

Wir weisen darauf hin, dass zwischen dem Vermittler und dem zu vermittelnden Dritten ein familiäres oder wirtschaftliches Naheverhältnis besteht.

Der Immobilienmakler erklärt, dass er – entgegen dem in der Immobilienwirtschaft üblichen Geschäftsgebrauch des Doppelmaklers – einseitig nur für den Vermieter tätig ist.

Infrastruktur / Entfernungen

Gesundheit
Arzt <250m
Apotheke <250m
Klinik <500m
Krankenhaus <1.000m

Kinder & Schulen
Schule <250m
Kindergarten <250m
Universität <750m
Höhere Schule <750m

Nahversorgung
Supermarkt <250m
Bäckerei <250m
Einkaufszentrum <500m

Sonstige
Geldautomat <500m
Bank <500m
Post <500m
Polizei <250m

Verkehr
Bus <250m
U-Bahn <250m
Straßenbahn <750m
Bahnhof <250m
Autobahnanschluss <4.000m

Angaben Entfernung Luftlinie / Quelle: OpenStreetMap
Beschreibung weiterlesen

Lage und Verkehrsanbindung

Apollo Cineplexx Kino, Haus des Meeres, Shoppingmeile Mariahilferstraße, Wiener Innenstadt, Museumsquartier, Kunst- und Naturhistorische Museum, Wiener Naschmarkt

Energieeffizienz

HWB:
28,89 kWh/(m²*a)
fGEE:
0,79
Energieausweisart:
Energiebedarfs-ausweis

Grundrisse

Lageplan

1060 Wien | Wien 6., Mariahilf

Lade...
Adonia Immobilien

Adonia Immobilien

Adonia Realitätenvermittlung GmbH

Lade...

Fotomix

Bild 1 Bild 2 Bild 3 Bild 4 Bild 5 Bild 6 Bild 7 Bild 8 Bild 9 Bild 10 Bild 11 Bild 12 Bild 13 Bild 14 Bild 15 Bild 16 Bild 17 Bild 18 Bild 19 Bild 20 Bild 21 Bild 22 Bild 23 Bild 24 Bild 25 Bild 26 Bild 27 Bild 28 Bild 29