NEU - Smart City Living | TOP 01

Wohnung zum Kauf in 4400 Steyr - Kaufpreis: 329.400 € / Objektnummer: 96
Ausstattung: Barrierefrei Fahrstuhl Möbliert Kabel/Satelliten-TV Garage Parkplatz Zentralheizung Terrasse Garten
SCL_01 Zugang
SCL_01 aussen
SCL_01 Küche
Schaubild Garderobe
Schaubild Bad
SCL_Workspace allgemein
SCL_Waschsalon allgemein
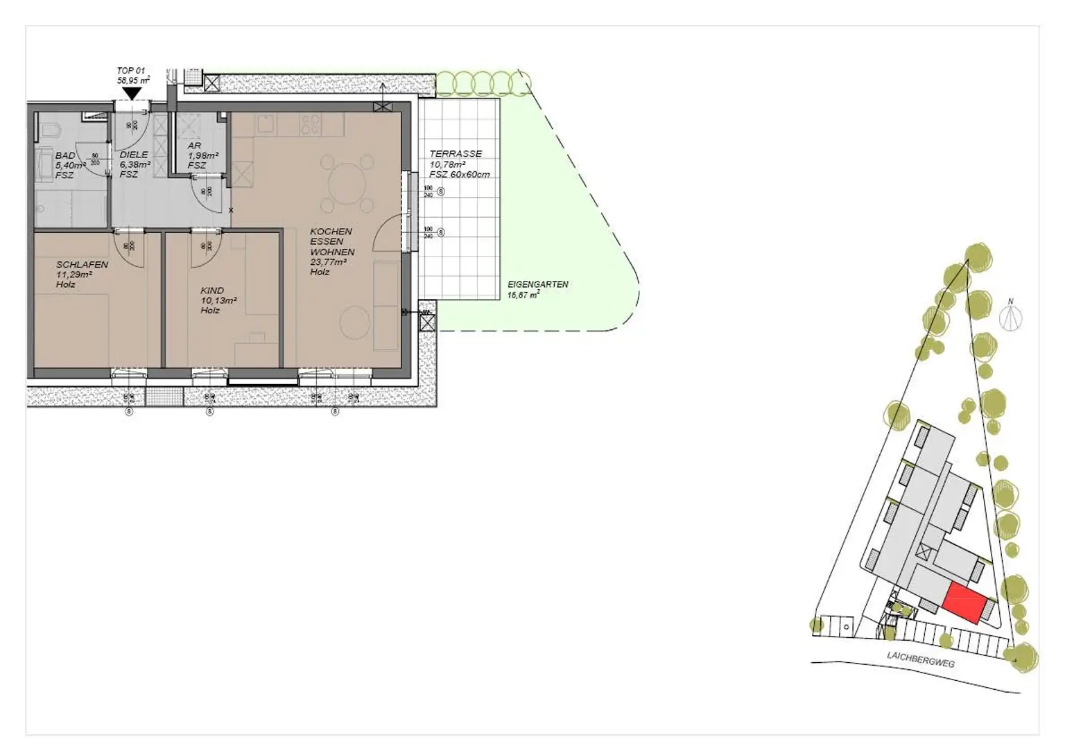
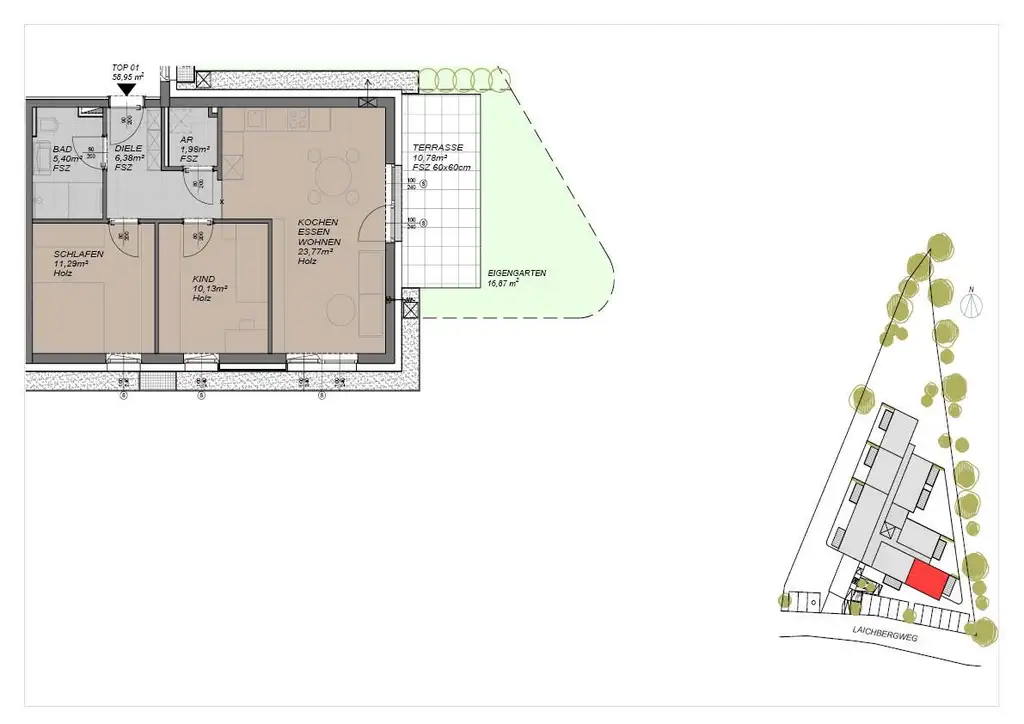
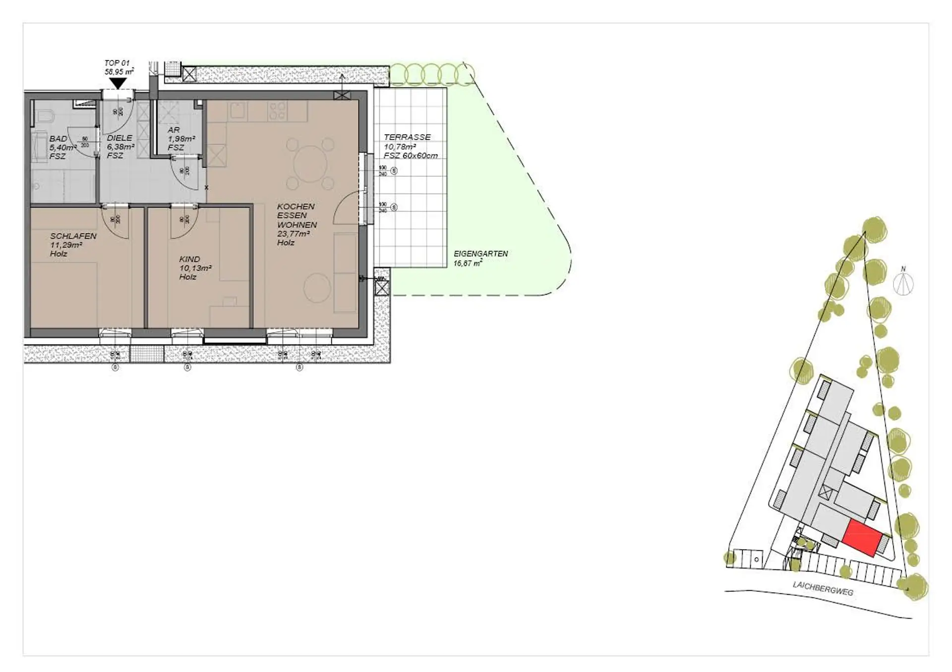
SCL_01 Grundriss mit Lageplan

Preisinformationen

Kaufpreis:
329.400 €
Preisinfos:
Fixpreis

Fakten

Objektnummer:
96
Objekttyp:
Wohnung
Terrasse:
1
Keller Fläche:
4,48 m²
Wohnfläche:
59,04 m²
Gartenfläche:
16,87 m²
Zimmer:
3
Badezimmer:
1
Neubau:
Ja
Zustand:
Gepflegt
Verfügbarkeit:
Verfügbar

Beschreibung

Intelligente Grundrisse für anspruchsvolle Personen!

Angesichts steigender Preise auf dem Wohnungsmarkt strebt der smarte Eigentümer nach höchster Qualität ohne Kompromisse. Intelligenz manifestiert sich in unseren kompakten Grundrissen, die zahlreiche zusätzliche Annehmlichkeiten bieten und sich an Bewohner richten, die eine zentrale Lage sowie eine gute Infrastruktur schätzen und offen für innovative Lösungen sind.

Das Bauprojekt wurde auf einem Grundstück der Österreichischen Bundesforste AG als Baurechtseinlage mit entsprechender Eintragung im Grundbuch realisiert.

Ihre neue Küche ist stilvoll gestaltet und optimal durchdacht – bereits im Kaufpreis inbegriffen.

Die Diele fungiert als Visitenkarte einer Wohnung; daher sollte sie einladend sowie ästhetisch ansprechend gestaltet werden. Bei der Planung des Badezimmers lag unser Fokus auf einem attraktiven Erscheinungsbild sowie hohem Komfort, um es zu Ihrer persönlichen Wohlfühloase zu gestalten.

Das SMART City Living Projekt wird mit einer großen Photovoltaik Anlage auf dem Dach des Gebäudes ausgestattet, um selbst und emissionsfrei Strom zu erzeugen.

SMART heißt auch kostengünstig leben und waschen. Der hauseigene Waschsalon ist mit servicegepflegten Waschmaschinen und Umlufttrocknern ausgestattet.

Das Paket kann smart in der persönlichen Paketstation deponiert werden, sodass man sich den Besuch bei einem Postpartner sparen kann.

Ebenfalls im Kaufpreis inkludiert ist der Tiefgaragenstellplatz.
Angaben gemäß gesetzlichem Erfordernis:
Heizwärmebedarf: 13.8 kWh/(m²a)
Klasse Heizwärmebedarf: B
Faktor Gesamtenergieeffizienz: 0.59
Klasse Faktor Gesamtenergieeffizienz: A+
Beschreibung weiterlesen

Energieeffizienz

HWB:
13,8 kWh/(m²*a)
HWB Klasse:
B
fGEE:
0,59
fGEE Klasse:
A+
Energieausweisart:
Energiebedarfs-ausweis

Dokumente

Markus Flick

Markus Flick

Obermair Immobilien GmbH

Anrufen
Lade...

Fotomix

SCL_01 Zugang SCL_01 aussen SCL_01 Küche Schaubild Garderobe Schaubild Bad SCL_Workspace allgemein SCL_Waschsalon allgemein SCL_01 Grundriss mit Lageplan