NEU - Smart geschnittene Altbauwohnung im 17. Bezirk!

Wohnung zum Kauf in 1170 Wien - Kaufpreis: 349.000 € / Objektnummer: 247/22021
Ausstattung: Fahrstuhl Fernwärme
Hausansicht
Zimmer II
Zimmer III
Zimmer
Vorraum
Küche
Blick Küche u. Zimme
Badezimmer I
Zimmer I
Vorraum I
Badezimmer u. Toilet
Badezimmer
Toilette
Eingang Wohnung
Aussicht
Hausansicht III
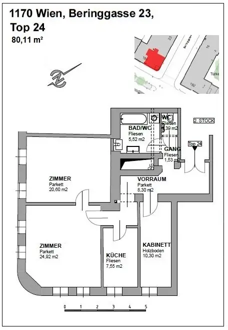
Plan TOP 24
Lageplan

Preisinformationen

Kaufpreis:
349.000 €
Kaufpreis/m²
4.356,51 €
Preisinfos:
GrESt 3,5% + Grundbucheintragung 1,1% des Gesamtkaufpreises / Vertragserrichtung 1,5% + Barauslagen, Beglaubigungs-, ggf. Treuhandkosten bei Finanzierung +USt. (WeiKes RA) / WE-Begründungsbeitrag € 500 +USt. / Provisio…
Vermittlungsprovision:
Ja
Provision:
3%

Fakten

Objektnummer:
247/22021
Objekttyp:
Wohnung
Wohnfläche:
80,11 m²
Zimmer:
3
Badezimmer:
1
Toilette:
1
Baujahr:
1900/san.Altbau
Altbau:
Ja
Verfügbarkeit:
Verfügbar

Beschreibung

In attraktiver Lage des 17. Bezirks gelangen in der Beringgasse mehrere Wohnungen, zwei Lager und ein Geschäftslokal zum Einzelabverkauf. Das Angebot umfasst überwiegend befristet und unfristet vermietete sowie einige leerstehende Einheiten mit Wohn-/Nutzflächen von ca. 29 m² bis 173 m²; vereinzelt verfügen die Wohnungenauch über Freiflächen. Die ca. 80 m² große 3-Zimmer-Wohnung (Vorraum, Küche, 2 Zimmer, 1 Kabinett, Bad und Toilette) befindet sich im 2. Obergeschoss eines gepflegten Gründerzeithauses, das 2006 saniert und ausgebaut wurde. Sie bietet – kurz-, mittel- und langfristig eine absolute Vorteilslage! Die Highlights: - clevere Raumaufteilung - guter Zustand - Aufzug vorhanden, - Kellerabteil 24-25, ca.3,02 m² - Kinderwagen- und Fahrradraum - Fernwärmeheizung - Leerstand, dadurch sofort verfügbar Lage-Highlights: - Grün & Erholung: In der Umgebung gibt es mehrere Parkanlagen mit Spiel-, Sport- & Erholungsflächen - Öffentliche Anbindung: S-Bahn,Straßenbahnlinien 9, 10 und 43 (fußläufig), gute Verbindung ins Stadtzentrum - Nahversorgung & Alltag: Supermärkte, Bäckereien, Apotheken, Cafés und Restaurants zu Fuß erreichbar - Lokale Atmosphäre: ruhig und urban zugleich – mit einer lebendigen Nachbarschaft, charmanter Alt- und Neubau-Struktur und einer guten Mischung aus städtischem Leben und Wohnqualität. Der Kaufpreis für diese in ausgezeichneter Lage befindliche Eigentumswohnung beträgt Euro 349.000,-. Vereinbaren Sie noch heute einen Besichtigungstermin und lassen Sie sich von dieser besonderen Immobilie verzaubern. Diesbezüglich freuen wir uns über Ihre geschätzte Anfrage per Mail. Tipp: Die gesamte Anlage wird gerade parifiziert und abverkauft. Fragen Sie uns nach weiteren Objekten bzw. Paketangeboten! Wir möchten darauf hinweisen, dass unsere Antwort möglicherweise in Ihrem Spamordner landen könnte. Bitte kontrollieren Sie diesen, wenn Sie keine Rückmeldung auf Ihre Anfrage erhalten haben. Wir freuen uns auf Ihre Anfrage und einen gemeinsamen Besichtigungstermin!
Beschreibung weiterlesen

Lage und Verkehrsanbindung

Hernalser Hauptstraße

Energieeffizienz

HWB:
56,2 kWh/(m²*a)
HWB Klasse:
C
fGEE:
1,69
fGEE Klasse:
C

Grundrisse

Ruschitzka-Schilhorn Marion

Ruschitzka-Schilhorn Marion

IMV Immobilienmakler

Lade...

Fotomix

Hausansicht Zimmer II Zimmer III Zimmer Vorraum Küche Blick Küche u. Zimme Badezimmer I Zimmer I Vorraum I Badezimmer u. Toilet Badezimmer Toilette Eingang Wohnung Aussicht Hausansicht III