NEU - Smarte Neubauwohnung in Gehweite der U6 Handelskai mit Einbauküche und Innenhof-Südwestbalkon!

Wohnung zur Miete in 1200 Wien - Gesamtmiete: 1.129,00 € / Objektnummer: 1764109
Ausstattung: Barrierefrei Boden Fahrstuhl Wohnküche / offene Küche Bad Fahrradraum Fußbodenheizung Balkon

Preisinformationen

Gesamtmiete:
1.129,00 € / Monat
Betriebskosten netto:
106,44 € / Monat
Umsatzsteuer:
102,63 €
Kaution:
3 Bruttomonatsmieten
Provision:
Gemäß Erstauftraggeberprinzip bezahlt der Abgeber die Provision.

Fakten

Objektnummer:
1764109
Objekttyp:
Wohnung
Balkon:
1
Balkonfläche:
4,83 m²
Wohnfläche:
49,05 m²
Nutzfläche:
53,88 m²
Gesamtfläche:
53,88 m²
Zimmer:
3
Badezimmer:
1
Toilette:
1
Stockwerk:
6
Baujahr:
2018
Neubau:
Ja
Zustand:
Neuwertig
Verfügbarkeit:
Verfügbar

Beschreibung

Engerthstraße 102- modernes Wohnen in Brigittenau nahe U6 und S-Bahn Handelskai, Neue Donau und Millennium City!

 

In nur 5 Gehminuten entfernt gelegen von der U6 Station Handelskai, sowie dem dortigen Shopping- und Entertainmentzentrum Millennium City und auch zahlreichen S-Bahn Stationen wurde erst 2018 dieses hochwertige Wohngebäude errichtet. 
Der Mix aus der optimalen Anbindung an die Öffis, die städtische Infrastruktur und aber auch das nur etwa 200m entfernte Donauufer machen diese Lage einzigartig. 

Das Gebäude selbst besticht durch moderne Architektur mit großen Fensterfronten, viel Glas bei den Balkonen, hochwertige Ausstattung, Einbauküchen, edle Bäder und effiziente Fußbodenheizung mittels Fernwärme. 
Es besteht aus insgesamt 75 Wohnungen verteilt auf 7 Liftetagen mit Geschäftslokalen im Erdgeschoss. Dort befindet sich aktuell ein charmantes Blumengeschäft und ein Friseurbetrieb. 
Die Wohnungen sind entweder in den ruhigen Innenhof gerichtet oder aber zur sonnigen Straßenseite von Engerthstraße oder Donaueschingenstraße. Einige Wohnungen am Eck des Gebäudes blicken auch bis auf die Donau. 
In den Wohnungen befinden sich Einbauküchen mit Elektrogeräten wie ein großer Kühlschrank, separater Gefrierschrank, Backofen, Cerankochfeld, Dunstabzug und großteils auch schon einer Mikrowelle. 
Der Wohnbereich verfügt über Eichenholzparkettboden, im Bad und den meist separaten WCs mit Waschbecken befinden sich moderne Steinfliesen. 
Um hervorragende Wärmedämmung und Schallschutz zu erreichen, sind 3-fachverglaste Fenster verbaut. 
Besonders ist außerdem, dass in jeder Wohnung bereits ein WLAN Router mit gutem Speed und unlimitiertem Datenvolumen vorbereitet ist, der optional für nur 12,- monatlich genutzt werden kann. 

Die Wohnungen werden entweder zum Einzug ab sofort oder auch erst zu späteren Zeitpunkten angeboten. Bitte achten Sie hierzu auf die jeweils bei den einzelnen Wohnungen angegebenen Verfügbarkeiten. 
Die Befristung beläuft sich auf 5 Jahre, ab Mietbeginn besteht ein Kündigungsverzicht von 12 Monaten nachdem zum Monatsende mit 3 Monaten Kündigungsfrist gekündigt werden kann. 

Highlights

* Tolle Anbindung an die Öffis- U6, S-Bahn Linien und Busse
* Nähe zur Millennium City
* Donau Treppelweg in wenigen Minuten erreichbar
* Moderne Architektur 
* Einbauküche mit Geräten inkludiert
* Fußbodenheizung mittels Fernwärme
* Kellerabteile verfügbar 

Öffentliche Verkehrsanbindung 

* U-Bahn U6 Handelskai in 5 Gehminuten 
* S-Bahn Linien S1, S2, S3, S4 und S7 in 5 Gehminuten 
* Straßenbahnlinien 1 und 2 in 5 Gehminuten 
* Zahlreiche Buslinien

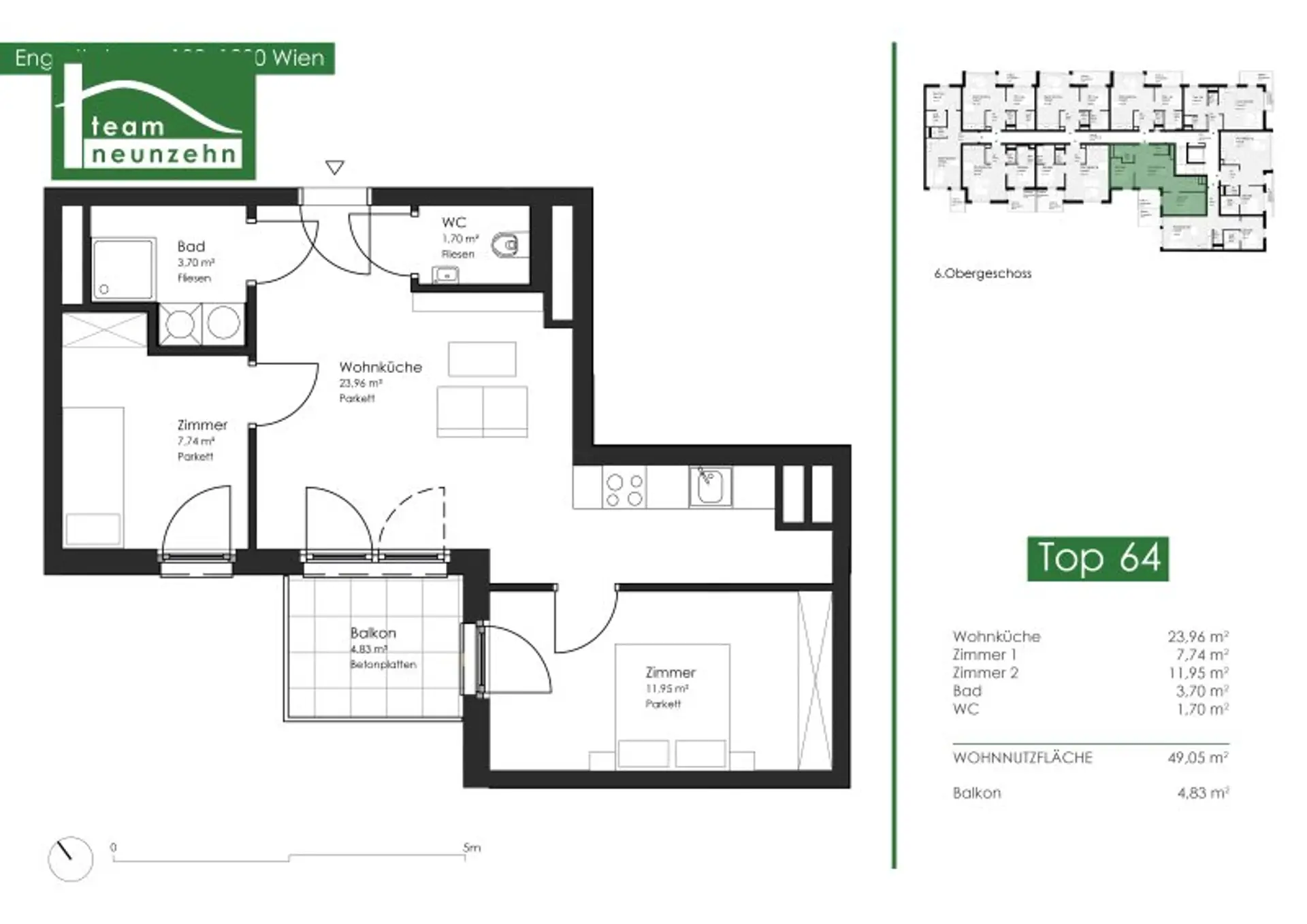
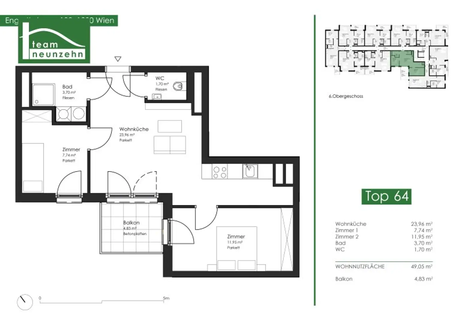
Wohnung Top 64

Die 3-Zimmer-Wohnung mit ca. 49,05 m² Wohnfläche und ca. 4,83 m² Balkon befindet sich im 6. Obergeschoss.

* Wohnküche 23,96 m²
* Zimmer 1: 11,95 m²
* Zimmer 2: 7,74 m²
* Bad mit Dusche, Handwaschbecken u. Waschmaschinenanschluss 3,70 m²
* separate Toilette 1,70 m²
*  

Wir bitten um Verständnis, dass die Wohnung noch bewohnt wird und es somit zu Wartezeiten für Besichtigungen kommen kann. 

Auf Ihre Anfrage hin merken wir Sie vor und melden uns so bald als möglich mit Terminvorschlägen zurück. 

Mögliche Mietbeginne sind der 01.08. und 15.08. 

 

Kosten:

* Miete: 1.129,00 Euro inkl. BK und USt.
* Warmwasserakonto: 24,53 Euro exkl. USt.
* Kaltwasserakonto: 19,62 Euro exkl. USt. 
* Heizungsakonto: 53,96 Euro exkl. USt.
* WLAN ohne Limit 11,00 Euro (optional)
* Kaution: 3 Bruttomonatsmieten
* Provision: Provisionsfrei
* Mietvertragserrichtungsgebühr: 420,00 Euro inkl. USt.

 

Stellplätze:

Die zusätzliche Anmietung eines Garagenplatzes in der hauseigenen Tiefgarage ist möglich. 

Der monatliche Mietpreis beläuft sich je Stellplatz auf 110,- Euro inkl. Betriebskosten und USt. 

 

Nebenkosten Stellplätze:

Kaution: 3 Monatsmieten

 

Infrastruktur:

* Einkäufe: Millennium City (5 Minuten zu Fuß)
* Erholung und Sport: Neue Donau, Donauinsel, Fitnesscenter z.B. Cleverfit 10 Minuten zu Fuß
* Ärzte und Apotheken: bis 500m entfernt Allgemein-Arzt, Zahnarzt, Facharzt und Kinderarzt
* Schulen und Kindergärten: bis 500 m entfernt Kinderbetreuung, Volksschule, Schule und bis 2 km entfernt Hochschule
* Gastro und Entertainment: Millennium City und Copa Kagrana

 

Energieausweis:

Der Heizwärmebedarf beträgt 29,77 kWh/m²a, welcher der Klasse B entspricht.

 

Gerne steht Ihnen Herr Christoph Kolar für weitere Fragen bzw. Besichtigungen unter 0676 852 243 541 zur Verfügung.

Wir weisen darauf hin, dass zwischen dem Vermittler und dem zu vermittelnden Dritten ein familiäres oder wirtschaftliches Naheverhältnis besteht.

Der Immobilienmakler erklärt, dass er – entgegen dem in der Immobilienwirtschaft üblichen Geschäftsgebrauch des Doppelmaklers – einseitig nur für den Vermieter tätig ist.

"Leben braucht Raum" * T19-RE Real Estate GmbH & Co KG * www.teamneunzehn.at [https://www.teamneunzehn.at]

Doppelmakler

Wir werden als Immobilienmakler kraft bestehenden Geschäftsgebrauchs als Doppelmakler tätig und haben sohin beide Seiten des Vertrages (Verkäufer-Käufer, Vermieter-Mieter) zu unterstützen.

Wirtschaftliches Naheverhältnis

Es wird bekannt gegeben, dass folgendes wirtschaftliches Naheverhältnis zwischen der teamneunzehn-Gruppe und dem Verkäufer/der vermietenden Partei besteht: ständige und dauerhafte Beauftragung mit der Vermittlung des bestehenden Immobilienportfolios

Haftungserklärung zum Inserat

Irrtum und Änderungen vorbehalten! Sofern es sich bei Bildern um Visualisierungen handelt, können Abänderungen zur tatsächlichen Ausführung resultieren. Wir weisen ausdrücklich darauf hin, dass das auf Fotos oder Visualisierungen ersichtliche Mobiliar bzw. Inventar nicht Bestandteil des inserierten Preises ist.

 

 

Infrastruktur / Entfernungen

Gesundheit
Arzt <225m
Apotheke <200m
Klinik <250m
Krankenhaus <300m

Kinder & Schulen
Schule <75m
Kindergarten <125m
Universität <700m
Höhere Schule <1.525m

Nahversorgung
Supermarkt <225m
Bäckerei <75m
Einkaufszentrum <300m

Sonstige
Geldautomat <325m
Bank <325m
Post <575m
Polizei <400m

Verkehr
Bus <75m
U-Bahn <350m
Straßenbahn <575m
Bahnhof <400m
Autobahnanschluss <1.050m

Angaben Entfernung Luftlinie / Quelle: OpenStreetMap
Beschreibung weiterlesen

Lage und Verkehrsanbindung

In der Nähe: Millennium Tower, Neue Donau, Allerheiligenpark, Handelskai U6 und S-Bahn

Millennium Tower, Neue Donau, Allerheiligenpark, Handelskai U6

Energieeffizienz

HWB:
29,77 kWh/(m²*a)
HWB Klasse:
B
fGEE:
0,76
fGEE Klasse:
A
Energieausweisart:
Energiebedarfs-ausweis

Grundriss

Lageplan

1200 Wien | Wien 20., Brigittenau

Lade...
Christoph Kolar

Christoph Kolar
Immobilienvermittlung

teamneunzehn-Gruppe

Lade...

Fotomix

Bild 1 Bild 2 Bild 3 Bild 4 Bild 5 Bild 6 Bild 7 Bild 8 Bild 9 Bild 10 Bild 11 Bild 12 Bild 13 Bild 14 Bild 15 Bild 16 Bild 17 Bild 18 Bild 19