NEU - Sonnige 2 Zimmer + Wohnküche, 97m², 5. Stock mit Lift in der Thaliastraße

Wohnung zur Miete in 1160 Wien - Gesamtmiete: 1.700,00 € / Objektnummer: 3342
Ausstattung: Barrierefrei Boden Fahrstuhl Wohnküche / offene Küche Bad Kabel/Satelliten-TV Abstellraum Zentralheizung WG geeignet
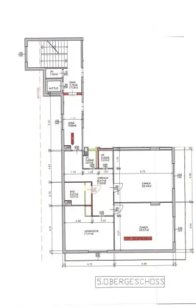
Plan Top 503

Preisinformationen

Gesamtmiete:
1.700,00 € / Monat
Betriebskosten netto:
239,17 € / Monat
Heizkosten netto:
95,66 €
Umsatzsteuer:
144,11 €
Kaution:
6.800,00 €
Provision:
Gemäß Erstauftraggeberprinzip bezahlt der Abgeber die Provision.

Fakten

Objektnummer:
3342
Objekttyp:
Wohnung
Wohnfläche:
97,57 m²
Nutzfläche:
97,57 m²
Zimmer:
2
Badezimmer:
1
Toilette:
1
Stockwerk:
5
Neubau:
Ja
Verfügbarkeit:
Verfügbar

Beschreibung

Wohnung:·
• 2 Zimmer mit ca. 28,40 m² und 25,57 m²
• große Wohnküche mit Küchenzeile
• Vorraum
• Abstellraum
• Bad mit Badewanne
• extra WC
• 5. Stock mit Lift
• Garage im Haus

Haus:
• Eckgebäude mit Lift und Garage
• Heizwärmebedarf (HWB): 26 kWh/m²a, Klasse: B

Lage:
• Straßenbahn: Linie 46 und 9 – Thaliastraße/Feßtgasse
• 3 Stationen bis zur U6-Thaliastraße, 2 Stationen zur U3-Ottakring
• Straßenbahn direkt vor der Haustüre
• alle Einkaufsmöglichkeiten zu Fuß erreichbar

Sonstiges:
• Mietvertrag: 5 Jahre
• einmalige Gebühr Hausverwaltung € 240,-

Ein Garagenplatz kann bei Bedarf zusätzlich angemietet werden - die monatlichen Kosten betragen € 100,00 inkl. 20 % USt und die Kaution einmalig € 240,000.
Bei Vertragsabschluss ist eine Vergebührung ans Finanzamt in der Höhe von € 36,00 fällig.

Wir weisen darauf hin, dass zwischen dem Vermittler und dem zu vermittelnden Dritten ein wirtschaftliches Naheverhältnis mit gesellschaftlicher Verflechtung besteht.

Der Immobilienmakler erklärt, dass er – entgegen dem in der Immobilienwirtschaft üblichen Geschäftsgebrauch des Doppelmaklers – einseitig nur für den Vermieter tätig ist.

Infrastruktur / Entfernungen

Gesundheit
Arzt <150m
Apotheke <150m
Klinik <350m
Krankenhaus <1.475m

Kinder & Schulen
Schule <275m
Kindergarten <250m
Universität <925m
Höhere Schule <700m

Nahversorgung
Supermarkt <225m
Bäckerei <300m
Einkaufszentrum <1.000m

Sonstige
Geldautomat <25m
Bank <25m
Post <275m
Polizei <675m

Verkehr
Bus <50m
U-Bahn <900m
Straßenbahn <50m
Bahnhof <900m
Autobahnanschluss <4.200m

Angaben Entfernung Luftlinie / Quelle: OpenStreetMap
Beschreibung weiterlesen

Lage und Verkehrsanbindung

Thaliastraße

Energieeffizienz

HWB:
26 kWh/(m²*a)
HWB Klasse:
B
Energieausweisart:
Energiebedarfs-ausweis

Grundriss

Lageplan

1160 Wien | Wien 16., Ottakring

Lade...
Heinrich Brim

Heinrich Brim
Geschäftsführung

TOPCALL Immobilientreuhand GmbH

Lade...

Fotomix

Bild 1 Bild 2 Bild 3 Bild 4 Bild 5 Bild 6 Bild 7 Bild 8 Bild 9