NEU - Sonnige 4-Zimmer-Erstbezugswohnung Nähe Nationalpark Lobau – Balkon mit Süd-/West-Ausrichtung

Wohnung zum Kauf in 1220 Wien - Kaufpreis: 449.000 € / Objektnummer: 1718/1747697
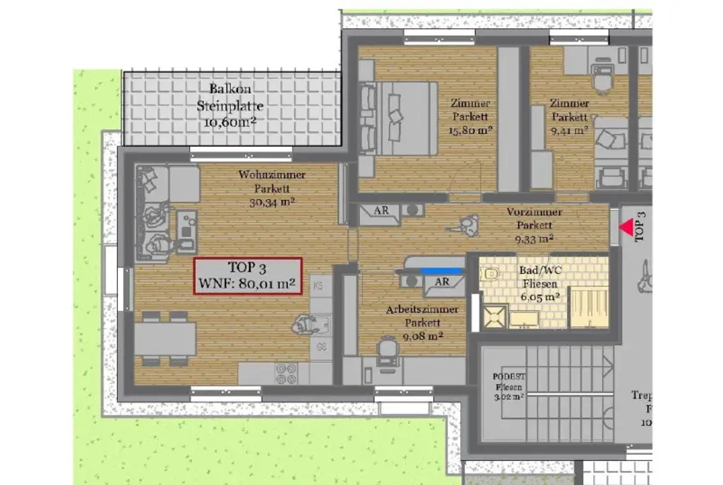
Ausstattung: Boden Fahrstuhl Wohnküche / offene Küche Bad Parkplatz Außenparkplatz Zentralheizung Fußbodenheizung Balkon

Preisinformationen

Kaufpreis:
449.000 €
Vermittlungsprovision:
Ja
Provision:
3% des Kaufpreises zzgl. 20% USt.

Fakten

Objektnummer:
1718/1747697
Objekttyp:
Wohnung
Balkon:
1
Balkonfläche:
10,6 m²
Keller Fläche:
6,44 m²
Wohnfläche:
80,01 m²
Gesamtfläche:
90,61 m²
Zimmer:
4
Badezimmer:
1
Toilette:
1
Stockwerk:
1
Baujahr:
2025
Neubau:
Ja
Zustand:
Erstbezug
Verfügbarkeit:
Verfügbar

Beschreibung

In begehrter Ruhelage der Dumreichergasse im 22. Bezirk gelangt diese hochwertige 4-Zimmer-Erstbezugswohnung zum Verkauf. Die Wohnung überzeugt durch ihre durchdachte Raumaufteilung, eine moderne Ausstattung sowie helle, freundliche Wohnräume.

Dank der Süd-/West-Ausrichtung und des sonnigen Balkons genießen Sie hier lichtdurchflutete Räume und entspannte Stunden im Freien. Alle Zimmer sind zentral begehbar, was ein hohes Maß an Wohnkomfort und Flexibilität bietet.

 

Die Anbindung an öffentliche Verkehrsmittel ist sehr gut. Die Haltestelle der Autobuslinie, 26A, 88A und 88B ist 1 Gehminute entfernt. Die U2-Station „Seestadt“ ist mit dem Bus 88A/B in lediglich 8 Fahrminuten erreichbar. Von dort aus können Sie ganz Wien bequem öffentlich erreichen, z.B. die Haltestelle Praterstern ist innerhalb von 15 Minuten erreichbar.

 

Die Ausstattung lässt keine Wünsche offen:
3-fach-Isolierverglasung mit elektrischer Außenbeschattung, Fußbodenheizung sowie eine hochwertige Materialauswahl sorgen für ein angenehmes Wohnklima und zeitgemäßen Komfort.

Das kleine, gepflegte Wohnhaus mit nur 5 Einheiten unterstreicht den privaten Charakter dieser Immobilie. Ein großzügiger Kellerraum bietet zusätzlichen Stauraum.

Ein Stellplatz kann bei Bedarf optional erworben werden.

 

Highlights auf einen Blick:

* 4 Zimmer, Erstbezug
* Mit dem Fahrrad erreichen Sie den Nationalpark Lobau in 4 Minuten
* Sehr gute öffentliche Anbindung 
* Erreichbarkeit mittels KFZ: 10 Minuten U2 „Aspernstraße“, 1220 Wien
* Erreichbarkeit mit öffentlichen Verkehrsmitteln: 8 Minuten U2 „Seestadt“, 1220 Wien
* Balkon mit Süd-/West-Ausrichtung
* Sonnige, freundliche Räume
* Zentral begehbare Raumaufteilung
* Hochwertige Ausstattung
* 3-fach-Isolierverglasung & elektrische Außenbeschattung
* Vollwärmeschutzfassadensystem
* Fußbodenheizung
* Ruhige Wohnlage
* Kleines Wohnhaus (nur 5 Einheiten)
* Busstation in unmittelbarer Nähe
* Großzügiger Kellerraum mit 6,44 m²
* Stellplatz optional erwerbbar

Um mehr Einblick zu erhalten, können wir Ihnen gerne die Bau- und Ausstattungsbeschreibung senden.

 

Diese Wohnung vereint modernen Wohnkomfort, Ruhe und beste Anbindung – ein Zuhause zum Wohlfühlen.

 

_Kaufpreis:_

Der Kaufpreis als Endnutzer beläuft sich auf 449.000, - €.

Der Kaufpreis als Anleger beläuft sich auf 420.000, - € zzgl. 20% Steuer.

Ein Stellplatz kann um 21.000 Euro erworben werden.

Provision: 3% des Kaufpreises zzgl. 20% USt.

 

Für Fragen bzw. Besichtigungen steht Ihnen Herr Kevin Gödel sehr gerne unter 0664 41 28 427 oder kevin.goedel@prime-immobilien.at zur Verfügung.

 

Die verwendeten Fotos weisen teilweise KI-generierte Inhalte auf.

Wir weisen darauf hin, dass zwischen dem Vermittler und dem zu vermittelnden Dritten ein familiäres oder wirtschaftliches Naheverhältnis besteht.

Der Vermittler ist als Doppelmakler tätig.

Infrastruktur / Entfernungen

Gesundheit
Arzt <500m
Apotheke <1.000m
Klinik <2.500m
Krankenhaus <4.000m

Kinder & Schulen
Schule <1.000m
Kindergarten <1.000m
Universität <1.500m
Höhere Schule <2.000m

Nahversorgung
Supermarkt <1.000m
Bäckerei <1.000m
Einkaufszentrum <3.000m

Sonstige
Geldautomat <2.000m
Bank <1.500m
Post <1.500m
Polizei <2.000m

Verkehr
Bus <500m
U-Bahn <2.500m
Straßenbahn <2.500m
Bahnhof <2.000m
Autobahnanschluss <5.000m

Angaben Entfernung Luftlinie / Quelle: OpenStreetMap
Beschreibung weiterlesen

Lage und Verkehrsanbindung

Dumreichgasse Ecke Lannesstraße, Droßendersdorfer Arm in der Nähe, Busstation Dumreichergasse, Nähe Nationalpark Lobau

Energieeffizienz

HWB:
37 kWh/(m²*a)
HWB Klasse:
B
fGEE:
0,59
fGEE Klasse:
A+
Energieausweisart:
Energiebedarfs-ausweis

Grundrisse

Lageplan

1220 Wien | Wien 22., Donaustadt

Lade...
Kevin Gödel

Kevin Gödel

RIMMO Prime Vermittlungs GmbH

Lade...

Fotomix

Bild 1 Bild 2 Bild 3 Bild 4 Bild 5 Bild 6 Bild 7 Bild 8 Bild 9 Bild 10 Bild 11 Bild 12 Bild 13 Bild 14 Bild 15 Bild 16 Bild 17 Bild 18 Bild 19 Bild 20 Bild 21 Bild 22 Bild 23 Bild 24 Bild 25 Bild 26 Bild 27