NEU - SONNIGE, GRÜNE RUHEOASE AUF 2 EBENEN!

Wohnung zur Miete in 1230 Wien - Gesamtmiete: 1.036,87 € / Objektnummer: 1597
Ausstattung: Boden Fahrstuhl Bad Gäste-WC Terrasse

Preisinformationen

Gesamtmiete:
1.036,87 € / Monat
Betriebskosten netto:
127,30 € / Monat
Umsatzsteuer:
94,26 €
Kaution:
3.110,61 €

Fakten

Objektnummer:
1597
Objekttyp:
Wohnung
Terrasse:
1
Wohnfläche:
64 m²
Zimmer:
2
Badezimmer:
1
Toilette:
2
Baujahr:
2011
Verfügbarkeit:
Verfügbar

Beschreibung

Ihre Sicherheit ist uns wichtig! Auch während dieser schwierigen Zeiten sind Besichtigungen vor Ort möglich - selbstverständlich mit entsprechendem Abstand und unter Einhaltung aller, erforderlichen Hygienevorschriften! Wir freuen uns somit jederzeit auf Ihre Anfrage zur Vereinbarung eines gemeinsamen Besichtigungstermins. 

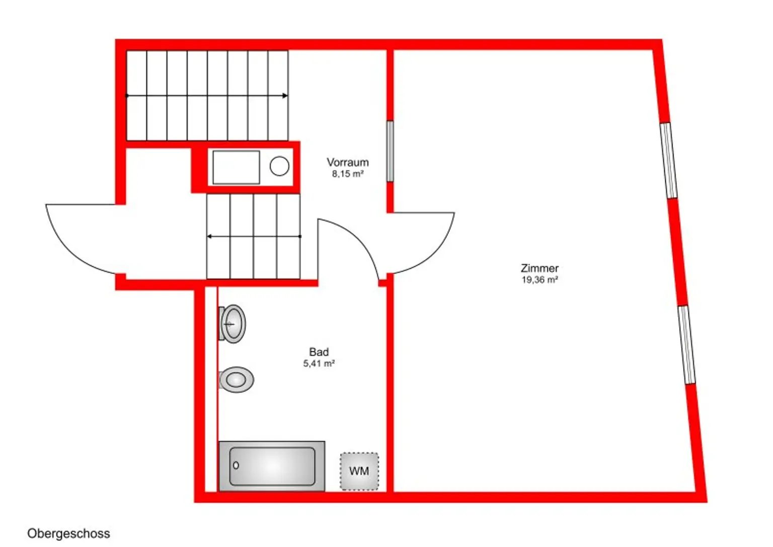
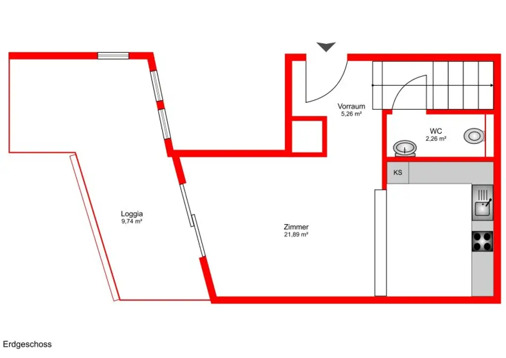
Die 2-Zimmer-Maisonette-Wohnung besticht durch ihren etwas anderen Grundriss.

Die ebenerdig und im 1. Stock liegende Wohnung bietet viel Platz zum Wohlfühlen. Vom offenen Vorzimmer gelangen Sie in den Wohn-Essraum. Linker Hand liegt über 2 Stufen erreichbar die komplett eingerichtete Küche und rechter Hand öffnet sich nach dem Wohnbereich stirnseitig eine wunderbare Terrasse. Diese ist 2-geteilt und kaum einsehbar und mit Wasser-und Stromanschluss ausgestattet.

Im unteren Teil gibt es noch eine Gästetoilette mit Handwaschbecken.

Über eine schöne, massive Holztreppe gelangt man in den 1. Stock. In diesem befindet sich ein großes Badezimmer mit Badewanne und Waschmaschinenanschluss. Den großzügigen Schlafbereich könnte man zusätzlich mit einer Arbeitsecke ausstatten. Ein Einbauschrank befindet sich ebenfalls bereits im Schlafraum.

Das Raumklima ist, durch eingespeiste Erdwärme und einer kontrollierten Raumluft, ein sehr angenehmes und gleichzeitig sehr energieeffizientes.

Die Heizkosten (€ 72,38.-) müssen zu den Gesamtmietkosten von € 1.036,87.- addiert werden.

Gegensprechanlage, elektrische Außenjalousien, Internetanschluss und Sat TV komplettieren die Wohnung.

Ein Kellerabteil sowie ein Raum für Fahrräder / Kinderwagen steht ebenso wie ein riesiger Garten zur Verfügung.

Das Apartment ist sehr modern und komfortabel eingerichtet - die Infrastruktur ist hervorragend.

 

RECHTLICHER HINWEIS:
Im Hinblick auf die geltende Gesetzeslage weisen wir darauf hin, dass für unser Tätigwerden für jeden Interessenten (vollständige Anbietung, Besichtigungen und sonstige Dienstleistungen) der Abschluss eines Maklervertrages die unbedingte Grundlage darstellt.

INFOS & BESICHTIGUNGEN:
Für Informationen und Besichtigungen steht Ihnen Herr Mag. Michael Moser unter +43 69915152424 oder +43 1 877 2222 [tel:+4318772222] gerne zur Verfügung.

INFORMATION FÜR KONSUMENTEN:
1. Dieses Objekt wird von einem konzessionierten Immobilienmaklerunternehmen vermarktet. Im Falle der Anmietung oder des Ankaufs fällt eine Vermittlungsprovision an.
2. Der Makler ist kraft bestehenden Geschäftsgebrauchs für beide Vertragspartner des abzuschließenden Geschäfts tätig (Doppelmakler).
3. Wir weisen auf wirtschaftliches Naheverhältnis zwischen unserem Unternehmen und der Vermieterseite hin.

POST SCRIPTUM:
Wir sind auf Miet- und Eigentumsobjekte, sowie Grundstücke im 13. Bezirk spezialisiert. Wir vermitteln selbstverständlich auch Wohnimmobilien im gesamten Großraum Wien!
Wenn Sie bei der Vermarktung Ihres Objekts an einen kompetenten, seriösen, marktorientierten und vor allem, durch starke Spezialisierung auf unser Expertengebiet, erfolgreichen Experten an Ihrer Seite denken, steht Ihnen unser Unternehmen mit beinahe 30-jähriger Erfahrung und den aktuellsten Vermarktungsmethoden gerne zur Verfügung.

Infrastruktur / Entfernungen

Gesundheit
Arzt 500m
Apotheke 1.000m
Klinik 2.000m
Krankenhaus 2.000m

Kinder & Schulen
Schule 500m
Kindergarten 1.000m
Universität 3.500m
Höhere Schule 6.000m

Nahversorgung
Supermarkt 500m
Bäckerei 1.000m
Einkaufszentrum 2.500m

Sonstige
Geldautomat 500m
Bank 500m
Post 500m
Polizei 2.500m

Verkehr
Bus 500m
Straßenbahn 1.000m
U-Bahn 4.000m
Bahnhof 2.500m
Autobahnanschluss 4.500m

Angaben Entfernung Luftlinie / Quelle: OpenStreetMap
Beschreibung weiterlesen

Lage und Verkehrsanbindung

Unweit vom Maurer Hauptplatz - von diesem können die unterschiedlichsten öffentlichen Verkehrsmittel genutzt werden. Zusätzlich kann ein, direkt in der Straße in der sich die Wohnung befindet, öffentlicher Bus genutzt werden.

Grundrisse

Lageplan

1230 Wien | Wien 23., Liesing

Lade...
Michael Moser

Michael Moser
Immobilienmakler

KLEIN&PARTNER Immobilen GmbH

Anrufen
Lade...

Fotomix

Bild 1 Bild 2 Bild 3 Bild 4 Bild 5 Bild 6 Bild 7 Bild 8 Bild 9 Bild 10 Bild 11 Bild 12 Bild 13 Bild 14