NEU - ++SONNIGE, teilmöblierte WOHNUNG MIT SOMMERLOGGIA; GRÜNBLICK, GARTENNUTZUNG++

Wohnung zur Miete in 1130 Wien - Gesamtmiete: 899,80 € / Objektnummer: 4710100
Ausstattung: Boden Fahrstuhl Wohnküche / offene Küche Kabel/Satelliten-TV Fahrradraum Zentralheizung Loggia

Preisinformationen

Gesamtmiete:
899,80 € / Monat
Betriebskosten netto:
102,00 € / Monat
Heizkosten netto:
54,41 €
Umsatzsteuer:
81,80 €
Kaution:
EUR2900,00
Provision:
provisionsfrei

Fakten

Objektnummer:
4710100
Objekttyp:
Wohnung
Loggia:
1
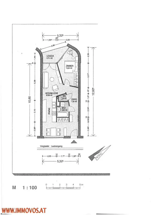
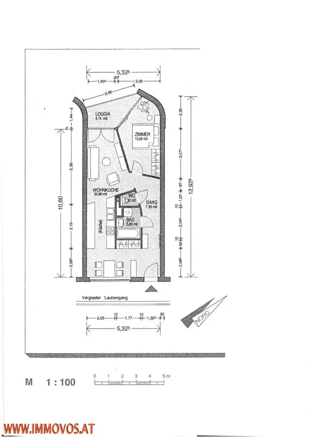
Wohnfläche:
58 m²
Nutzfläche:
64 m²
Zimmer:
2
Badezimmer:
1
Toilette:
1
Baujahr:
2001
Neubau:
Ja
Zustand:
Neuwertig
Verfügbarkeit:
Verfügbar

Beschreibung

PROVISIONSFREI!!
**** WOHNEN MIT LOGGIA INS GRÜNE IN SPEISING ****

Wir bieten Ihnen diese komfortabel ausgestattete, gemütliche Wohnung zur Miete an:
von einem zentral gelegenen Vorzimmer erschließen sich folgende Räume:

ein sehr schön sonniger und ruhig gelegener Wohnbereich, offen zu einer komplett ausgestatteten Küche mit Essplatz,

ein Schlafzimmer.
Beide haben einen Ausgang zu einer offenen Loggia, die über einen hauseigenen Hofgarten blickt.

ein Badezimmer mit Badewanne, Waschtisch und Waschmaschinenanschluss
eine Toilette

Die Wohnung wird mit so funktionalen wie ästhetisch ansprechenden Einbaumöbeln teilmöbliert übergeben. Siehe bitte dazu die Fotos.

Integrierter Sonnenschutz
Videosprechanlage
Sicherheitstür

Es handelt sich um ein Gebäude, das sich in sehr gutem Allgemeinzustand befindet und die üblichen Vorzüge eines Neubaus aufweist wie etwa:
Sauberes Kellerabteil
Fahrrad- und Kinderwagenabstellraum

Breitbandinternet-, Kabel-TV- und Telefonanschlüsse

Nette Mikroinfrastruktur in unmittelbarer Nähe, ansonsten auch Apotheke, Supermarkt etc. ums Eck.

Sie erreichen zudem mit der Schnellbahn binnen zwanzig Minuten die Stadtmitte - Landstraße oder binnen fünf Minuten Wien Hütteldorf.
Zudem bietet die S80 / Haltestelle Wien Speising hervorragende Erreichbarkeit des Marchfeldes und der Slowakei bis Bratislava.
Mit den Straßenbahnen 60 und 62 hochrangige Naherholungsgebiete bzw. Althietzing/Schönbrunn oder den Lainzer Tiergarten.

Derzeit ist diese schöne Wohnung noch vermietet (bis 30.04.2026)
Erste Besichtigung:
Freitag, 24.04.2026, 12.40-13.15 Uhr (Einzeltermin)
Bitte um Ihre SCHRIFTLICHE ANFRAGE.


Heizwärmebedarf: 95 kWH/qm/Jahr
fGEE: 0,69
Beschreibung weiterlesen

Lage und Verkehrsanbindung

Speisinger Straße: Hoflage

Energieeffizienz

HWB:
95 kWh/(m²*a)
fGEE:
0,69
Helfried Nemmer

Helfried Nemmer

Lade...

Fotomix

A. Garteninnenhof im Frühling Eingangsbereich mit Garderobenkasten.jpg Eingangsbereich.jpg E. Badezimmer Küche.jpg Schlafzimmer mit Austattung.jpg Vorzimmer mit Garderobenkasten.jpg Wohbereich mit Einblick Richtung Küche.jpg Erschließungsgang 2. OG.jpg H. Grundriss