NEU - Spektakulär /// Hochwertige Dachterrassenwohnung mit Traumausblicken /// Quartier Belvedere/Jacquingasse

Wohnung zur Miete in 1030 Wien - Gesamtmiete: 3.200,00 € / Objektnummer: 8220
Ausstattung: Boden Fahrstuhl Wohnküche / offene Küche Bad Gäste-WC Klimaanlage Etagenheizung Terrasse

Preisinformationen

Gesamtmiete:
3.200,00 € / Monat
Betriebskosten netto:
294,05 € / Monat
Umsatzsteuer:
287,38 €
Kaution:
3 Bruttomonatsmieten
Provision:
Gemäß Erstauftraggeberprinzip bezahlt der Abgeber die Provision.

Fakten

Objektnummer:
8220
Objekttyp:
Wohnung
Terrasse:
1
Wohnfläche:
127,97 m²
Zimmer:
4
Badezimmer:
1
Toilette:
2
Stockwerk:
5
Verfügbarkeit:
Verfügbar

Beschreibung

Diese 2016 sehr hochwertig und stilvoll ausgebaute Dachterrassenwohnung befindet im Dachgeschoss eines sehr repräsentativen Altbaus mit Palais-Charakter. Die Wohnung ist besonders hell und offen gestaltet und eignet sich perfekt für modernes, elegantes Wohnen mitten am Puls der Stadt!

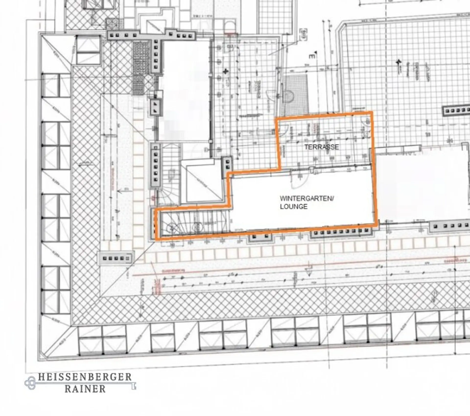
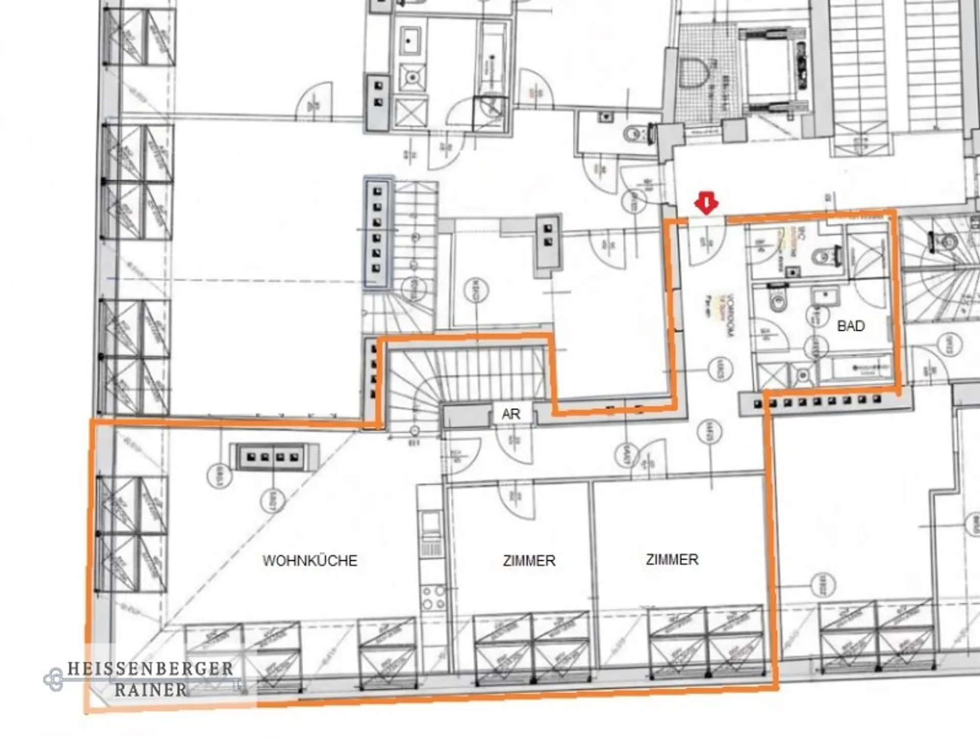
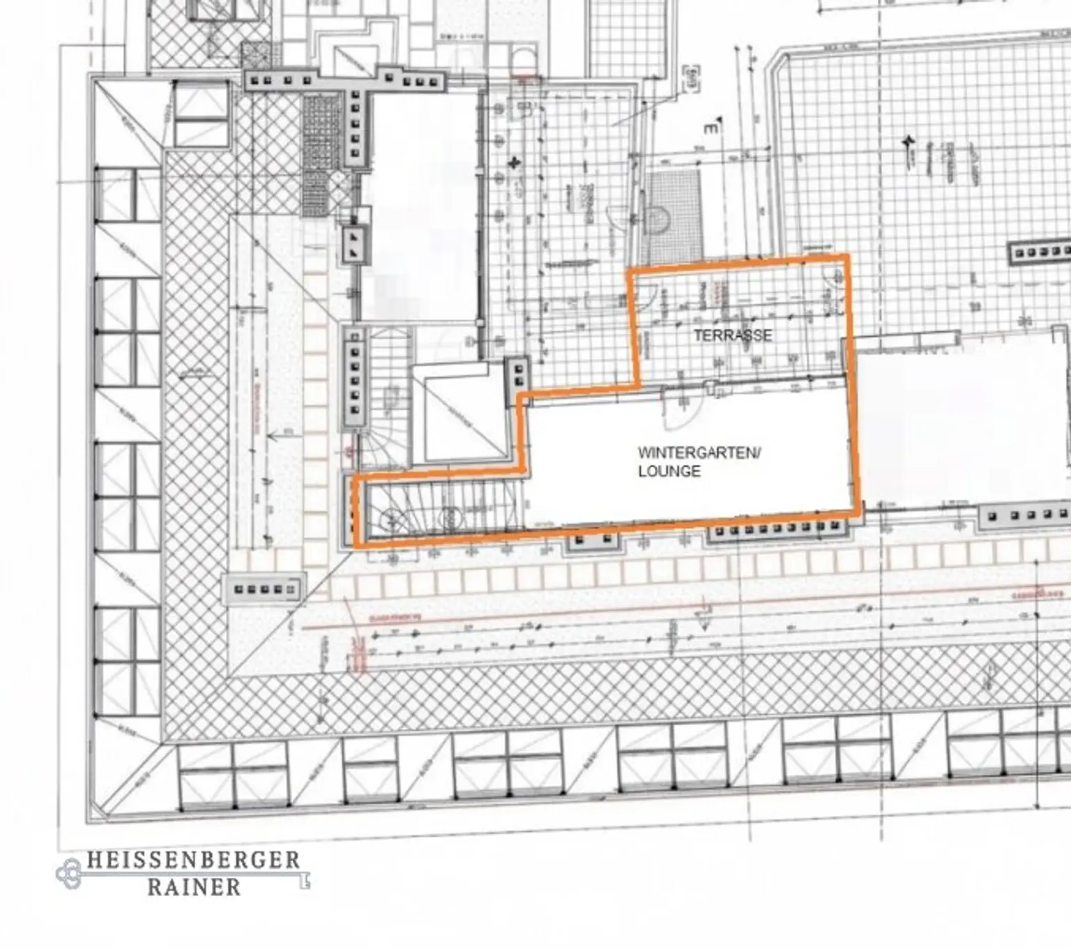
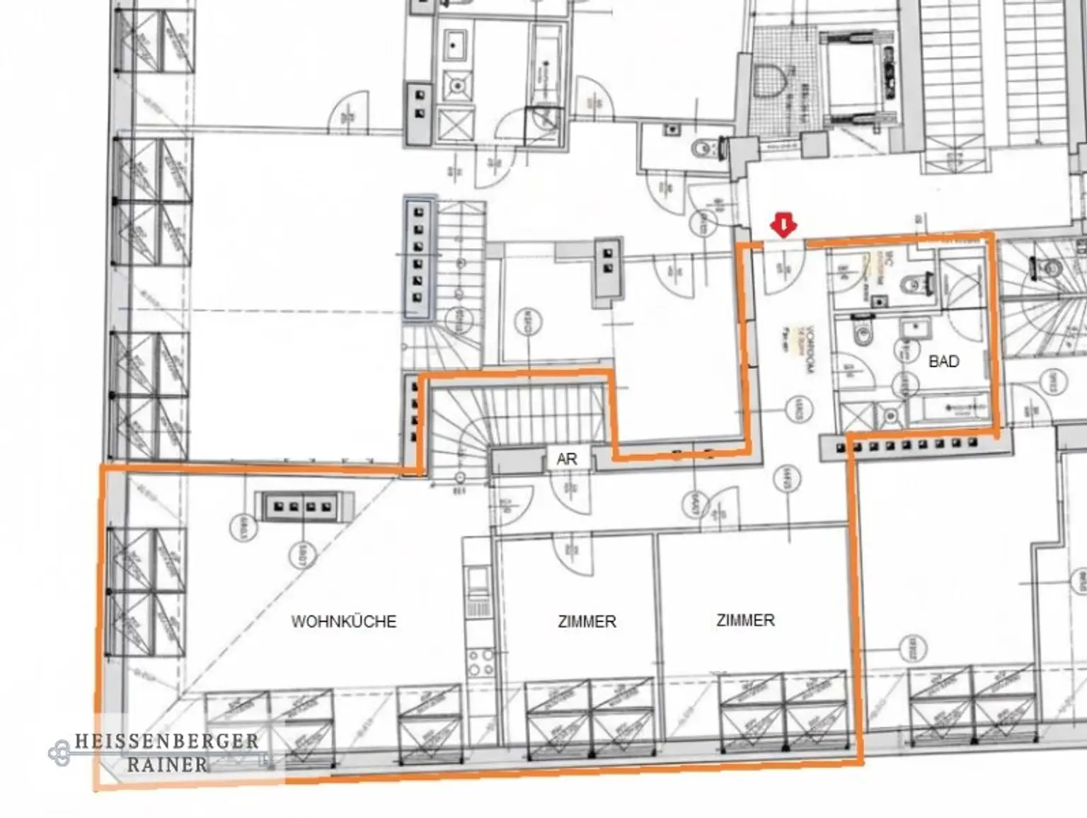
Aufteilung:

Ebene 1

* Vorraum
* großer Wohn-/Essbereich mit offener Küche
* 2 Schlafzimmer
* Badezimmer
* Gästetoilette

Ebene 2

* Galerie/Lounge
* Terrasse

Die Wohnung ist klimatisiert und ist mit Fußbodenheizung und elektrischer Außenbeschattung ausgestattet.

Die Infrastruktur ist auf Grund der zentralen Lage nahe dem Hauptbahnhof absolut hervorragend. Perfekt für Familien und zum Sport ist der nahe gelegene Schweizergarten, das in direkter Nähe gelegene Hotel Daniel lädt zum Brunch und Abendessen ein und ist die perfekte Unterkunft für den Besuch!

Der Hauptbahnhof mit der Linie U1, den Schnellbahnen und Fernzügen ist zu Fuß sehr gut erreichbar, die Straßenbahnen an der Station Quartier Belvedere. Auch die Anbindung an das Autobahnnetz ist perfekt gegeben; trotz der Innenstadtnähe ist man in wenigen Minuten bereits auf der Tangente bzw. der Ostautobahn.

Der Immobilienmakler erklärt, dass er – entgegen dem in der Immobilienwirtschaft üblichen Geschäftsgebrauch des Doppelmaklers – einseitig nur für den Vermieter tätig ist.

Infrastruktur / Entfernungen

Gesundheit
Arzt <250m
Apotheke <500m
Klinik <1.000m
Krankenhaus <1.000m

Kinder & Schulen
Schule <500m
Kindergarten <500m
Universität <1.000m
Höhere Schule <750m

Nahversorgung
Supermarkt <500m
Bäckerei <250m
Einkaufszentrum <1.000m

Sonstige
Geldautomat <250m
Bank <250m
Post <750m
Polizei <1.000m

Verkehr
Bus <250m
U-Bahn <1.000m
Straßenbahn <250m
Bahnhof <250m
Autobahnanschluss <1.750m

Angaben Entfernung Luftlinie / Quelle: OpenStreetMap
Beschreibung weiterlesen

Lage und Verkehrsanbindung

Belvedere, Hauptbahnhof, Schweizergarten

Energieeffizienz

HWB:
33,56 kWh/(m²*a)
HWB Klasse:
B
fGEE:
0,96
fGEE Klasse:
B
Energieausweisart:
Energiebedarfs-ausweis
Gültig bis:
14.10.2026

Grundrisse

Lageplan

1030 Wien | Wien 3., Landstraße

Lade...
Frieder Tim Heissenberger MSc

Frieder Tim Heissenberger MSc
Geschäftsführer

Heissenberger & Partner Immobilien GmbH

Lade...

Fotomix

Bild 1 Bild 2 Bild 3 Bild 4 Bild 5 Bild 6 Bild 7 Bild 8 Bild 9 Bild 10 Bild 11 Bild 12 Bild 13 Bild 14 Bild 15