NEU - # SQ - CHARMANTE ALTBAUWOHNUNG NÄHE U4 FRIEDENSBRÜCKE - 1090 WIEN

Wohnung zum Kauf in 1090 Wien - Kaufpreis: 479.000 € / Objektnummer: 21027
Ausstattung: Boden Fahrstuhl Bad Abstellraum Etagenheizung

Preisinformationen

Kaufpreis:
479.000 €
Kaufpreis/m²
5.787,82 €
Betriebskosten netto:
138,00 € / Monat

Fakten

Objektnummer:
21027
Objekttyp:
Wohnung
Keller Fläche:
2 m²
Wohnfläche:
82,76 m²
Nutzfläche:
82,76 m²
Gesamtfläche:
82,76 m²
Zimmer:
3,5
Badezimmer:
1
Toilette:
1
Stockwerk:
3
Altbau:
Ja
Zustand:
Gepflegt
Verfügbarkeit:
Verfügbar

Beschreibung

Zum Verkauf steht diese ca. ca. 82 m² große 3,5–4-Zimmer-Eigentumswohnung in einer der begehrtesten Lagen des 9. Bezirks in Wien.

Die Wohnung befindet sich im 2. Obergeschoss (nach einem Mezzanin) eines gepflegten Altbaus und ist bequem über einen Lift erreichbar.

Die stilvolle Wohnung besticht durch ihre klassische Wiener Altbau-Atmosphäre, hohe Räume und eine durchdachte Raumaufteilung. Sie bietet sowohl Familien als auch Paaren oder Berufstätigen großzügigen Wohnkomfort in zentraler Lage. Eine seltene Gelegenheit, eine charmante Wohnung in einer Top-Adresse des 9. Bezirks zu erwerben!

 

Eckdaten im Überblick– Top 21

* WNFL: ca. 82,76 m2
* Zimmer: 3,5-4 (jenachdem wie man das Kabinett nützen möchte)
* separates WC
* großzügiges Wohnzimmer
* zwei Schlafzimmer
* Arbeitszimmer/ Kinderzimmer/Kabinett
* Badezimmer mit Dusche
* Küche

Die Wohnung verfügt über schöne Altbaudetails, große Fensterflächen und ein helles, freundliches Ambiente.

Das Objekt liegt im 2. Obergeschoss nach einem Mezzanin eines repräsentativen Altbaus mit Lift. Das Gebäude befindet sich in sehr gutem, gepflegtem Zustand und bietet den typischen Wiener Altbau-Charme.

 

Kaufpreis

* EUR 479.000,– 
* Betriebskosten: € 381,58 inkl. USt und Rep.Rücklage
* Provision: 3 % vom Kaufpreis zzgl. USt.

 

Kontakt:
Für Fragen und Besichtigungen kontaktieren Sie bitte Herrn Arkadi Moullaev unter +43 676 84 42 99 202 oder moullaev@stadtquartier.at

Weitere Objekte auf www.stadtquartier.at
You can add us on Facebook!

 

 

Hinweis gemäß Energieausweisvorlagegesetz: Ein Energieausweis wurde vom Eigentümer bzw. Verkäufer, nach unserer Aufklärung über die generell geltende Vorlagepflicht, sowie Aufforderung zu seiner Erstellung noch nicht vorgelegt. Daher gilt zumindest eine dem Alter und der Art des Gebäudes entsprechende Gesamtenergieeffizienz als vereinbart. Wir übernehmen keinerlei Gewähr oder Haftung für die tatsächliche Energieeffizienz der angebotenen Immobilie.

Wir weisen darauf hin, dass zwischen dem Vermittler und dem zu vermittelnden Dritten ein familiäres oder wirtschaftliches Naheverhältnis besteht.

Der Vermittler ist als Doppelmakler tätig.

Infrastruktur / Entfernungen

Gesundheit
Arzt <500m
Apotheke <500m
Klinik <500m
Krankenhaus <1.500m

Kinder & Schulen
Schule <500m
Kindergarten <500m
Universität <500m
Höhere Schule <1.000m

Nahversorgung
Supermarkt <500m
Bäckerei <500m
Einkaufszentrum <2.000m

Sonstige
Geldautomat <500m
Bank <500m
Post <500m
Polizei <500m

Verkehr
Bus <500m
U-Bahn <500m
Straßenbahn <500m
Bahnhof <500m
Autobahnanschluss <1.500m

Angaben Entfernung Luftlinie / Quelle: OpenStreetMap
Beschreibung weiterlesen

Lage und Verkehrsanbindung

Lage- und Standortbeschreibung

Die Liegenschaft befindet sich in der Gußenbauergasse im Herzen des 9. Bezirks Alsergrund, einer der begehrtesten Wohnlagen Wiens. Die Umgebung ist geprägt von gepflegten Gründerzeithäusern, ruhigen Wohnstraßen und einer ausgezeichneten städtischen Infrastruktur. Einrichtungen des täglichen Bedarfs wie Supermärkte, Apotheken, Restaurants sowie diverse Dienstleistungsangebote befinden sich in unmittelbarer Umgebung.

Öffentliche Verkehrsanbindung

Die Anbindung an das öffentliche Verkehrsnetz ist hervorragend. In wenigen Gehminuten erreicht man:

U4 – Station Friedensbrücke
Direkte Verbindung in Richtung Westbahn, Gürtelbereich sowie zahlreiche Umsteigemöglichkeiten zu anderen U-Bahn- und Schnellbahnlinien.

Straßenbahnlinien 37, 38, 40, 41 und 42
Schnelle Verbindung in die Wiener Innenstadt, zum Schottentor, zur Universität Wien sowie in weitere zentrale Bezirke.

Buslinien je nach Route
Ergänzen das Verkehrsangebot und ermöglichen flexible Erreichbarkeit.

Durch diese optimale Verkehrsanbindung erreicht man sowohl das Stadtzentrum als auch andere wichtige Knotenpunkte Wiens in kurzer Zeit – ideal für Berufstätige, Studierende und Stadtliebhaber.

Umgebung & Lebensqualität

Der Alsergrund bietet ein urbanes, aber ruhiges Wohnumfeld mit hoher Lebensqualität. In der Nähe befinden sich Grünflächen wie der Liechtensteinpark, kulturelle Einrichtungen, Universitäten sowie medizinische Versorgung durch das nahegelegene AKH Wien und private Ordinationen. Die Lage verbindet Wohnkomfort mit urbaner Infrastruktur auf höchstem Niveau.

Franz Josef Bahnhof

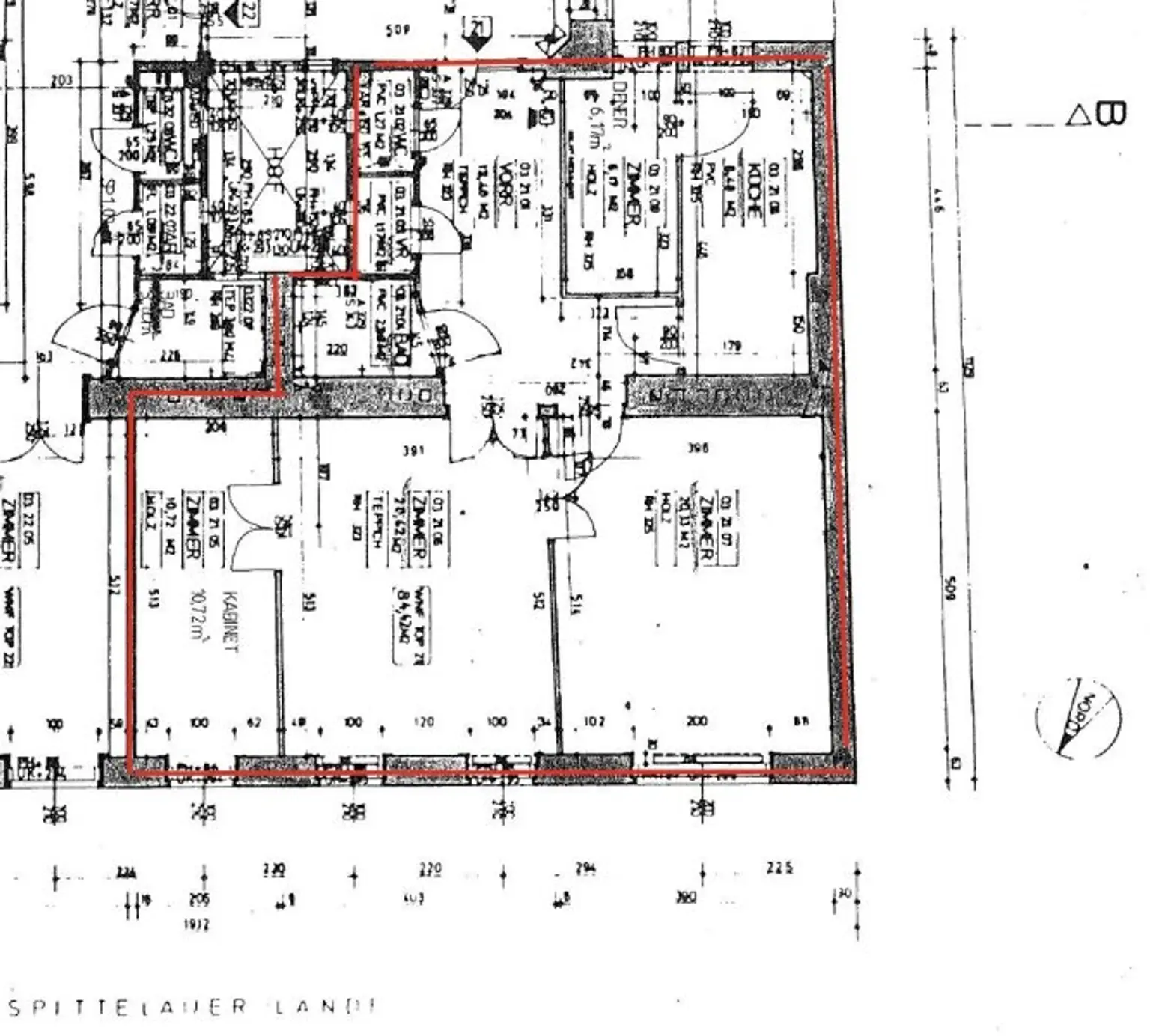
Grundriss

Lageplan

1090 Wien | Wien 9., Alsergrund

Lade...
Arkadi Moullaev

Arkadi Moullaev
Head of Sales

STADTQUARTIER Home GmbH

Lade...

Fotomix

Bild 1 Bild 2 Bild 3 Bild 4 Bild 5 Bild 6 Bild 7 Bild 8 Bild 9 Bild 10 Bild 11 Bild 12 Bild 13 Bild 14 Bild 15 Bild 16 Bild 17 Bild 18 Bild 19 Bild 20 Bild 21 Bild 22 Bild 23