NEU - #SQ - HOCH 33 – EIGENTUM MIT AUSSICHT: WOHNEN IM HÖCHSTGELEGENEN WOHNGEBÄUDE WIENS - EARLY BIRD PREISE BIS 31.12.2026

Wohnung zum Kauf in 1100 Wien - Kaufpreis: 466.000 € / Objektnummer: 21265
Ausstattung: Barrierefrei Boden Fahrstuhl Wohnküche / offene Küche Bad Sauna Wellnessbereich Kabel/Satelliten-TV Tiefgarage Parkplatz Fahrradraum Abstellraum Fernwärme Balkon Loggia

Preisinformationen

Kaufpreis:
466.000 €
Kaufpreis/m²
4.872,95 €

Fakten

Objektnummer:
21265
Objekttyp:
Wohnung
Balkon:
1
Loggia:
1
Balkonfläche:
5,26 m²
Wohnfläche:
92,79 m²
Loggia Fläche:
2,84 m²
Nutzfläche:
95,63 m²
Zimmer:
3
Badezimmer:
2
Toilette:
2
Stockwerk:
5
Baujahr:
2018
Neubau:
Ja
Zustand:
Gepflegt
Verfügbarkeit:
Verfügbar

Beschreibung

Diese lichtdurchflutete 3-Zimmer-Wohnung im 5. Obergeschoß vereint urbanes Wohnen mit einem außergewöhnlichen Lebensgefühl: Weitblick und modernes Design – mitten in Wien.

HOCH 33: Sie genießen hier nicht nur ein durchdachtes Zuhause, sondern ein Wohnkonzept, das Komfort, Architektur und Lebensqualität in perfekter Balance verbindet.

Die Wohnung ist sofort bezugsfertig, hochwertig ausgestattet und ideal für alle, die Stadtleben mit einem besonderen Anspruch verbinden möchten.

-------------

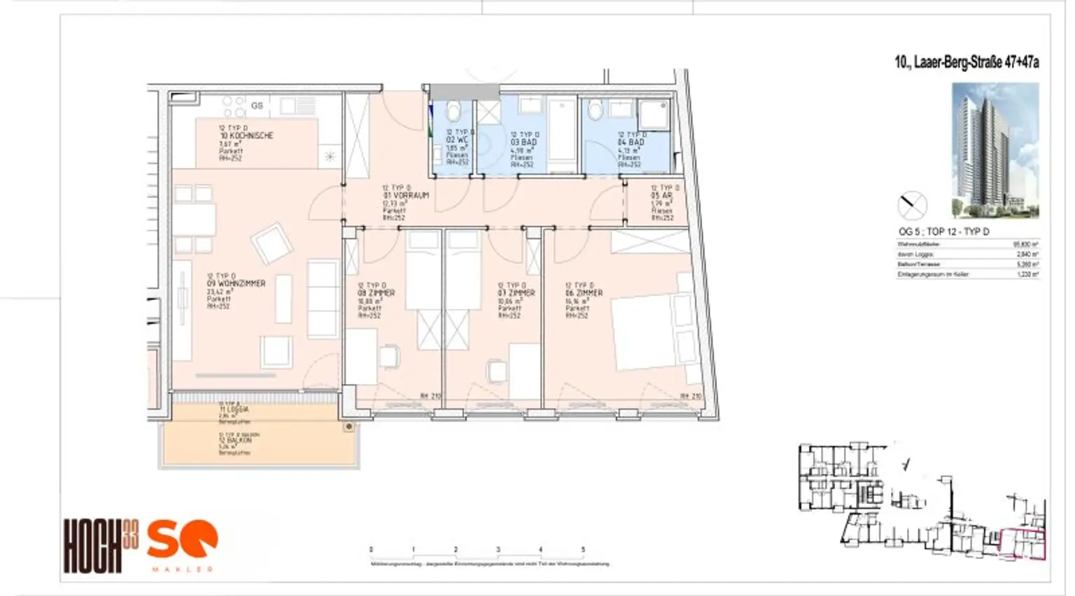
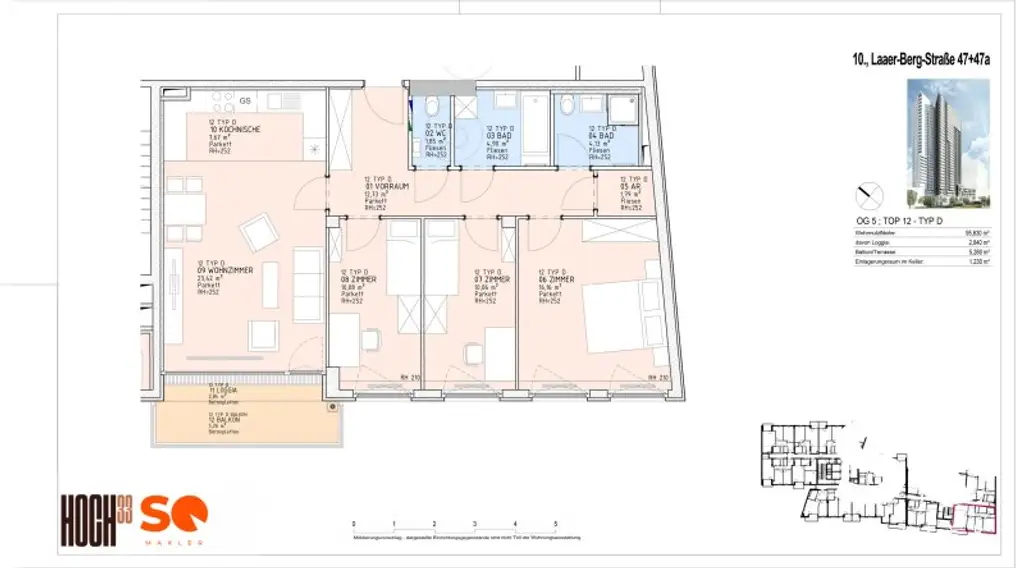
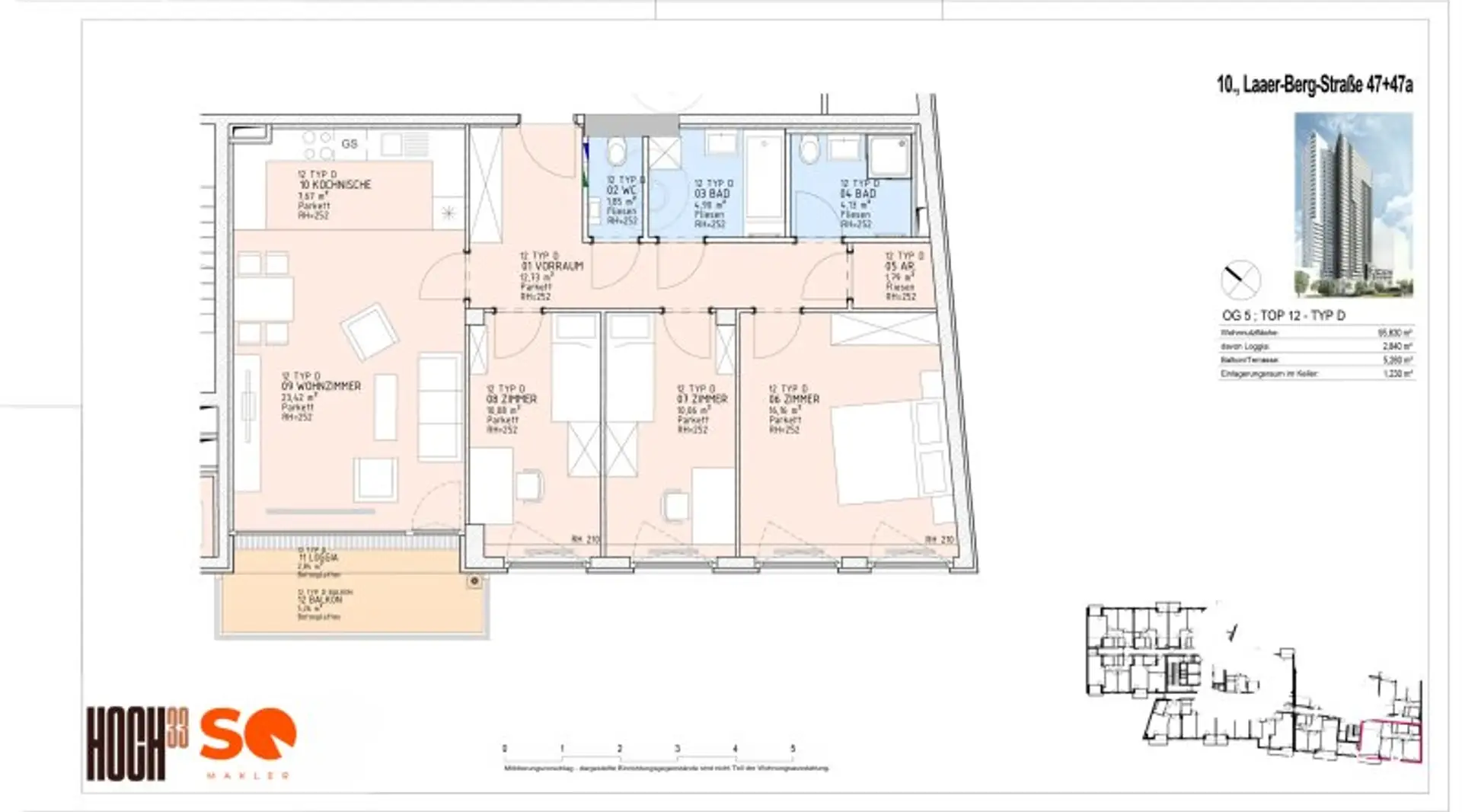
Die Wohnung im Überblick – Top 12

* 5. Obergeschoß mit Lift
* Wohnfläche: ca. 92,79m² zzgl. Loggia mit ca. 2,84m²
* Balkon: ca. 5,26m²
* Zimmer: 3

Ein Zuhause über den Dächern Wiens – mit beeindruckender Fernsicht und optimaler Belichtung.

-------------

Raumaufteilung

Wohnküche
Offener, heller Wohnbereich mit moderner Einbauküche – perfekt für entspannte Abende oder mit Gästen.

Schlafzimmer
Ruhig gelegen und ideal als persönlicher Rückzugsort.

Badezimmer
Mit Badewanne, Waschbecken und Waschmaschinenanschluss.

Balkon / Loggia
Kompakter Außenbereich mit atemberaubendem Blick über die Stadt.

-------------

Highlights & Ausstattung

Leistbarer Luxus mit Service und Stil:

* Atemberaubender Weitblick über Wien
* Fitness-, Spa- & Wellnessbereich mit Sauna und Dampfbad gegen Nutzungsgebühr
* Gemeinschaftsterrasse & Lounge im Ausmaß von ca. 350 m²
* Portierservice
* Energieeffiziente Bauweise mit Fernwärme
* Fußbodenheizung ab der 21.Etage & moderne Ausstattung
* Lift & barrierefreier Zugang

Hier wohnen Sie nicht nur – Sie erleben Wohnen neu.

-------------

Das Projekt – HOCH 33

HOCH 33 ist ein architektonisches Wahrzeichen im aufstrebenden Stadtteil Monte Laa im 10. Bezirk.

* 33 Stockwerke – Im Rahmen dieses Projekts bietet sich Ihnen die exklusive Möglichkeit, die höchstgelegenen Wohnungen Wiens zu erwerben.
* Alle Einheiten mit Balkon, Loggia oder Terrasse
* Tiefgarage
* Errichtet von PORR Bau GmbH

Ein fertiggestelltes Projekt ohne Bauträgerrisiko – ideal für Eigennutzer:innen und Anleger:innen.

Homepage: www.hoch33.at [http://www.hoch33.at]

-------------

Lage & Infrastruktur

Urban leben und gleichzeitig im Grünen durchatmen:

* U1 Troststraße in Gehnähe
* Schnelle Anbindung ins Stadtzentrum
* Direkter Zugang zur A23
* Einkaufsmöglichkeiten, Schulen & Gastronomie in unmittelbarer Umgebung
* Laaer Wald, Löwygrube & Böhmischer Prater in der Nähe

Ein Standort mit Zukunft – und hoher Lebensqualität.

-------------

Kosten

Kaufpreis: € 466.000,-
Anlegerpreis: € 446.000,- zzgl. USt

Betriebskosten: ca. € 2,75 /m²
Rücklage: ca. € 1,13/m² (gestaffelt laut WEV)

Provision: 3% vom Kaufpreis zzgl. 20% USt.
Vertragserrichtung: ca. 2% zzgl. Nebenkosten

-------------

Fazit

Diese Wohnung ist mehr als nur ein Zuhause:
Sie verbindet durchdachte Architektur, hochwertige Ausstattung und einen Ausblick, den man in Wien nur selten findet.

Ideal für:

* Singles & Paare
* Stadtmenschen mit Anspruch
* Anleger:innen mit Blick auf nachhaltige Wertentwicklung

-------------

Wir weisen darauf hin, dass zwischen dem Vermittler und dem zu vermittelnden Dritten ein familiäres oder wirtschaftliches Naheverhältnis besteht.

Der Vermittler ist als Doppelmakler tätig.

Infrastruktur / Entfernungen

Gesundheit
Arzt <1.000m
Apotheke <500m
Klinik <1.500m
Krankenhaus <3.000m

Kinder & Schulen
Schule <500m
Kindergarten <500m
Universität <1.000m
Höhere Schule <3.000m

Nahversorgung
Supermarkt <500m
Bäckerei <1.000m
Einkaufszentrum <1.500m

Sonstige
Geldautomat <1.000m
Bank <1.000m
Post <1.000m
Polizei <1.000m

Verkehr
Bus <500m
U-Bahn <1.000m
Straßenbahn <1.000m
Bahnhof <1.000m
Autobahnanschluss <500m

Angaben Entfernung Luftlinie / Quelle: OpenStreetMap
Beschreibung weiterlesen

Lage und Verkehrsanbindung

Die Adresse in der Laaer-Berg-Straße 47 befindet sich im 10. Wiener Gemeindebezirk Favoriten in einem ruhigen Wohngebiet nahe dem Laaer Berg. Die Umgebung ist durch moderne Wohnanlagen sowie eine gut ausgebaute Infrastruktur geprägt. In unmittelbarer Nähe liegen attraktive Grünflächen wie der Laaer Wald, die vielfältige Erholungs- und Freizeitmöglichkeiten bieten. Ebenso befindet sich der Böhmische Prater in kurzer Distanz und stellt ein beliebtes Ausflugsziel mit zahlreichen Freizeitangeboten dar.

Die öffentliche Verkehrsanbindung ist insgesamt als sehr gut zu bewerten. Mehrere Buslinien, insbesondere 68A und 68B, sind in wenigen Gehminuten erreichbar. Zusätzlich befinden sich die U-Bahn-Stationen Troststraße sowie Altes Landgut (beide U1) in der Nähe und bieten eine direkte und schnelle Verbindung in die Wiener Innenstadt, etwa zum Stephansplatz.

Für den Individualverkehr besteht durch die Nähe zur Südosttangente eine gute Anbindung an das überregionale Straßennetz. Insgesamt bietet der Standort eine ausgewogene Kombination aus ruhiger Wohnlage, ausgezeichneter Erreichbarkeit und Nähe zu vielfältigen Erholungsgebieten.

Energieeffizienz

HWB:
23,5 kWh/(m²*a)
HWB Klasse:
B
fGEE:
0,82
fGEE Klasse:
A
Energieausweisart:
Energiebedarfs-ausweis
Gültig bis:
23.10.2033

Grundriss

Lageplan

1100 Wien | Wien 10., Favoriten

Lade...
Mona Taghavi

Mona Taghavi
Senior Immobilienberaterin

STADTQUARTIER Home GmbH

Lade...

Fotomix

Bild 1 Bild 2 Bild 3 Bild 4 Bild 5 Bild 6 Bild 7 Bild 8 Bild 9 Bild 10 Bild 11 Bild 12 Bild 13 Bild 14 Bild 15 Bild 16 Bild 17 Bild 18 Bild 19 Bild 20 Bild 21 Bild 22