NEU - Stadt - Land Terrassen-Maisonette mit kl. Garten in idyllischer Ruhelage - AB MÄRZ!!!

Wohnung zur Miete in 1210 Wien - Gesamtmiete: 1.560,16 € / Objektnummer: 5733
Ausstattung: Fahrstuhl Fußbodenheizung Terrasse Garten
Bild (2)
Bild (3)
Bild (1)
Bild (4)
Bild (5)
Bild (6)
Bild (7)
Bild (8)
Bild (9)
Bild (10)
Bild (11)
Bild (12)
Bild (13)
Bild (14)
Bild (15)
Bild (18)
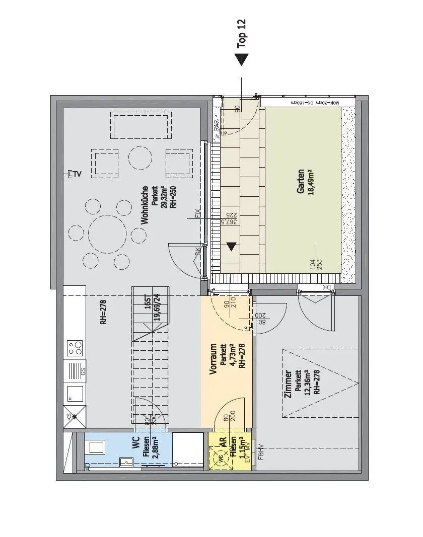
Plan 12 EG
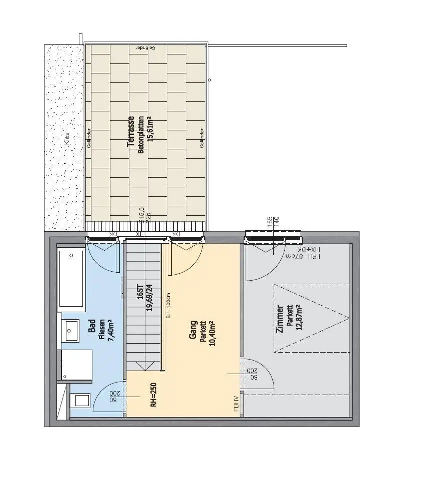
Plan 12 OG
Außenansicht
Parkplatz und Garage
IMMY Preisträger

Preisinformationen

Gesamtmiete:
1.560,16 € / Monat
Betriebskosten netto:
242,23 € / Monat
Umsatzsteuer:
141,83 €
Kaution:
4.685,00 €

Fakten

Objektnummer:
5733
Objekttyp:
Wohnung
Terrasse:
1
Wohnfläche:
81,11 m²
Gartenfläche:
19 m²
Zimmer:
3
Badezimmer:
1
Toilette:
2
Baujahr:
2017
Neubau:
Ja
Zustand:
Gepflegt
Verfügbarkeit:
Verfügbar

Beschreibung

Zur Vermietung gelangt diese moderne 3-Zimmer Maisonette in wunderschöner, ruhiger Lage in der Fritz-Kandl-Gasse im Bezirk Strebersdorf.
Durch den Innenhof, vorbei am eigenen kleinen Garten gelangt man zu dieser schönen Neubauwohnung, die vor allem auch mit einer sehr hochwertigen Ausstattung punkten kann.
Auf jeder Wohnebene steht Ihnen ein WC zur Verfügung. Ein weiteres Highlight ist die große Terrasse im Obergeschoß.

Wichtige Entfernungen:
- BILLA - 650m
- Spar 1500m
- Busstation 32A - 350m (Mühlweg)
- Straßenbahnline 26 - 350m (Edward-Hawranek-Platz)

RAUMAUFTEILUNG IN STICHWORTEN (EG)
• Vorraum
• Zimmer
• Abstellraum mit Waschmaschinenanschluss
• Wohnzimmer mit offener Küche
• WC mit Waschbecken
• Garten und Terrassenweg

RAUMAUFTEILUNG IN STICHWORTEN (OG)
• Vorraum
• Schlafzimmer
• Bad mit Badewanne, Dusche, Waschbecken und WC
• großer Terrasse


HIGHLIGHTS UND AUSSTATTUNGSMERKMALE
• absolut neuwertig
• Fußbodenheizung
• hochwertige Einbauküche
• elektr. Außenjalousien
• Sicherheitswohnungseingangstüren
• hochwertiger Parkettboden (Eiche)
• sehr gute Raumaufteilung
• Fahrradraum und eigenes Kellerabteil
• 26 überdachte Stellplätze separat anmietbar (je nach Verfügbarkeit)
• 19m² Eigengarten
• große Terrasse im OG.

SEHR GUTE ÖFFENTLICHE VERKEHRSANBINDUNG
• Autobuslinie: 32A
• Straßenbahnlinie: 26
• S-Bahn: Bahnhof Strebersdorf (1,3km)
• Regionalbus: 510, 850

ERSTZAHLUNG
• 3 BMM Kaution
• erste Monatsmiete im Voraus

ZUSÄTZLICHE MONATLICHE KOSTEN
• Wasser, Heizung... werden von der ISTA nach tatsächlichem Verbrauch abgerechnet
• Strom - wird direkt nach Verbrauch abgerechnet (Wien Energie bzw. Netznutzung Wiener Netze)
• ggf. TV/Internet, Haushaltsversicherung, GIS, o.Ä.

VERTRAGSBEDINGUNGEN
• Befristung: 10 Jahre
• Kündigungsverzicht: 12 Monate (mieterseitig)
• Kündigungsfrist: 3 Monate
• gefordertes Mindestnettoeinkommen (Haushalt): € 3900,-


ICH BIN IHR MAKLER
Herr Robert Fried
Mobil: +43 664 88 296 010
Email: robert.fried@hubner-immobilien.com

Falls Sie Fragen haben oder einen Besichtigungstermin vereinbaren möchten, stehen wir Ihnen selbstverständlich sehr gerne zur Verfügung. Wir freuen uns auf Ihre Kontaktaufnahme!

__
Angaben gemäß gesetzlichem Erfordernis:
Miete 1176,1 zzgl 10% USt.
Betriebskosten 242,23 zzgl 10% USt.
Umsatzsteuer 141,83
---------------------------------
Gesamtbetrag 1560,16
---------------------------------
Heizwärmebedarf: 35.16 kWh/(m²a)
Klasse Heizwärmebedarf: B
Faktor Gesamtenergieeffizienz: 0.84
Klasse Faktor Gesamtenergieeffizienz: A
Beschreibung weiterlesen

Energieeffizienz

HWB:
35,1 kWh/(m²*a)
HWB Klasse:
B
fGEE:
0,84
fGEE Klasse:
A
Energieausweisart:
Energiebedarfs-ausweis
Robert Fried

Robert Fried

Hubner Immobilien GmbH

Lade...

Fotomix

Bild (2) Bild (3) Bild (1) Bild (4) Bild (5) Bild (6) Bild (7) Bild (8) Bild (9) Bild (10) Bild (11) Bild (12) Bild (13) Bild (14) Bild (15) Bild (18) Plan 12 EG Plan 12 OG Außenansicht Parkplatz und Garage IMMY Preisträger