NEU - Stadtvillen in Mödling. Zukunft sichern.

Wohnung zum Kauf in 2340 Mödling - Kaufpreis: 493.950 € / Objektnummer: 91901
Ausstattung: Boden Fahrstuhl Wohnküche / offene Küche Bad Tiefgarage Parkplatz Fahrradraum Abstellraum Fußbodenheizung Balkon

Preisinformationen

Kaufpreis:
493.950 €
Vermittlungsprovision:
Ja
Provision:
Provision bezahlt der Abgeber.

Fakten

Objektnummer:
91901
Objekttyp:
Wohnung
Balkon:
1
Balkonfläche:
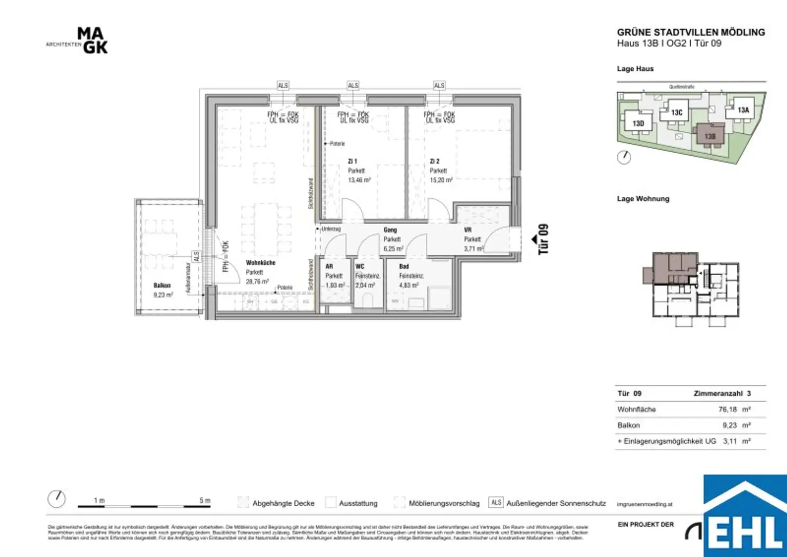
9,23 m²
Keller Fläche:
3,11 m²
Wohnfläche:
76,18 m²
Zimmer:
3
Badezimmer:
1
Toilette:
1
Stockwerk:
2
Baujahr:
2026
Neubau:
Ja
Zustand:
Erstbezug
Verfügbarkeit:
Verfügbar

Beschreibung

Nachhaltig wohnen. Urban leben. Natürlich ankommen.

Nachhaltig investieren. Langfristig vorsorgen.

Ab Sommer 2026 werden vier baulich getrennte Stadtvillen in moderner Holzbauweise fertiggestellt. Das Projekt umfasst insgesamt 47 hochwertig geplante Eigentums- und Anlegerwohnungen mit zwei bis fünf Zimmern und bietet eine solide Grundlage für nachhaltige Vermögensbildung und generationenübergreifende Vorsorge.

Die durchdachten Grundrisse, privaten Freiflächen sowie eine eingeschossige Tiefgarage mit 71 Stellplätzen sichern eine hohe Wohn- und Vermietungsqualität. Die nachhaltige Bauweise in Kombination mit Photovoltaikanlagen und einer modernen Geothermieanlage sorgt für geringe Betriebskosten und langfristige Wertstabilität.

Großzügige Grün- und Gemeinschaftsflächen sowie die aufgelockerte Anordnung der Gebäude erhöhen die Attraktivität des Wohnumfelds und unterstützen eine stabile Nachfrage am Mietmarkt.

Ein zukunftsorientiertes Wohnprojekt für Anlegerinnen und Anleger, die auf Qualität, Nachhaltigkeit und langfristige Erträge setzen.

 Ganz in der Nähe der Anlage befindet sich ein weiteres Projekt – „Wohnhausanlage am Fliegenspitz“ – in dem wir ebenso Eigentums- sowie Vorsorgewohnungen anbieten. Für nähere Informationen hierfür stehen wir selbstverständlich auch gerne zur Verfügung.

 

In der hauseigenen Tiefgarage stehen Stellplätze zum Ankauf zur Verfügung.

Das Projekt:

* 47 Eigentums- und Vorsorgewohnungen

* Wohnungsgrößen von 53 m² bis 104 m²

* Tiefgarage mit 71 Stellplätzen (Installation einer E-Ladestation möglich)

* Gemeinschaftliche Freibereiche wie Kinderspielplätze und Gemeinschaftsgärten
* Fahrrad- und Kinderwagenabstellräume
* Eine Einlagerungsmöglichkeit je Wohnung im Untergeschoss
* Private Freiflächen in Form von Gärten, Balkonen oder Terrassen

 

Die Ausstattung:

* Fußbodenheizung und -temperierung mittels Sole-Wasser-Wärmepumpe
* Photovoltaikanlagen
* Hochwertige Eichenparkettböden
* Elegantes Feinsteinzeug in den Nassräumen
* Holz-Holz-Fenster mit 3-fach-Verglasung
* Außenliegender, elektrisch betriebener Sonnenschutz
* Markisen auf den Balkonen mit automatischer Windüberwachung im Dachgeschoss
* Vorbereitung zur nachträglichen Installation von Split-Klimageräten in allen Wohnungen

 

Die Lage & Infrastruktur:

Die Stadtvillen liegen in einer zentralen und zugleich angenehmen Wohnlage in Mödling, einer Stadt mit ausgezeichneter Infrastruktur und hoher Lebensqualität. Die Innenstadt ist in 10-15 Minuten zu Fuß oder in 5-10 Minuten mit Rad, Auto und Öffis erreichbar. Auch Wien erreicht man nach nur rund 45 Minuten mit dem Auto oder Zug.

Öffentliche Anbindung:

Die Stationen der Buslinien 259 und 263 befinden sich nur 4 Gehminuten von der Haustüre entfernt.
Der Bahnhof Mödling ist dadurch schnell erreichbar und bietet u.a. eine schnelle Verbindung nach Wien.

Nahversorgung:

Supermärkte, Bäckereien, Apotheken sowie weitere Geschäfte des täglichen Bedarfs befinden sich im nahen Umfeld. Auch Cafés und Restaurants sind rasch erreichbar.

Medizinische Versorgung:

Eine sehr gute medizinische Infrastruktur mit Allgemein- und Fachärzten, Apotheken sowie dem Landesklinikum Mödling sorgt für umfassende Versorgung.

Schulen und Kindergärten:

Kindergärten sowie Volks- und weiterführende Schulen sind ebenfalls teils fußläufig erreichbar – ideal für Familien.

 

Kaufpreise der Vorsorgewohnungen

von EUR 333.750,- bis EUR 685.300,- netto zzgl. 20% USt.

Zu erwartender Mietertrag

von ca. EUR 15,00 bis EUR 16,75 netto/m²

Provisionsfrei für den Käufer
Fertigstellung: Sommer 2026

Bei diesem Angebot handelt es sich um eine Vorsorgewohnung, die zu Vermietungszwecken erworben wird. Der angegebene Kaufpreis versteht sich daher zzgl. 20% USt. Diese Daten sind vorbehaltlich möglicher Änderungen.

Einen detaillierteren Einblick finden Sie auf unserer EHL-Projekthomepage [https://www.ehl.at/wohnen/wohnprojekte/gruene-stadtvillen-quellenstrasse-13-2340-moedling]!

Wir weisen darauf hin, dass zwischen dem Vermittler und dem zu vermittelnden Dritten ein familiäres oder wirtschaftliches Naheverhältnis besteht.

Der Vermittler ist als Doppelmakler tätig.

Infrastruktur / Entfernungen

Gesundheit
Arzt <500m
Apotheke <500m
Klinik <750m
Krankenhaus <2.000m

Kinder & Schulen
Schule <250m
Kindergarten <250m
Höhere Schule <500m

Nahversorgung
Supermarkt <250m
Bäckerei <1.250m
Einkaufszentrum <1.500m

Sonstige
Bank <1.000m
Geldautomat <1.000m
Post <1.000m
Polizei <1.250m

Verkehr
Bus <250m
U-Bahn <6.500m
Bahnhof <1.500m
Autobahnanschluss <3.750m
Straßenbahn <3.750m

Angaben Entfernung Luftlinie / Quelle: OpenStreetMap
Beschreibung weiterlesen

Lage und Verkehrsanbindung

Friedrichswand

Energieeffizienz

HWB:
23,9 kWh/(m²*a)
HWB Klasse:
A
fGEE:
0,42
fGEE Klasse:
A++
Energieausweisart:
Energiebedarfs-ausweis
Gültig bis:
19.02.2033

Dokumente

Grundriss

Lageplan

2340 Mödling | Mödling

Lade...
Andrea PÖCHHACKER; MSc

Andrea PÖCHHACKER; MSc
Leitung Wohninvestment

EHL Wohnen GmbH

Lade...

Fotomix

Bild 1 Bild 2 Bild 3 Bild 4 Bild 5 Bild 6 Bild 7 Bild 8 Bild 9 Bild 10 Bild 11