NEU - Stilaltbauetage

Wohnung zur Miete in 1050 Wien - Gesamtmiete: 2.570,42 € / Objektnummer: 1649/4123
Ausstattung: Boden Fahrstuhl Kabel/Satelliten-TV Balkon
Zimmer mit Stuckdecke
Küche
Zimmer mit Stuckdecke
Bad 2
Bad 1
Park, Blick Haus des Meeres
Hauseingang
Blick Park
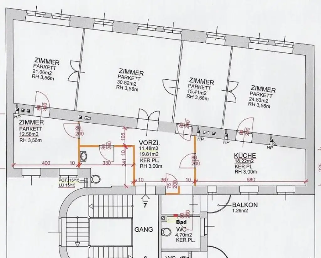
Grundriss

Preisinformationen

Gesamtmiete:
2.570,42 € / Monat
Nettomiete:
1.976,00 € / Monat
Betriebskosten netto:
360,75 € / Monat
Umsatzsteuer:
233,67 €
Kaution:
8.000,00 €
Provision:
provisionsfrei

Fakten

Objektnummer:
1649/4123
Objekttyp:
Wohnung
Balkon:
1
Balkonfläche:
1,26 m²
Wohnfläche:
155 m²
Gesamtfläche:
155 m²
Zimmer:
5
Schlafzimmer:
4
Badezimmer:
2
Toilette:
2
Baujahr:
1900
Verfügbarkeit:
Verfügbar

Beschreibung

Altbauetage  beim Naschmarkt!

In einem gepflegten Altbau, unmittelbar bei der U4 Station Kettenbrückengasse, gelangt im Hochparterre eine helle 5-Zimmer-Küche-Wohnung  mit Parkblick zur befristeten Vermietung.

Eine Wohngemeinschaft ist in diesem Fall nicht möglich.

Lage:
Die Wohnung liegt in unmittelbarer Nähe zum traditionsreichen Naschmarkt mit seinen vielen Verkaufsständen und vielfältigem Gastronomieangebot. Die ausgezeichnete Infrastruktur bietet Geschäfte für den täglichen Bedarf vor der Türe (Supermarkt, Apotheke, Drogeriemarkt, usw.). Wiens größte Einkaufsstraße, die Mariahilfer Straße, liegt in Gehdistanz. Die Innenstadt ist nur eine U-Bahn-Station entfernt.

Raumaufteilung:
Zentrales  Vorzimmer, 5 Zimmer, Küche, 2 Bäder, 2 WC, kleiner Balkon

Ausstattung:
Komplettküche, Parkettboden in den Wohnräumen, Nassräume verfliest, Gas-Etagenheizung, Aufzug

Öffentliche Verkehrsmittel: U4 Kettenbrückengasse in 100 m Entfernung, sowie die Buslinien 12A, 13A, 14A, 57A und 59A

Beschreibung weiterlesen

Lage und Verkehrsanbindung

U4 - Kettenbrückengasse

Energieeffizienz

Endenergiebedarf:
124,9 kWh/(m²*a)
HWB:
124,9 kWh/(m²*a)
HWB Klasse:
D
Energieausweisart:
Energiebedarfs-ausweis

Grundriss

Gerhard Wagner

Gerhard Wagner

Altenburg Realitäten GmbH & Co KG

Lade...

Fotomix

Zimmer mit Stuckdecke Küche Zimmer mit Stuckdecke Bad 2 Bad 1 Park, Blick Haus des Meeres Hauseingang Blick Park