NEU - Stilvolle 3-Zimmer-Altbauwohnung in exklusiver City-Bestlage

Wohnung zur Miete in 1010 Wien - Gesamtmiete: 2.335,00 € / Objektnummer: 101/18590
Ausstattung: Möbliert Etagenheizung
1
2
3
4
5
6
7
8
9
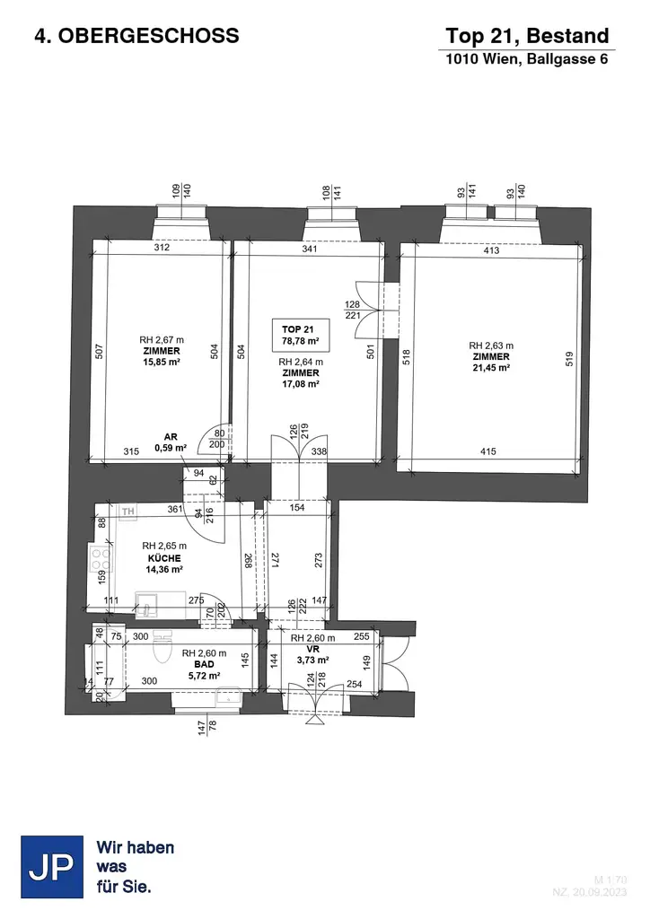
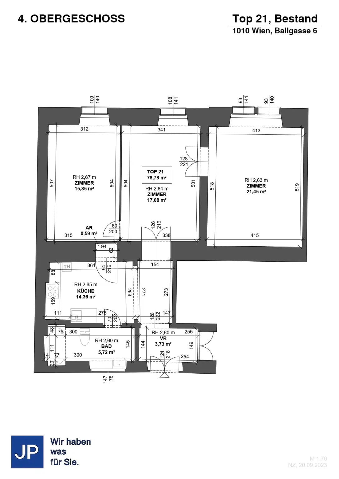
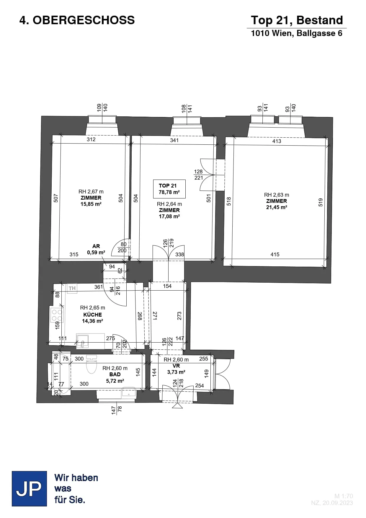
Plan Top 21

Preisinformationen

Gesamtmiete:
2.335,00 € / Monat
Nettomiete:
1.892,25 € / Monat
Betriebskosten netto:
230,48 € / Monat
Umsatzsteuer:
212,27 €
Kaution:
7.005,00 €
Provision:
provisionsfrei

Fakten

Objektnummer:
101/18590
Objekttyp:
Wohnung
Wohnfläche:
78,78 m²
Zimmer:
3
Badezimmer:
1
Toilette:
1
Stockwerk:
4
Altbau:
Ja
Verfügbarkeit:
Verfügbar

Beschreibung

Diese großzügige Altbauwohnung im 4. Obergeschoss eines klassischen Wiener Innenstadtgebäudes überzeugt durch ihre klare Raumstruktur, angenehme Raumhöhen und eine repräsentative Wohnatmosphäre in bester Innenstadtlage. Auf rund 79 m² Wohnfläche bietet die Wohnung ein hochwertiges Zuhause für anspruchsvolle Stadtliebhaber. Drei gut proportionierte Zimmer ermöglichen eine flexible Nutzung als Wohn-, Schlaf- oder Arbeitsräume. Raumhöhen von rund 2,60 m bis 2,65 m sowie große Fensterflächen sorgen für helle, freundliche Räume und unterstreichen den klassischen Altbaucharakter. Die separate Küche ist funktional geschnitten und bietet ausreichend Platz für eine komfortable Küchenausstattung. Das Badezimmer ist zeitgemäß ausgeführt, der kompakte Vorraum sorgt für eine effiziente Erschließung aller Räume. Ein praktischer Abstellraum ergänzt das Raumangebot sinnvoll. Diese Wohnung eignet sich ideal für Paare, kleine Familien oder auch für Mieter mit Homeoffice-Bedarf, die Wert auf großzügiges Wohnen in zentraler Lage legen. Die exklusive Adresse in der Ballgasse, nur wenige Schritte von Graben, Kohlmarkt und Stephansplatz entfernt, garantiert urbanes Wohnen auf höchstem Niveau mit exzellenter Infrastruktur, kultureller Vielfalt und bester öffentlicher Anbindung. Lage Die Liegenschaft befindet sich in absoluter Bestlage des 1. Wiener Gemeindebezirks, in der ruhigen Ballgasse, einer charmanten Seitengasse zwischen Graben und Kohlmarkt. Die Umgebung ist geprägt von historischer Bausubstanz, exklusiven Boutiquen, renommierten Gastronomiebetrieben sowie kulturellen Einrichtungen. Der Stephansdom ist in wenigen Gehminuten erreichbar. Die öffentliche Verkehrsanbindung ist ausgezeichnet: U-Bahnlinien U1 und U3 (Stephansplatz), U3 (Herrengasse) sowie mehrere Buslinien befinden sich in unmittelbarer Nähe. Sämtliche Einrichtungen des täglichen Bedarfs sowie hochwertige Einkaufsmöglichkeiten sind fußläufig vorhanden. Ansprechpartner Frau Doris Kurzweil || +43 699 17 55 66 16 || dk@jpi.at Wir weisen darauf hin, dass wir entgegen dem in der Immobilienwirtschaft üblichen Geschäftsgebrauch des Doppelmaklers – einseitig nur für den Vermieter tätig sind und wir mit dem Abgeber in ständiger Geschäftsbeziehung stehen und schon aus diesem Grund ein wirtschaftliches Naheverhältnis vorliegt.
Beschreibung weiterlesen

Lage und Verkehrsanbindung

Stephansplatz

Energieeffizienz

HWB:
80,9 kWh/(m²*a)
HWB Klasse:
C
fGEE:
1,76
fGEE Klasse:
D

Grundriss

Doris Kurzweil

Doris Kurzweil

JP Immobilien

Lade...

Fotomix

1 2 3 4 5 6 7 8 9