NEU - Stilvolle 60 m² Wohnung mit offenem Grundriss in Top Lage

Wohnung zum Kauf in 8010 Graz - Kaufpreis: 230.000 € / Objektnummer: 6621
Ausstattung: Barrierefrei Fahrstuhl Parkplatz Außenparkplatz Zentralheizung
schlafen
Wohnen, Essen, Schlafen
1
körösistrasse
Innenhof
Stiegenhaus
schlafen
Fenster
Küche
Küche
Vorraum
Vorraum
Bad
Bad

Preisinformationen

Kaufpreis:
230.000 €
Provision:
3.00 %

Fakten

Objektnummer:
6621
Objekttyp:
Wohnung
Wohnfläche:
60 m²
Zimmer:
1
Badezimmer:
1
Toilette:
1
Baujahr:
ca. 1995
Neubau:
Ja
Zustand:
Gepflegt
Verfügbarkeit:
Verfügbar

Beschreibung

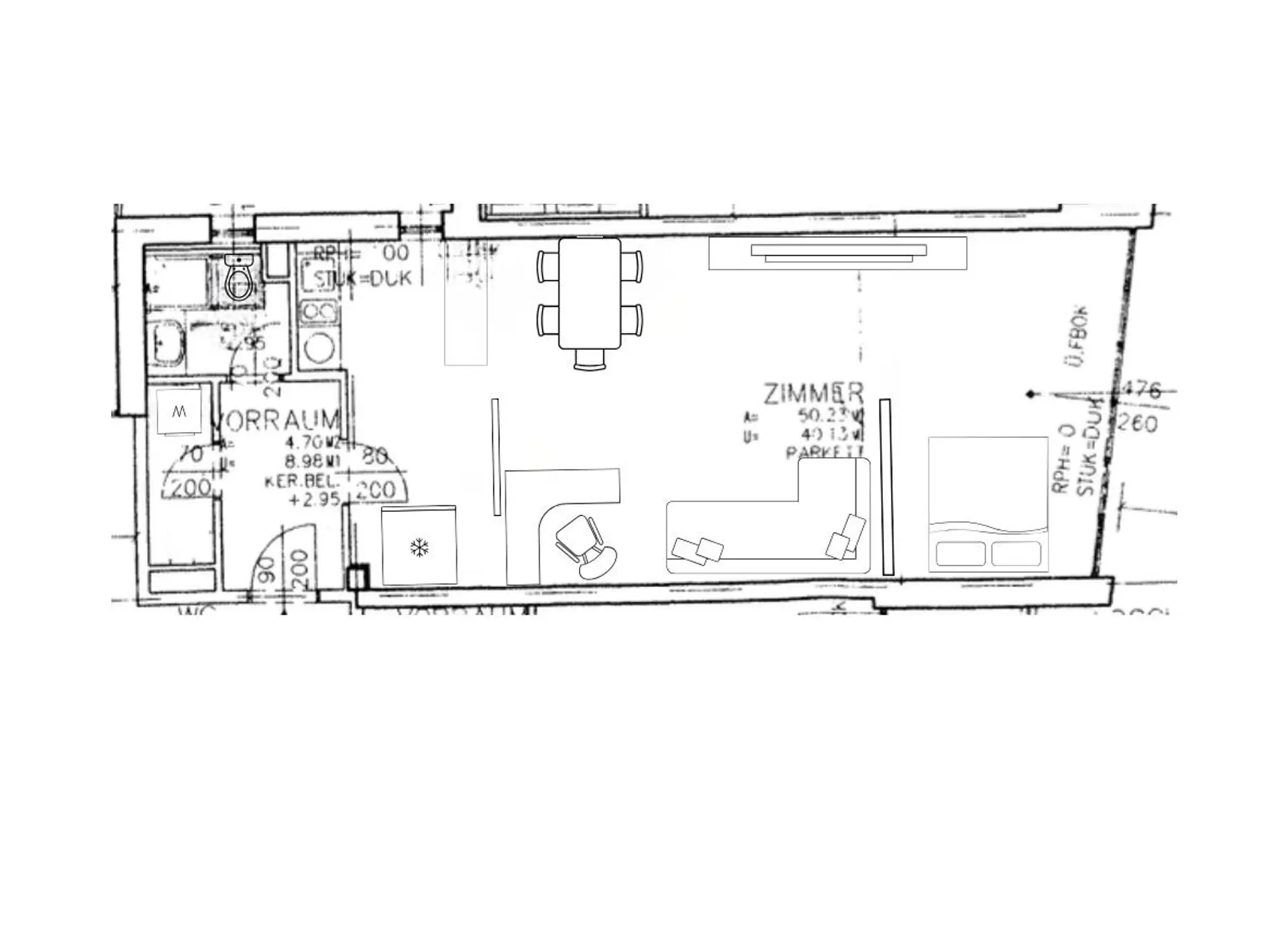
Diese großzügige und moderne 1-Zimmer-Wohnung mit ca. 60 m² Wohnfläche überzeugt durch ihr offenes Raumkonzept und ihre flexible Nutzungsmöglichkeit. Sie befindet sich im 1. Obergeschoss eines gepflegten Hauses mit Lift in der Körösistraße 40–42.

Der offene Wohnbereich bietet ein besonders angenehmes Raumgefühl und viel Platz zur individuellen Gestaltung.

Die Wohnung verfügt über:

- einen Vorraum
- eine Küche
- ein Badezimmer mit Dusche und WC
- einen praktischen Abstellraum mit Waschmaschinenanschluss

Beheizt wird die Wohnung mittels Fernwärme.

Ein Kellerabteil sorgt für zusätzlichen Stauraum.
Ein Tiefgaragenstellplatz kann optional um ca. € 90,- monatlich angemietet werden.

Lage & Infrastruktur:
Die Wohnung punktet mit einer ausgezeichneten Anbindung an den öffentlichen Verkehr. Die Straßenbahn befindet sich in unmittelbarer Nähe und ermöglichen eine schnelle Erreichbarkeit der Innenstadt. Alle wichtigen Einrichtungen des täglichen Bedarfs sind fußläufig erreichbar.

Highlights:
- 60 m² Wohnfläche
- Offenes, modernes Wohnkonzept
- Lift im Haus (1. OG)
- Fernwärme
- Abstellraum & Kellerabteil
- Tiefgarage optional zur Miete
- Sehr gute Öffi-Anbindung

Besichtigungen sind ab sofort möglich!
Angaben gemäß gesetzlichem Erfordernis:
Heizwärmebedarf: 70.9 kWh/(m²a)
Klasse Heizwärmebedarf: C
Faktor Gesamtenergieeffizienz: 1.26
Klasse Faktor Gesamtenergieeffizienz: C
Beschreibung weiterlesen

Energieeffizienz

HWB:
70,9 kWh/(m²*a)
HWB Klasse:
C
fGEE:
1,26
fGEE Klasse:
C
Energieausweisart:
Energiebedarfs-ausweis

Dokumente

Lageplan

8010 Graz | Graz (Stadt)

Lade...
Caroline Brogyanyi

Caroline Brogyanyi

IMMOXX. GmbH

Lade...

Fotomix

schlafen Wohnen, Essen, Schlafen 1 körösistrasse Innenhof Stiegenhaus schlafen Fenster Küche Küche Vorraum Vorraum Bad Bad