NEU - Stilvolles Altbaujuwel in Bestlage von Währing - 4 Zimmer warten auf Sie in der Hofstattgassse!

Wohnung zum Kauf in 1180 Wien - Kaufpreis: 749.000 € / Objektnummer: 247/22028
Ausstattung: Abstellraum Balkon
Wohnraum
Schlafzimmer II
Schlafzimmer I
Wohnküche
Schlafzimmer
Flur
Flur I
Zimmer
Wohnraum I
Toilette
Badezimmer
Zutritt Top 12
Hausansicht
Innenhof
Eingangsbereich
Zutritt
Plan
Lageplan1

Preisinformationen

Kaufpreis:
749.000 €
Kaufpreis/m²
8.192,96 €
Preisinfos:
GrESt 3,5% + Grundbucheintragung 1,1% des Gesamtkaufpreises / Vertragserrichtung 1,2% + Barauslagen, Beglaubigungs-, ggf. Treuhandkosten bei Finanzierung +USt. (Kanzlei Tiefenthaler & Gnesda Rechtsanwälte) / Provision 3…
Vermittlungsprovision:
Ja
Provision:
3%

Fakten

Objektnummer:
247/22028
Objekttyp:
Wohnung
Balkon:
1
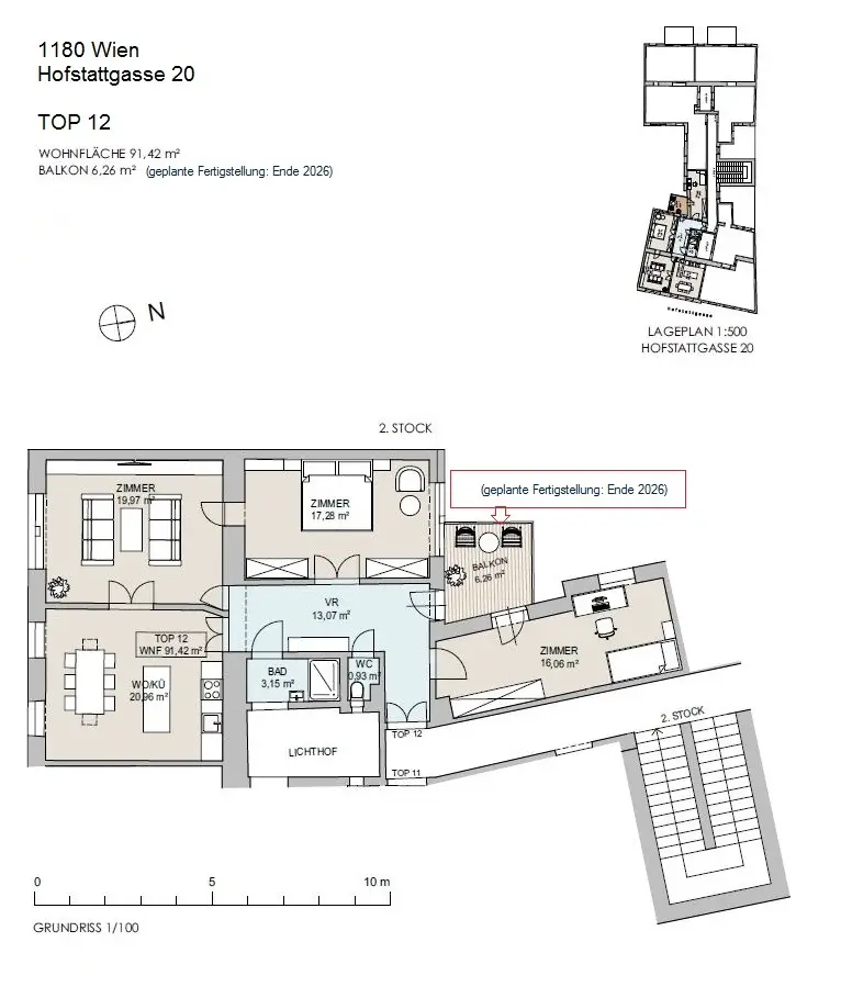
Wohnfläche:
91,42 m²
Zimmer:
4
Badezimmer:
1
Toilette:
1
Baujahr:
1900/san.Altbau
Altbau:
Ja
Verfügbarkeit:
Verfügbar

Beschreibung

In begehrter Lage des 18. Bezirks – in der Hofstattgasse im Herzen von Währing – präsentiert sich dieses charmante Altbauhaus in ausgezeichnetem Zustand. Das stilvolle Gründerzeithaus verbindet klassischen Wiener Altbaucharme mit zukunftsorientierter Modernisierung.Wertbeständiges Investment mit Charme! Die ca. 91,5 m² große 4-Zimmer-Wohnung befindet sich im 2. Obergeschoss eines gepflegten, sanierten Gründerzeithauses. Sie bietet – kurz-, mittel- und langfristig eine absolute Vorteilslage! Das Gebäude im Überblick: - Fassade (Straßen- & Hofseite) frisch gestrichen - neu gestalteter Eingangsbereich mit digitalem „Schwarzen Brett“ - neue Beleuchtungskörper & stilvolle Hängeluster im Altbaudesign - Original-Geländer & historische Mosaikfliesen liebevoll restauriert - Lift wird vertraglich zugesichert und vom Verkäufer errichtet → Geplante Fertigstellung: Ende 2026 / Anfang 2027 - geplante Balkonanbauten werden voraussichtlich bis Herbst/Winter 2026 fertiggestellt - gepflegtes Gesamtbild & nachhaltige Wertsteigerungsperspektive Die Highlights, Facts & Aufteilung: - klassischer Wiener Altbau mit Fischgrätparkett, Flügeltüren und hohen Decken - Raumaufteilung: Vorraum | 4 Zimmer | voll ausgestattete, moderne Küche | modernes Bad mit Dusche |Toilette - ca. 6,26 m² großer Balkon (geplante Fertigstellung: Ende 2026) - Kellerabteil, ca. 7,96 m² - Gasetagenheizung - Leerstand, dadurch sofort verfügbar Lage-Highlights: - Grün & Erholung: Parkanlagen (u.a. Sternwarte- u. Türkenschanzpark) mit Spiel-, Sport- & Erholungsflächen - Öffentliche Anbindung: Straßenbahnlinien 40 und 41 (3 Gehminuten) - Verbindung zur U6 & ins Stadtzentrum - Nahversorgung & Alltag: Die ausgezeichnete Infrastruktur rund um die Währinger Straße und die Gentzgasse bietet eine vielfältige Auswahl an Nahversorgern, Feinkostläden, Boutiquen sowie charmanten Cafés und Restaurants. Sämtliche Angebote des täglichen Bedarfs sind komfortabel fußläufig erreichbar. Der Kaufpreis für diese in ausgezeichneter Lage befindliche Eigentumswohnung beträgt Euro 749.000,-. Vereinbaren Sie noch heute einen Besichtigungstermin und lassen Sie sich von dieser besonderen Immobilie verzaubern. Wir uns über Ihre geschätzte Anfrage per Mail und einen gemeinsamen Besichtigungstermin! Tipp: In diesem Haus stehen aktuell mehrere Wohnungen zum Verkauf. Gerne informieren wir Sie über weitere verfügbare Objekte. Achtung: Wir möchten darauf hinweisen, dass unsere Antwort möglicherweise in Ihrem Spamordner landen könnte. Bitte kontrollieren Sie diesen, wenn Sie keine Rückmeldung auf Ihre Anfrage erhalten haben.
Beschreibung weiterlesen

Energieeffizienz

HWB:
165,3 kWh/(m²*a)
HWB Klasse:
E
fGEE:
2,37
fGEE Klasse:
D

Grundrisse

Bernhard Stachl

Bernhard Stachl

IMV Immobilienmakler

Lade...

Fotomix

Wohnraum Schlafzimmer II Schlafzimmer I Wohnküche Schlafzimmer Flur Flur I Zimmer Wohnraum I Toilette Badezimmer Zutritt Top 12 Hausansicht Innenhof Eingangsbereich Zutritt