NEU - Stilvolles Einfamilienhaus in ruhiger Lage Nähe Alter Donau mit Terrasse und Garten! Königsteingasse 3

Haus zum Kauf in 1210 Wien - Kaufpreis: 1.450.000 € / Objektnummer: 1758870

Preisinformationen

Kaufpreis:
1.450.000 €
Vermittlungsprovision:
Ja
Provision:
3% des Kaufpreises zzgl. 20% USt.

Fakten

Objektnummer:
1758870
Objekttyp:
Haus
Wohnfläche:
174,52 m²
Nutzfläche:
399,14 m²
Gesamtfläche:
399,14 m²
Zimmer:
4
Baujahr:
2006
Neubau:
Ja
Zustand:
Gepflegt
Verfügbarkeit:
Verfügbar

Beschreibung

GROSSZÜGIGES UND HOCHWERTIGES EINFAMILIENHAUS MIT DURCHDACHTER RAUMAUFTEILUNG

Zum Verkauf steht ein stilvolles und attraktives Einfamilienhaus in der Königsteingasse 3 mit einer Gesamtfläche von  knapp 400m². (Haus und Freiflächen) Die Immobilie überzeugt durch eine klare, funktionale Grundrisslösung auf drei Ebenen (Keller, Erdgeschoss, 1. Stock) und eignet sich ideal für Familien oder Paare, die Wert auf niveauvolles und ruhiges Wohnen legen. Mit Terrasse und Garten.

Das Haus ist vollklimatisiert. Zusätzlich gibt es elektrische Rollläden, Markisen und eine Alarmanlage!

Die Liegenschaft befindet sich in einer ruhigen Wohnstraße mit überwiegender Einfamilienhausbebauung und bietet ein angenehmes, dauerhaft nutzbares Wohnumfeld. Die Lage ist Nahe der Alten Donau - Arbeiterstrandbadstrasse.

 

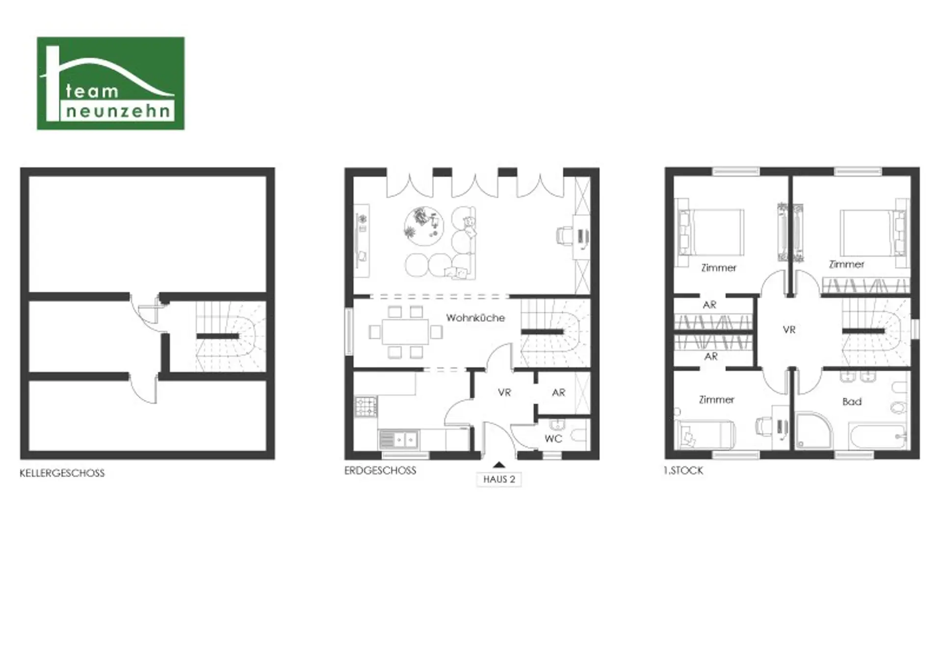
RAUMAUFTEILUNG

Kellergeschoss

*
Großzügiger Kellerbereich

*
Mehrere Räume mit flexibler Nutzungsmöglichkeit (Lager, Hobby, Technik)

*
Interne Verbindung über das Stiegenhaus

 

 

Erdgeschoss

*
Zentrales Vorzimmer

*
Offene Wohnküche mit Essbereich und direktem Übergang in den Wohnbereich

*
Heller Wohnraum

*
Separates WC

*
Abstellraum

*
Stiegenhaus mit Verbindung zu Keller und Obergeschoss

Das Erdgeschoss bildet den klar strukturierten Lebensmittelpunkt des Hauses.

 

1. Obergeschoss

*
3 Zimmer, davon:

*
1 Kinderzimmer

*
Weitere Zimmer geeignet als Schlaf-, Arbeits- oder Gästezimmer

*
Badezimmer mit Badewanne, Dusche und WC

*
Zentrales Vorraumkonzept

*
Zusätzliche Abstellräume (AR) für Stauraum

Die Trennung von Wohn- und Schlafbereich sorgt für Privatsphäre und eine angenehme Wohnstruktur.

 

Kaufpreis:

Der Kaufpreis beläuft sich auf 1.450.000 €.

Vertragserrichtung: 1,5% netto + UST + Barauslagen + Notar 

 

Nebenkosten:

Provision: 3% des Kaufpreises zzgl. 20% USt.

 

LAGE & UMGEBUNG

Die Königsteingasse liegt in einem ruhigen Wohngebiet mit geringem Verkehrsaufkommen.
Besonders hervorzuheben ist die Nähe zur Alten Donau und Donauinsel, die in kurzer Zeit erreichbar ist und vielfältige Freizeit- und Erholungsmöglichkeiten wie Spaziergänge, Radfahren und Sport bietet.

 

Für Fragen bzw. eine Besichtigung steht Ihnen Herr Mag. Christian Leikam sehr gerne unter 0664 88925351 und Leikam@teamneunzehn.at zur Verfügung.

Hinweis gemäß Energieausweisvorlagegesetz: Ein Energieausweis wurde vom Eigentümer bzw. Verkäufer, nach unserer Aufklärung über die generell geltende Vorlagepflicht, sowie Aufforderung zu seiner Erstellung noch nicht vorgelegt. Daher gilt zumindest eine dem Alter und der Art des Gebäudes entsprechende Gesamtenergieeffizienz als vereinbart. Wir übernehmen keinerlei Gewähr oder Haftung für die tatsächliche Energieeffizienz der angebotenen Immobilie.

Wir weisen darauf hin, dass zwischen dem Vermittler und dem zu vermittelnden Dritten ein familiäres oder wirtschaftliches Naheverhältnis besteht.

Der Vermittler ist als Doppelmakler tätig.

"Leben braucht Raum" * T19-RE Real Estate GmbH & Co KG * www.teamneunzehn.at [https://www.teamneunzehn.at]

Doppelmakler

Wir werden als Immobilienmakler kraft bestehenden Geschäftsgebrauchs als Doppelmakler tätig und haben sohin beide Seiten des Vertrages (Verkäufer-Käufer, Vermieter-Mieter) zu unterstützen.

Wirtschaftliches Naheverhältnis

Es wird bekannt gegeben, dass folgendes wirtschaftliches Naheverhältnis zwischen der teamneunzehn-Gruppe und dem Verkäufer/der vermietenden Partei besteht: ständige und dauerhafte Beauftragung mit der Vermittlung des bestehenden Immobilienportfolios

Haftungserklärung zum Inserat

Irrtum und Änderungen vorbehalten! Sofern es sich bei Bildern um Visualisierungen handelt, können Abänderungen zur tatsächlichen Ausführung resultieren. Wir weisen ausdrücklich darauf hin, dass das auf Fotos oder Visualisierungen ersichtliche Mobiliar bzw. Inventar nicht Bestandteil des inserierten Preises ist.

 

 

Infrastruktur / Entfernungen

Gesundheit
Arzt <775m
Apotheke <1.050m
Klinik <1.200m
Krankenhaus <1.975m

Kinder & Schulen
Schule <650m
Kindergarten <750m
Universität <1.075m
Höhere Schule <1.425m

Nahversorgung
Supermarkt <750m
Bäckerei <1.075m
Einkaufszentrum <1.500m

Sonstige
Geldautomat <1.100m
Bank <1.150m
Post <725m
Polizei <1.350m

Verkehr
Bus <125m
U-Bahn <850m
Straßenbahn <1.100m
Bahnhof <600m
Autobahnanschluss <700m

Angaben Entfernung Luftlinie / Quelle: OpenStreetMap
Beschreibung weiterlesen

Grundriss

Lageplan

1210 Wien | Wien 21., Floridsdorf

Lade...
Christian Leikam

Christian Leikam
Investment Consulting

teamneunzehn-Gruppe

Lade...

Fotomix

Bild 1 Bild 2 Bild 3 Bild 4 Bild 5 Bild 6 Bild 7 Bild 8 Bild 9 Bild 10 Bild 11 Bild 12 Bild 13 Bild 14