NEU - Südwest-Dachterrasse und Frühstücksbalkon | Ruhelage am Wilheminenberg | Tiefgaragenstellplatz | U3 Ottakring

Wohnung zur Miete in 1160 Wien - Gesamtmiete: 1.648,00 € / Objektnummer: 16868
Ausstattung: Boden Wohnküche / offene Küche Bad Gäste-WC Tiefgarage Parkplatz Fahrradraum Etagenheizung Balkon Terrasse

Preisinformationen

Gesamtmiete:
1.648,00 € / Monat
Betriebskosten netto:
251,38 € / Monat
Umsatzsteuer:
149,82 €
Kaution:
4.944,00 €
Provision:
Gemäß Erstauftraggeberprinzip bezahlt der Abgeber die Provision.

Fakten

Objektnummer:
16868
Objekttyp:
Wohnung
Balkon:
1
Terrasse:
1
Balkonfläche:
5,6 m²
Wohnfläche:
108 m²
Nutzfläche:
135,6 m²
Zimmer:
4
Badezimmer:
2
Toilette:
2
Baujahr:
1992
Verfügbarkeit:
Verfügbar

Beschreibung

Umgeben von viel Natur beginnt hier jeder Tag mit einem besonderen Moment: Genießen Sie die ersten Sonnenstrahlen auf Ihrem Frühstücksbalkon oder lassen Sie den Abend entspannt auf der großzügigen Dachterrasse ausklingen – Orte, die schnell zu ihren Lieblingsplätzen werden.

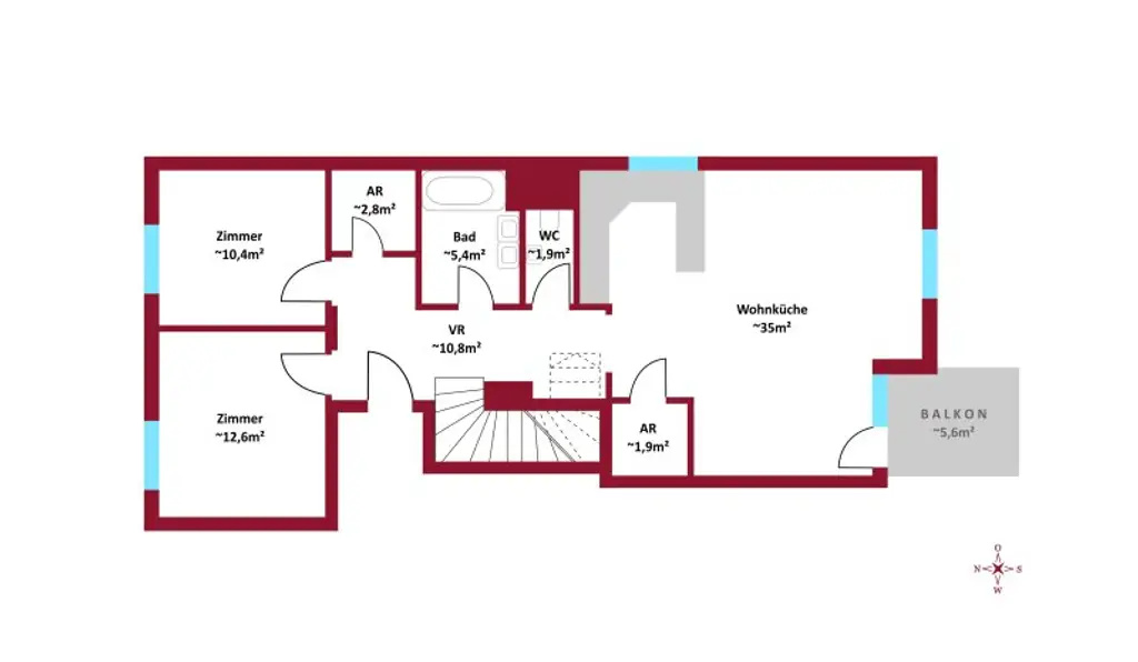
Diese Dachgeschosswohnung verfügt über drei Schlafzimmer sowie einem großen Wohn-Essbereich mit direktem Zugang zum südwestlich ausgerichteten Frühstücksbalkon mit herrlichen Fernblick. Hier wohnen Sie gut angebunden zur Wiener Innenstadt und gleichzeitig in einer begrünten Ruhelage. Zwei Badezimmer – eines mit Badewanne, eines mit Dusche und WC – sorgen für zusätzlichen Komfort.

Auf der zweiten Ebene eröffnet sich ein lichtdurchfluteter, loftartiger Raum, der sich flexibel als Arbeitsbereich oder exklusives Masterbedroom nutzen lässt. Das absolute Highlight ist die rund 22 m² große Dachterrasse – ein Ort, an dem Sie den Sommer in vollen Zügen genießen können.

Ebenso im Mietpreis inkludiert ist ein eigener KFZ-Abstellplatz in der hauseigenen Tiefgarage sowie ein Kellerabteil.

 

Wohnungsaufteilung/Infos:

* Vorzimmer
* offen Wohnküche: Einbauküche mit Geschirrspüler, Kühlschrank, Herd, etc.
* Badezimmer mit Waschbecken und Badewanne
* 2. Badezimmer mit Waschbecken und Dusche (in der 2. Etage)
* separates WC
* 3 Schlafzimmer 
* 2 Abstellräume
* Südwest-Balkon
* Südwest-Dachterrasse

 

Die Wohnung wird für 5 Jahre befristet vermietet, Verlängerung möglich.

Kostenübersicht:

Monatlich pauschalierte Miete: EUR 1.648,00 (inklusive USt., Betriebskosten und Verwaltung und Tiefgaragenstellplatz)

Mietvertragserrichtungskosten: EUR 360,00 (zzgl. 20% USt.)

Kaution: EUR 4.944,00 (3 BMM)

 

Gerne steht Ihnen Frau Bettina Holzinger für weitere Fragen bzw. flexibel gestaltbare Besichtigungstermine unter +43 664 3582426 zur Verfügung.  
www.ringsmuth-immobilien.at [http://www.ringsmuth-immobilien.at]

 

 

Hinweis gemäß Energieausweisvorlagegesetz: Ein Energieausweis wurde vom Eigentümer bzw. Verkäufer, nach unserer Aufklärung über die generell geltende Vorlagepflicht, sowie Aufforderung zu seiner Erstellung noch nicht vorgelegt. Daher gilt zumindest eine dem Alter und der Art des Gebäudes entsprechende Gesamtenergieeffizienz als vereinbart. Wir übernehmen keinerlei Gewähr oder Haftung für die tatsächliche Energieeffizienz der angebotenen Immobilie.

Der Immobilienmakler erklärt, dass er – entgegen dem in der Immobilienwirtschaft üblichen Geschäftsgebrauch des Doppelmaklers – einseitig nur für den Vermieter tätig ist.

Infrastruktur / Entfernungen

Gesundheit
Arzt <1.000m
Apotheke <1.000m
Klinik <1.500m
Krankenhaus <1.000m

Kinder & Schulen
Schule <1.000m
Kindergarten <1.000m
Universität <1.500m
Höhere Schule <2.500m

Nahversorgung
Supermarkt <1.000m
Bäckerei <1.000m
Einkaufszentrum <1.000m

Sonstige
Geldautomat <1.000m
Bank <1.000m
Post <1.000m
Polizei <1.000m

Verkehr
Bus <500m
U-Bahn <1.500m
Straßenbahn <1.000m
Bahnhof <1.500m
Autobahnanschluss <5.500m

Angaben Entfernung Luftlinie / Quelle: OpenStreetMap
Beschreibung weiterlesen

Lage und Verkehrsanbindung

Die Baumeistergasse liegt eher am Rand Richtung Hernals und Wilhelminenberg. Der Wilhelminenberg ist 15 min zu Fuß entfernt.

Rund um die Sandleitengasse / Ottakringer Straße findest du typische Ketten (Billa, Spar, Hofer) in ca. 5–10 Minuten zu Fuß
In der Baumeistergasse selbst ist ein INTERSPAR-Komplex mit Tiefgarage vorhanden

Öffentliche Anbindung:
46A Bus-Station Paulinensteig, ca. 400m entfernt
Straßenbahnlinie 2, Station Liebknechtgasse, ca. 600m entfernt
Straßenbahnlinie 43, Station Dornbach, ca. 1 km entfernt
nächste U-Bahn Station: U3 Ottakring

Grundrisse

Lageplan

1160 Wien | Wien 16., Ottakring

Lade...
Bettina Holzinger

Bettina Holzinger

Alexander Ringsmuth GmbH

Lade...

Fotomix

Terrasse Terrasse Frühstücksbalkon Schlafzimmer Wohnbereich Küche Wohnbereich 2. Etage Bad