NEU - TANBRUCKGASSE - ROLLINGERGASSE, 51 m2 Neubau, 2 Zimmer, Komplettküche, Wannenbad, Parketten, Bahnhof Meidling

Wohnung zur Miete in 1120 Wien - Gesamtmiete: 929,70 € / Objektnummer: 2357
Ausstattung: Barrierefrei Boden Fahrstuhl Wohnküche / offene Küche Bad Kabel/Satelliten-TV Fahrradraum Zentralheizung

Preisinformationen

Gesamtmiete:
929,70 € / Monat
Betriebskosten netto:
119,06 € / Monat
Umsatzsteuer:
84,52 €
Kaution:
2.790,00 €
Provision:
Gemäß Erstauftraggeberprinzip bezahlt der Abgeber die Provision.

Fakten

Objektnummer:
2357
Objekttyp:
Wohnung
Keller Fläche:
1,5 m²
Nutzfläche:
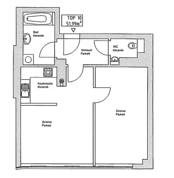
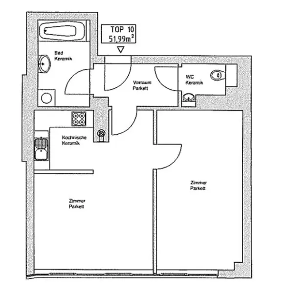
51,99 m²
Zimmer:
2
Badezimmer:
1
Toilette:
1
Stockwerk:
3
Neubau:
Ja
Zustand:
Gepflegt
Verfügbarkeit:
Verfügbar

Beschreibung

IN DER ROLLINGERGASSE - ECKE TANBRUCKGASSE GELANGT DIESE CA. 51,99 M2 NEUBAUWOHNUNG IM 3. LIFTSTOCK ZUR BEFRISTETEN VERMIETUNG

VORZIMMER, WOHNKÜCHE, SCHLAFZIMMER, BADEZIMMER, SEPARATES WC UND KELLERABTEIL

AUSSTATTUNG: 

+ KÜCHE MIT EINBAUGERÄTE
+ BAD MIT BADEWANNE, WASCHTISCH UND WASCHMASCHINENANSCHLUSS
+ SEPARATES WC MIT WASCHGELEGENHEIT
+ PARKETTEN, FLIESEN IN DEN NASSRÄUMEN
+ TELEKABELFERNSEHANSCHLUSS, GEGENSPRECHANLAGE
+ FERNWÄRMEHEIZUNG
+ KELLERABTEIL
+ FAHRRADABSTELLRAUM IM HAUS
+ HWB 54,76 KWH/M2A

LAGE

ROLLINGERGASSE ECKE TANBRUCKGASSE MIT BESTER INFRASTRUKTUR DES 12. BEZIRKS (MEIDLINGER HAUPTSTRASSE, RUCKERGASSE, TANBRUCKGASSE, EICHENSTRASSE, BAHNHOF MEIDLING) UND OPTIMALEN VERKEHRSVERBINDUNGEN, DER BAHNHOF MEIDLING MIT DER S-BAHN MEIDLING, DIE U6-STATION MEIDLING (PHILADELPHIABRÜCKE) SOWIE DIE LINIEN 62, WLB, 7A, 8A, 9A, 63A, N8 + N62 SIND IN UNMITTELBARER NÄHE

SONSTIGES

GESAMTMIETE € 929,70 INKLUSIVE BETRIEBSKOSTEN, AUFZUG, 10 % MWST.
HEIZUNG UND STROM WIRD SEPARAT ZUR VORSCHREIBUNG GEBRACHT.
 
KAUTION: € 2.790,00 PER ÜBERWEISUNG
AUF 5 JAHRE BEFRISTETE HAUPTMIETE, ABLÖSEFREI, SOFORTBEZUG MÖGLICH!
1 JAHR KÜNDIGUNGSVERZICHT, 3 MONATE KÜNDIGUNGSFRIST

ANBINDUNG ÖFFENTLICHER VERKEHR

DER BAHNHOF MEIDLING MIT DER S-BAHN MEIDLING, DIE U6-STATION MEIDLING (PHILADELPHIABRÜCKE) SOWIE DIE LINIEN 62, WLB, 7A, 8A, 9A, 63A, N8 + N62 SIND IN UNMITTELBARER NÄHE

Der Immobilienmakler erklärt, dass er – entgegen dem in der Immobilienwirtschaft üblichen Geschäftsgebrauch des Doppelmaklers – einseitig nur für den Vermieter tätig ist.

Infrastruktur / Entfernungen

Gesundheit
Arzt <250m
Apotheke <250m
Klinik <500m
Krankenhaus <1.250m

Kinder & Schulen
Schule <250m
Kindergarten <250m
Universität <1.000m
Höhere Schule <500m

Nahversorgung
Supermarkt <250m
Bäckerei <250m
Einkaufszentrum <250m

Sonstige
Geldautomat <250m
Bank <250m
Post <500m
Polizei <500m

Verkehr
Bus <250m
U-Bahn <250m
Straßenbahn <250m
Bahnhof <250m
Autobahnanschluss <2.250m

Angaben Entfernung Luftlinie / Quelle: OpenStreetMap
Beschreibung weiterlesen

Lage und Verkehrsanbindung

ROLLINGERGASSE ECKE TANBRUCKGASSE mit bester Infrastruktur des 12. Bezirks (Meidlinger Hauptstraße, Ruckergasse, Tanbruckgasse, Eichenstraße, Bahnhof Meidling) und optimalen Verkehrsverbindungen, der Bahnhof Meidling mit der S-Bahn Meidling, die U6-Station Meidling (Philadelphiabrücke) sowie die Linien 62, WLB, 7A, 8A, 9A, 63A, N8 + N62 sind in unmittelbarer Nähe

Meidlinger Hauptstraße, Ruckergasse, Rollingergasse, Eichenstraße, Bahnhof Meidling

Energieeffizienz

HWB:
54,76 kWh/(m²*a)
HWB Klasse:
C
fGEE:
1,07
fGEE Klasse:
C
Energieausweisart:
Energiebedarfs-ausweis

Grundriss

Lageplan

1120 Wien | Wien 12., Meidling

Lade...
Alexander Ros

Alexander Ros
Immobilienberater

ROS REALITÄTEN OG

Lade...

Fotomix

Bild 1 Bild 2 Bild 3 Bild 4 Bild 5 Bild 6 Bild 7 Bild 8 Bild 9 Bild 10 Bild 11 Bild 12 Bild 13 Bild 14 Bild 15 Bild 16 Bild 17 Bild 18 Bild 19 Bild 20 Bild 21 Bild 22