NEU - Terrassenhaussiedlung: Großzügige 4,5 Zimmer Garten - Wohnung mit 2 Terrassen in Graz St. Peter

Wohnung zum Kauf in 8042 Graz-St. Peter - Kaufpreis: 413.000 € / Objektnummer: O2100167675
Ausstattung: Barrierefrei Boden Wohnküche / offene Küche Bad Tiefgarage Parkplatz Fernwärme Terrasse Garten
TF Terrassenhaussiedlung - 3D - 1. Etage - Image
Garten 1
IMG_20260212_121558
IMG_20260212_121547
P2120224
P2120229
P2120226
P2120225
P2120223
P2120220
P2120221
P2120222
Badezimmer
GR 1
01 Atrium Terrasse 2
11
11 Spielgarten

Preisinformationen

Kaufpreis:
413.000 €
Betriebskosten netto:
303,00 € / Monat
Preisinfos:
Verhandlungsbasis
Provision:
3 BMM zzgl. 20% MwSt.

Fakten

Objektnummer:
O2100167675
Objekttyp:
Wohnung
Terrasse:
2
Keller Fläche:
8 m²
Wohnfläche:
129 m²
Grundstücksfläche:
65 m²
Lagerfläche:
8 m²
Gesamtfläche:
129 m²
Gartenfläche:
65 m²
Zimmer:
4
Badezimmer:
1
Toilette:
1
Baujahr:
1975
Neubau:
Ja
Letzte Sanierung:
laufend
Zustand:
Gepflegt
Verfügbarkeit:
Verfügbar

Beschreibung

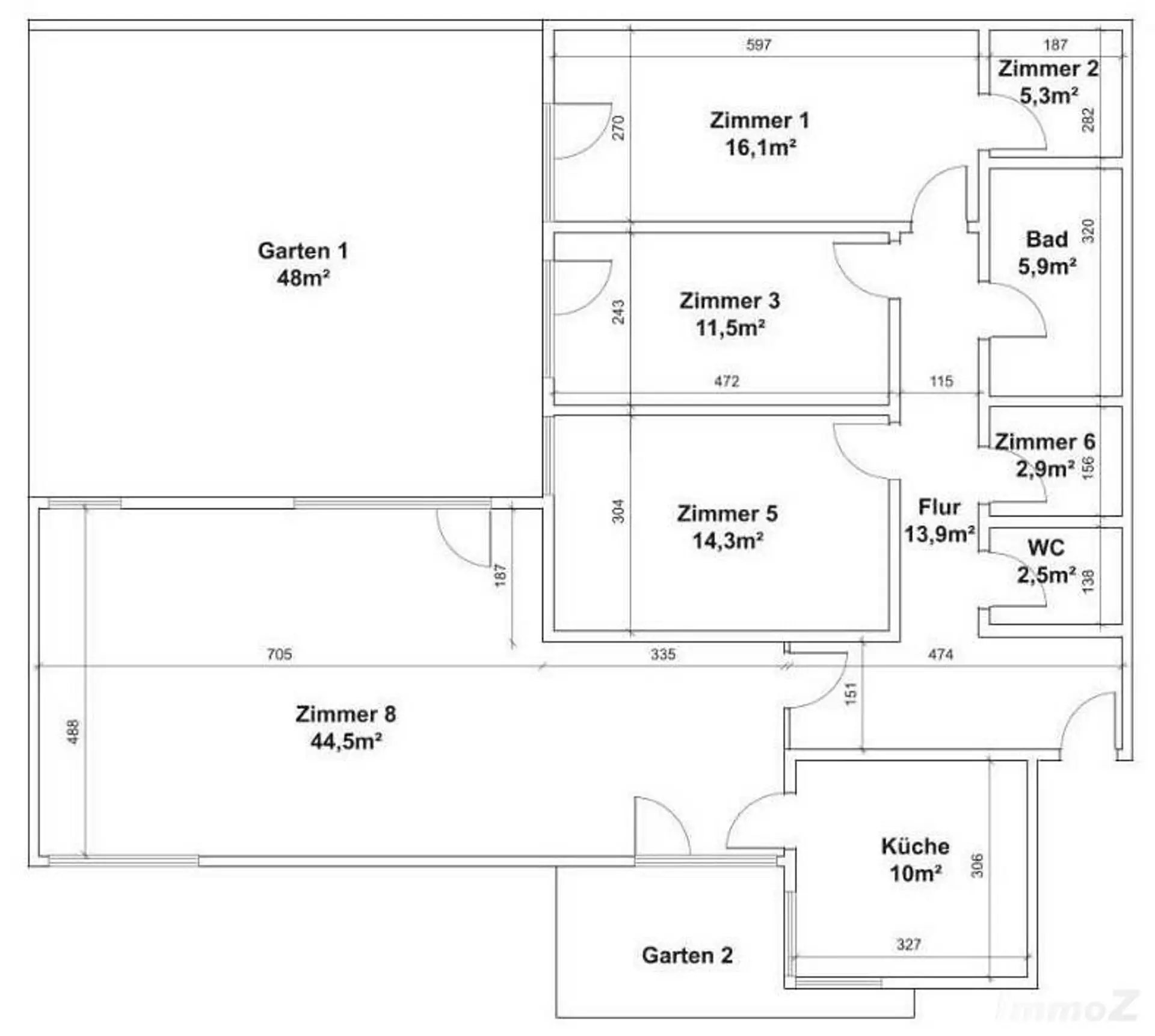
Barrierefreie, großzügige Erdgeschoss Wohnung mit 129m² Wohnfläche + Atrium Garten + 2 Terrassen mit 65m²

Zum zeitgemäßen Wohnen gehört auf alle Fälle die Möglichkeit, sich an lauschigen Abenden im Freien aufhalten zu können.
Die Wohnung überzeugt durch den großen Wohnraum mit den 2 Terrassen, die 3 Schlafzimmer plus Schrankraum!

Aufteilung:
Siehe schematischen Grundriss
+ Küche
+ Badezimmer mit Wanne und Dusche
+ WC abgetrennt
+ Wohnzimmer mit Ess Bereich 
 +Großzügigem uneinsehbarem Atrium-Garten  (über 45m2)
+ Garten 16m² 
+ Schlafzimmer mit
+ begehbarem Schrankraum
+ 2 Kinderzimmer
+ Abstellraum
+ Vorraum
+ Kellerabteil barrierefrei zu begehen
Garagenplatz optional

Lage:
Wohnhausanlage in der Terrassenhaussiedlung am Fuße des Messendorfberges und Petersbergenstraße in 8042 Graz.
Ausreichend Grünflächen in der näheren Umgebung vorhanden,.
Perfekte Infrastruktur: Nahversorger 0,1km, Bildungseinrichtungen 0,5km, Banken, Post, Apotheke, Ärzte 0,1km, Trafik, Tankstelle, Restaurant, Sport und Freizeit 0,1km, Cafe,  etc.etc.
Hinsichtlich der Infrastruktur lässt der Standort keine Wünsche offen:
Perfekte öffentlich Anbindung: Bus 0,1km, Straßenbahn 0,1km, S-Bahn 1,77km

Fordern Sie unseren ausführlichen Lage Bericht an:
Ab sofort zu besichtigen!
Mehr Infos, Details auf persönliche Anfrage!
Beschreibung weiterlesen

Lage und Verkehrsanbindung

TOP Lage, perfekte Infrastruktur
Fordern Sie unseren ausführlichen Lage Bericht an:
wanz@steindorff.at 06803005444

Energieeffizienz

Endenergiebedarf:
90,4 kWh/(m²*a)
HWB:
90,4 kWh/(m²*a)
HWB Klasse:
C
fGEE:
1,48
fGEE Klasse:
C
Energieausweisart:
Energiebedarfs-ausweis
Alexander Wanz

Alexander Wanz

Steindorff Immobilien GmbH

Lade...

Fotomix

TF Terrassenhaussiedlung - 3D - 1. Etage - Image Garten 1 IMG_20260212_121558 IMG_20260212_121547 P2120224 P2120229 P2120226 P2120225 P2120223 P2120220 P2120221 P2120222 Badezimmer GR 1 01 Atrium Terrasse 2 11 11 Spielgarten