NEU - Terrassenwohnung

Haus zur Miete in 1150 Wien - Gesamtmiete: 1.450,00 € / Objektnummer: 1649/4608
Ausstattung: Fahrstuhl Kabel/Satelliten-TV Terrasse
Haus
Küche
Wohnsalon
Terrasse
Zimmer
Bad
Vorraum
Esszimmer
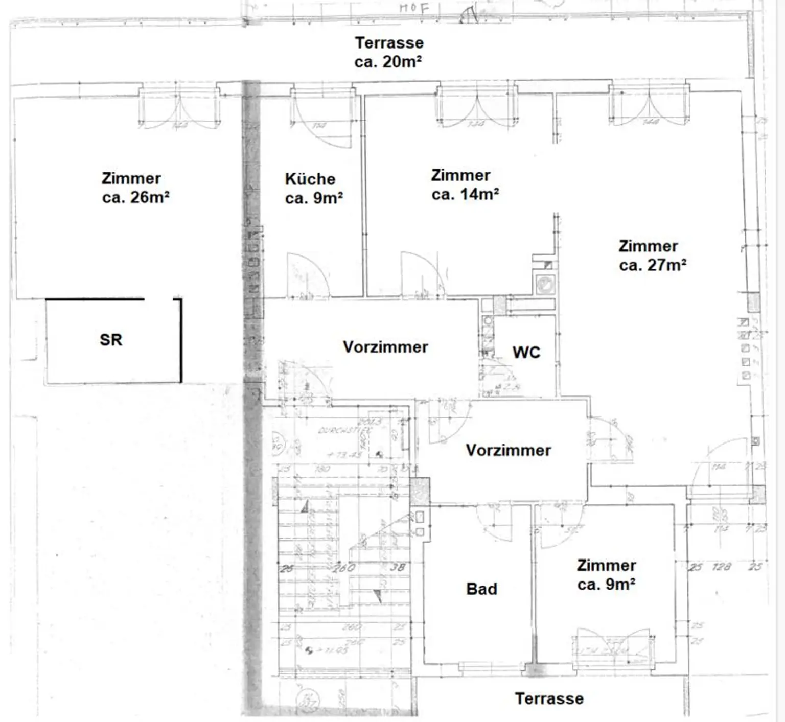
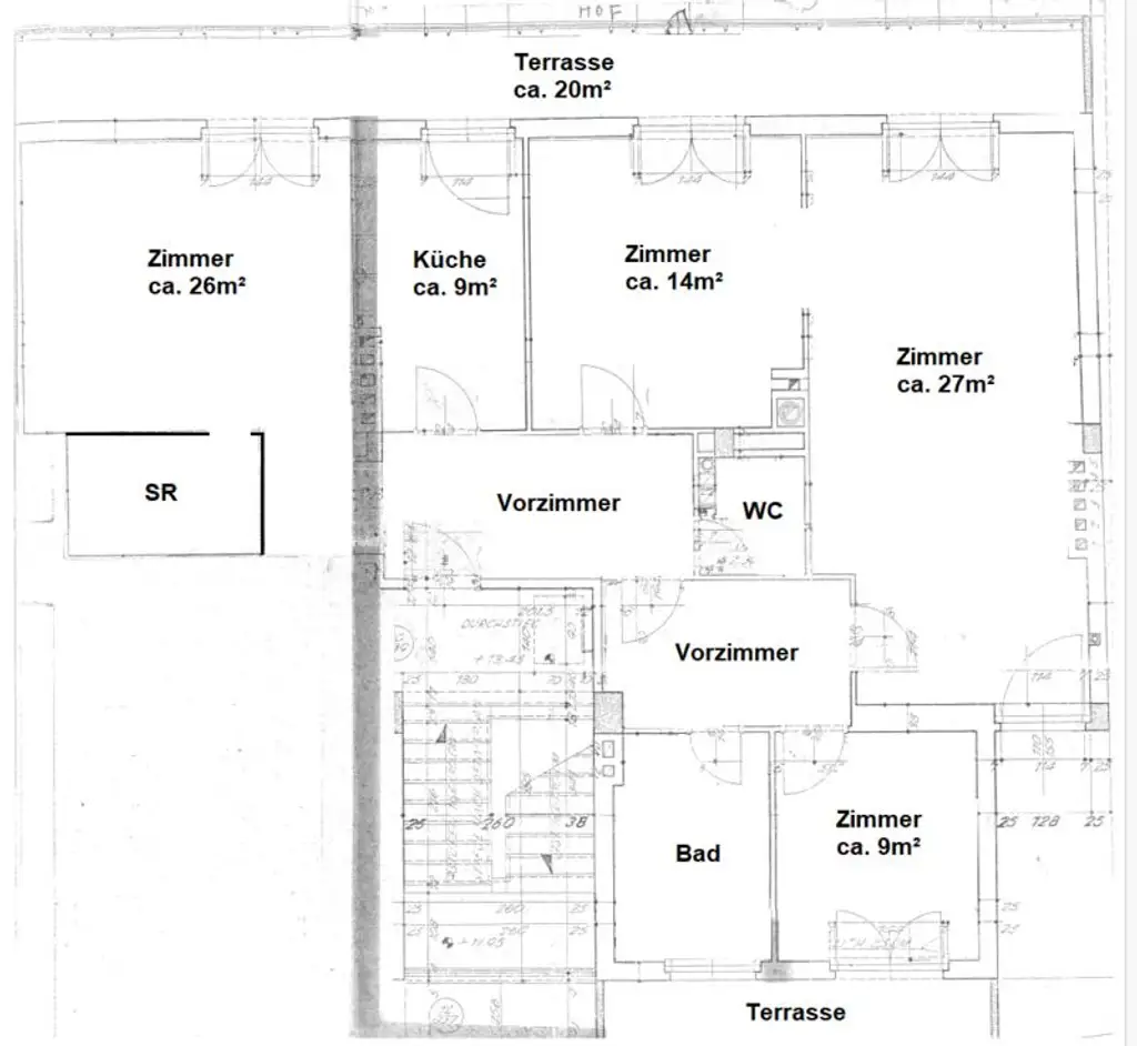
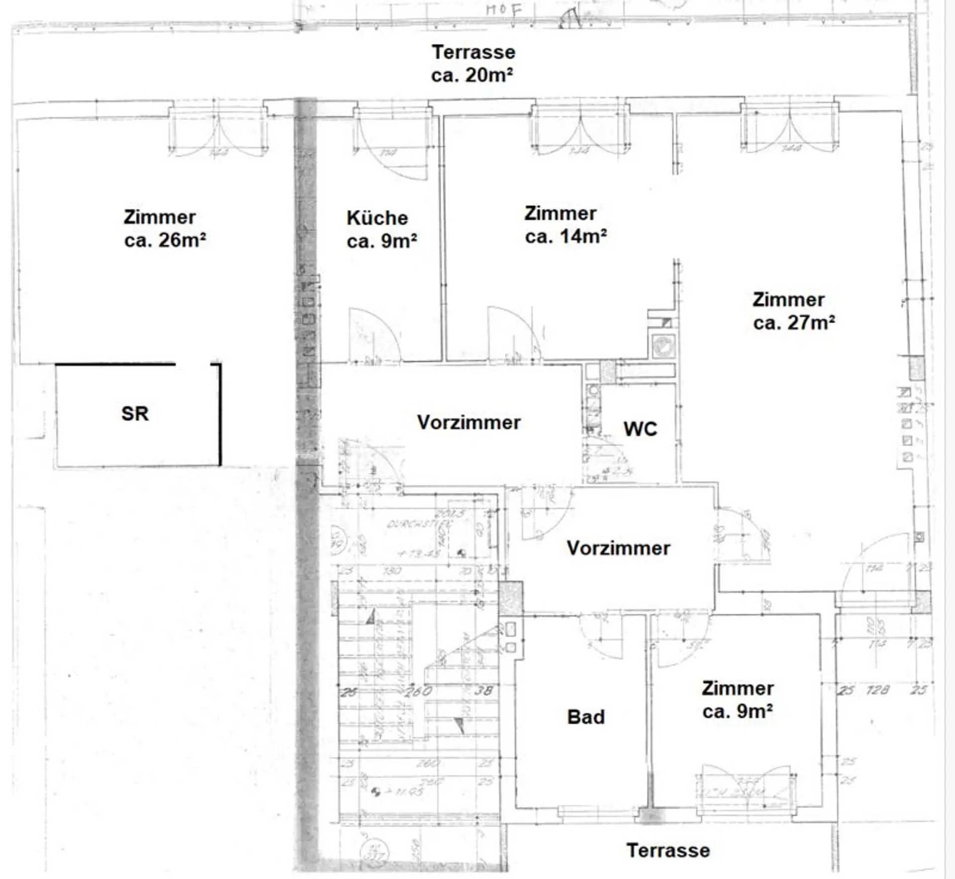
Grundriss

Preisinformationen

Gesamtmiete:
1.450,00 € / Monat
Nettomiete:
1.171,67 € / Monat
Betriebskosten netto:
253,03 € / Monat
Umsatzsteuer:
25,30 €
Kaution:
4.350,00 €
Provision:
provisionsfrei

Fakten

Objektnummer:
1649/4608
Objekttyp:
Haus
Terrasse:
2
Terrassenfläche:
25 m²
Keller Fläche:
3 m²
Wohnfläche:
107,73 m²
Nutzfläche:
132,73 m²
Gesamtfläche:
107,73 m²
Zimmer:
5
Schlafzimmer:
3
Badezimmer:
1
Toilette:
1
Baujahr:
1965
Verfügbarkeit:
Verfügbar

Beschreibung

Dachgeschoßwohnung in Schwendermarkt Nähe!

In einem gepflegten Neubau gelangt im Dachgeschoß eine großzügig angelegte 4  Zimmer - Wohnung mit separater Küche und zwei Terrassen zur befristeten Vermietung. 
Raumaufteilung:
Großer Vorraum, Küche mit Durchreiche zum Esszimmer, großes Wohzimmer ca. 28m², und zwei Schlafzimmer, Schrankraum
Ausstattung:
Einbauküche, Bad mit Wanne und Dusche, Waschmaschinenanschluss, Parketten in den Wohnräumen, Naßräume Fliesen
Infrastruktur:
Straßenbahn 52, 60, Autobus 12A, Dadlerpark, Einkaufsmöglichkeiten und Gastronomiebetriebe in unmittelbarer Umgebung
 

Beschreibung weiterlesen

Lage und Verkehrsanbindung

Schwendergasse, Dadlerpark

Energieeffizienz

Endenergiebedarf:
22,3 kWh/(m²*a)
HWB:
22,3 kWh/(m²*a)
HWB Klasse:
A
fGEE:
1,15
fGEE Klasse:
C
Energieausweisart:
Energiebedarfs-ausweis

Grundriss

Gerhard Wagner

Gerhard Wagner

Altenburg Realitäten GmbH & Co KG

Lade...

Fotomix

Haus Küche Wohnsalon Terrasse Zimmer Bad Vorraum Esszimmer