NEU - Terrassenwohnung mit Fernblick! Tiefgaragenplatz inklusive!

Wohnung zur Miete in 1150 Wien - Gesamtmiete: 1.774,01 € / Objektnummer: 71785
Ausstattung: Boden Fahrstuhl Wohnküche / offene Küche Bad Abstellraum Fußbodenheizung Terrasse
Visualisierung

Preisinformationen

Gesamtmiete:
1.774,01 € / Monat
Betriebskosten netto:
184,56 € / Monat
Umsatzsteuer:
154,46 €
Parkplatz Kosten brutto:
75,00 €
Kaution:
5.322,03 €
Provision:
Gemäß Erstauftraggeberprinzip bezahlt der Abgeber die Provision.

Fakten

Objektnummer:
71785
Objekttyp:
Wohnung
Terrasse:
1
Wohnfläche:
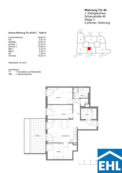
76,9 m²
Zimmer:
4
Badezimmer:
2
Toilette:
1
Baujahr:
2023
Neubau:
Ja
Zustand:
Gepflegt
Verfügbarkeit:
Verfügbar

Beschreibung

Terrassenwohnung mit Fernblick! Tiefgaragenplatz inklusive!

In unmittelbarer Nähe zur Schmelz, nur einen kurzen Spaziergang von der U3 entfernt und somit perfekt an die Innenstadt angebunden, erhebt sich unser bezauberndes Wohnbauprojekt „Wohnen auf der Schmelz“, welches durch seine gute Lage und den intelligenten Grundrissen eine Symbiose aus urbanem Leben und Wohnkomfort verspricht. Die unmittelbare Umgebung des Projekts ist von einer erstklassigen Infrastruktur geprägt. Sie bietet zahlreiche Geschäfte für den täglichen Bedarf, gastronomische Einrichtungen für kulinarische Genüsse sowie Parks und Grünanlagen, die Raum für Erholung und Entspannung bieten.

Die Wohnung selbst befindet sich im 1. Dachgeschoss und verfügt über eine großzügige Wohnküche mit vollausgestatteter Einbauküche und Zugang zur Terrasse, drei Schlafzimmer, ein Badezimmer mit Dusche, Waschmaschinenanschluss und WC, sowie einen Vorraum. Die dazugehörige Terrasse lädt zum gemütlichen Verweilen ein und rundet das Wohnerlebnis perfekt ab!

Es handelt sich um Musterfotos einer ähnlichen Wohnung im selben Projekt!

Ausstattung: 

* Fußbodenheizung über Fernwärme
* 3 Scheiben-Isolierverglasung; außenliegender Sonnenschutz mit Fernbedienung
* Großformatige Fliesen (30 x 60cm)
* Parkettboden Esche
* Sicherheitstüren
* Videosprechanlage
* Kinderwagen/ Fahrradabstellraum
* Gestaltung der Grün- und Freiflächen
* Spielplatz 

Öffentliche Verkehrsanbindung:

* Autobus: 10A, 12A,  
* Straßenbahnlinie: 10, 60
* U-Bahn: U3 Kendlerstraße, U3 Hütteldorfer Straße

Befristung: 5 Jahre, 1 Jahr Kündigungsverzicht, 3 Monate Kündigungsfrist

Strom, Heizung und Warm-/Wasser werden nach Verbrauch abgerechnet. 

Nebenkosten 
3 BMM Kaution, Vertragserrichtungsgebühr

Wir weisen darauf hin, dass zwischen dem Vermittler und dem zu vermittelnden Dritten ein familiäres oder wirtschaftliches Naheverhältnis besteht.

Der Immobilienmakler erklärt, dass er – entgegen dem in der Immobilienwirtschaft üblichen Geschäftsgebrauch des Doppelmaklers – einseitig nur für den Vermieter tätig ist.

Infrastruktur / Entfernungen

Gesundheit
Arzt <250m
Apotheke <500m
Klinik <1.000m
Krankenhaus <1.500m

Kinder & Schulen
Schule <250m
Kindergarten <500m
Universität <750m
Höhere Schule <750m

Nahversorgung
Supermarkt <250m
Bäckerei <500m
Einkaufszentrum <750m

Sonstige
Geldautomat <250m
Bank <250m
Post <250m
Polizei <1.000m

Verkehr
Bus <250m
U-Bahn <250m
Straßenbahn <500m
Bahnhof <500m
Autobahnanschluss <5.000m

Angaben Entfernung Luftlinie / Quelle: OpenStreetMap
Beschreibung weiterlesen

Lage und Verkehrsanbindung

Kendlerstraße

Energieeffizienz

HWB:
27,3 kWh/(m²*a)
HWB Klasse:
B
fGEE:
0,77
fGEE Klasse:
A
Energieausweisart:
Energiebedarfs-ausweis
Gültig bis:
18.11.2030

Dokumente

Grundriss

Lageplan

1150 Wien | Wien 15., Rudolfsheim-Fünfhaus

Lade...
Leo Idinger

Leo Idinger
Immobilienberater

EHL Wohnen GmbH

Lade...

Fotomix

Bild 1 Bild 2 Bild 3 Bild 4 Visualisierung