NEU - Terrassenwohnung Top 21 - Neubauprojekt "STADTHAUS D2" - Kirchdorf - Fertigstellung Sommer 26

Wohnung zum Kauf in 4560 Kirchdorf an der Krems - Kaufpreis: 295.480 € / Objektnummer: 186
Ausstattung: Boden Fahrstuhl Fußbodenheizung Loggia

Preisinformationen

Kaufpreis:
295.480 €
Kaufpreis/m²
4.509,77 €
Vermittlungsprovision:
Ja
Provision:
3% des Kaufpreises zzgl. 20% USt.

Fakten

Objektnummer:
186
Objekttyp:
Wohnung
Loggia:
1
Wohnfläche:
61,41 m²
Loggia Fläche:
9,4 m²
Zimmer:
2
Stockwerk:
3
Baujahr:
2026
Neubau:
Ja
Zustand:
Erstbezug
Verfügbarkeit:
Verfügbar

Beschreibung

STADTHAUS D2. Im schönen Zentrum von Kirchdorf an der Krems entsteht ein hochwertiges Neubauprojekt, das anspruchsvolles Wohnen mit einer zukunftssicheren Investition vereint. Die Wohnhausanlage umfasst 29 moderne Eigentumswohnungen, zwei attraktive Geschäftslokale und eine Tiefgarage und bietet sowohl für Eigennutzer als auch für Anleger eine einmalige Kaufgelegenheit. Gerade jetzt ist der Zeitpunkt ideal, um in dieses Projekt zu investieren, denn die aktuell fallenden Zinsen schaffen wieder attraktivere Finanzierungsmöglichkeiten. Die niedrigen Kreditkosten machen den Erwerb einer Immobilie wieder lukrativ und bieten langfristige finanzielle Sicherheit.

Darüber hinaus überzeugt die Lage von Kirchdorf an der Krems durch ihre exzellente Infrastruktur und eine steigende Nachfrage, was eine kontinuierliche Wertsteigerung der Immobilie erwarten lässt. Neubauten im Zentrum sind eine Rarität und machen dieses Wohnprojekt zu einer wertstabilen Investition, die über Jahrzehnte hinweg an Wert gewinnt. Die Eigentumswohnungen sind flexibel gestaltet und somit perfekt auf die Bedürfnisse unterschiedlicher Zielgruppen zugeschnitten – vom jungen Paar über Familien bis hin zu Kapitalanlegern, die von der nachhaltigen Vermietbarkeit in einer gefragten Wohngegend profitieren.

Zusätzlich setzt das Projekt auf höchste Bauqualität und Energieeffizienz, was die Betriebskosten niedrig hält und einen weiteren Anreiz für künftige Mieter und Käufer darstellt. Die zwei Geschäftslokale im Erdgeschoss beleben das Wohnumfeld und unterstützen die langfristige Wertentwicklung der Immobilie. Kirchdorf an der Krems bietet mit seiner naturnahen Umgebung und der hohen Lebensqualität zugleich eine Vielzahl an Freizeitmöglichkeiten und einen ruhigen Lebensstil, ohne auf die Nähe zu wichtigen wirtschaftlichen und kulturellen Zentren verzichten zu müssen.

Nutzen Sie die jetzt wieder günstige Zinssituation und sichern Sie sich eine wertstabile Immobilie in einer gefragten Region. Dieses Neubauprojekt in Kirchdorf an der Krems ist nicht nur eine sichere Investition in die Zukunft, sondern bietet auch direkt spürbaren Mehrwert – sowohl für Eigennutzer als auch für Anleger.

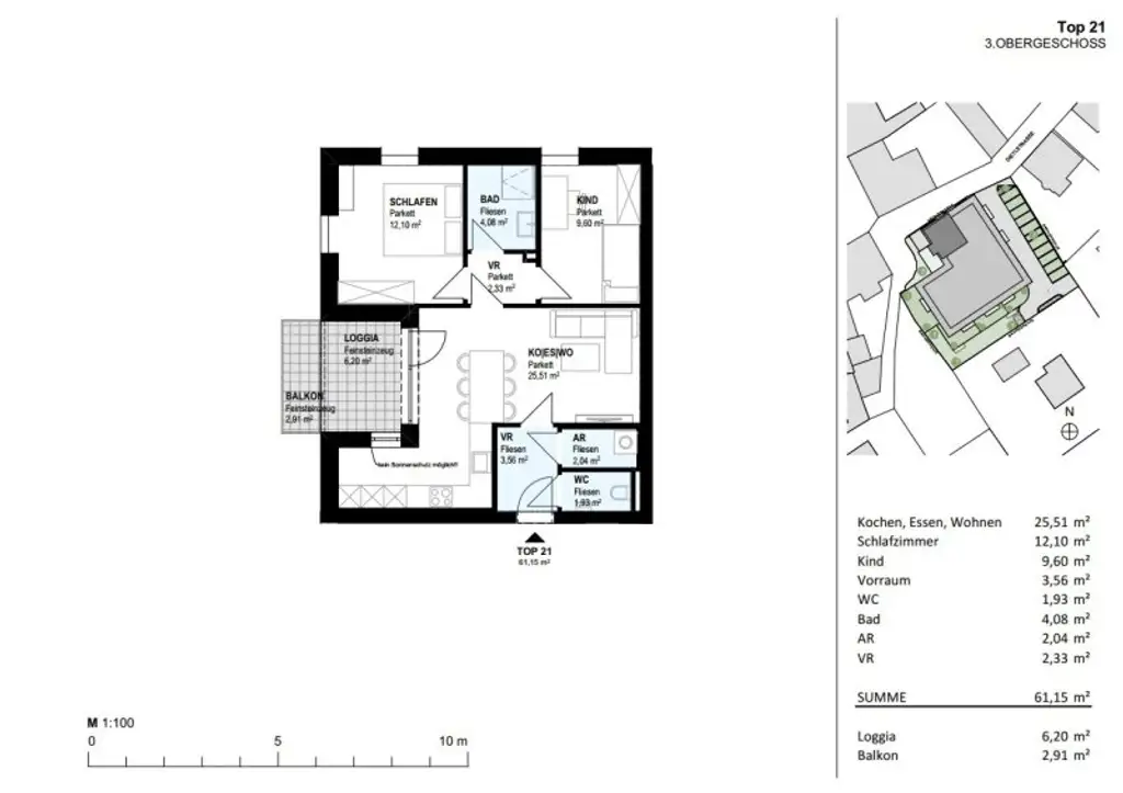
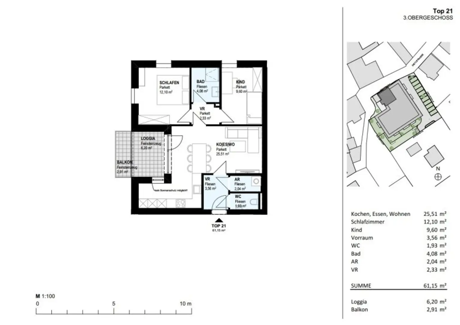
Terrassenwohnung Top 21 / 3. Obergeschoss (3.OG)
Wohnfläche: ca. 61,41 m²
Zimmer: 2
Loggia/Terrasse: ca. 9,40 m²
1 Kellerabteil

Wohnung Top 21  € 295.480,00
1 Garagenstellplatz   € 24.990,-
Gesamtkaufpreis   € 320.470,00

Der Erwerb des Garagenstellplatzes ist verpflichtend.

 

 

Interesse? Für einen unverbindliches erstes Telefonat, einen Besichtigungstermin Vorort oder einem persönlichen Beratungsgespräch in unserem Büro in Wels stehen wir gerne zu Verfügung.
Einfach anrufen, wir freuen uns auf Sie!

Ihr SPERER Immobilien Team 
Stefan Pichler | 0676 4630535 | s.pichler@sperer-group.com

 

Wir weisen darauf hin, dass zwischen dem Vermittler und dem zu vermittelnden Dritten ein familiäres oder wirtschaftliches Naheverhältnis besteht.

Der Vermittler ist als Doppelmakler tätig.

Infrastruktur / Entfernungen

Gesundheit
Arzt <500m
Apotheke <500m
Klinik <500m
Krankenhaus <1.000m

Kinder & Schulen
Schule <500m
Kindergarten <4.000m

Nahversorgung
Supermarkt <500m
Bäckerei <500m

Sonstige
Bank <500m
Geldautomat <500m
Post <500m
Polizei <500m

Verkehr
Bus <500m
Autobahnanschluss <3.500m
Bahnhof <1.000m
Flughafen <4.000m

Angaben Entfernung Luftlinie / Quelle: OpenStreetMap
Beschreibung weiterlesen

Lage und Verkehrsanbindung

Hauptplatz

Energieeffizienz

HWB:
28,9 kWh/(m²*a)
HWB Klasse:
B
fGEE:
0,69
fGEE Klasse:
A+
Energieausweisart:
Energiebedarfs-ausweis
Gültig bis:
06.04.2031

Dokumente

Lageplan

4560 Kirchdorf an der Krems | Kirchdorf an der Krems

Lade...
Stefan Pichler

Stefan Pichler
Projektleitung | Verkauf

SPERER Immobilien GmbH

Lade...

Fotomix

Bild 1 Bild 2 Bild 3 Bild 4 Bild 5 Bild 6 Bild 7 Bild 8 Bild 9 Bild 10 Bild 11 Bild 12 Bild 13 Bild 14 Bild 15 Bild 16 Bild 17 Bild 18 Bild 19