NEU - Tiefgaragenplätze nähe Bulgariplatz - Richard-Wagner-Straße - zu vermieten (€ 90,-)

Parken zur Miete in 4020 Linz - Gesamtmiete: 90,00 € / Objektnummer: 10894
Ausstattung: Tiefgarage Parkplatz

Preisinformationen

Gesamtmiete:
90,00 € / Monat
Betriebskosten netto:
11,00 € / Monat
Umsatzsteuer:
15,00 €
Preisinfos:
Einmalige Bearbeitungsgebühr brutto € 240,–, einmalige Finanzamtvergebührung ca. € 32,40,–
Kaution:
Schlüssel: € 75 Fernbedienung: € 150

Fakten

Objektnummer:
10894
Objekttyp:
Parken
Stockwerk:
-1
Baujahr:
2014
Neubau:
Ja
Zustand:
Neuwertig
Verfügbarkeit:
Verfügbar

Beschreibung

2 freie Tiefgaragenabstellplätze in einem schönen Wohnhaus in sehr zentraler Lage zu vermieten.
Das Objekt befindet in der Nähe des Bulgariplatzes/Gürtelstraße

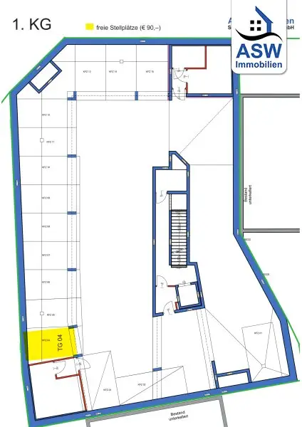
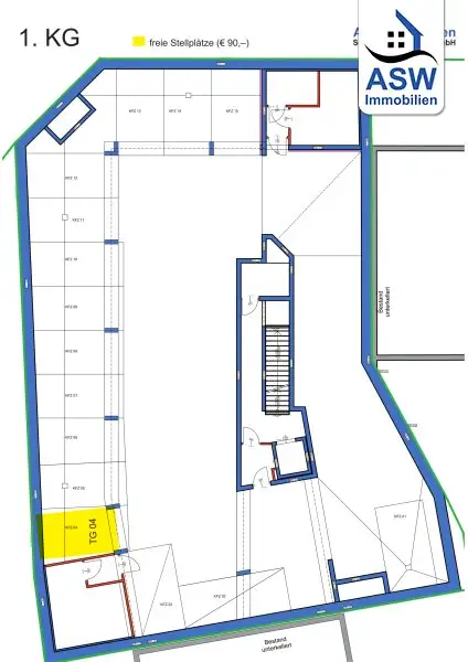
Freie Stellplätze (siehe auch TG-Plan):
1. KG: TG 04
2. KG: TG 28 

Kosten:
Gesamtmiete: € 90,-
Kaution: für Schlüssel (je € 75,-) und/oder Fernbedienung (je € 150,-)
Bearbeitungsgebühr: 240,- einmalig (brutto)
Finanzamtvergebührung: ca. € 32,40 einmalig

Nach Ablauf der 6 monatigen Kündigungssperre besteht eine gegenseitige Kündigungsmöglichkeit mit einer Frist von 2 Monaten.

Lassen auch Sie sich von diesem tollen Angebot überzeugen und vereinbaren Sie einen unverbindlichen Beratungs- und Besichtigungstermin per E-Mail unter e.reichart@aswimmo.at

Infrastruktur / Entfernungen

Gesundheit
Arzt <500m
Apotheke <500m
Krankenhaus <1.000m
Klinik <750m

Kinder & Schulen
Kindergarten <250m
Schule <500m
Universität <1.750m
Höhere Schule <2.000m

Nahversorgung
Supermarkt <250m
Bäckerei <250m
Einkaufszentrum <1.500m

Sonstige
Bank <500m
Geldautomat <500m
Post <750m
Polizei <750m

Verkehr
Bus <500m
Straßenbahn <500m
Bahnhof <500m
Autobahnanschluss <750m
Flughafen <2.750m

Angaben Entfernung Luftlinie / Quelle: OpenStreetMap
Beschreibung weiterlesen

Lage und Verkehrsanbindung

nähe Bulgariplatz, Gürtelstraße

Nähe Bulgariplatz, Gürtelstraße

Energieeffizienz

HWB:
23,39 kWh/(m²*a)
HWB Klasse:
A
fGEE:
0,81
fGEE Klasse:
A
Energieausweisart:
Energiebedarfs-ausweis
Gültig bis:
08.08.2023

Grundrisse

Lageplan

4020 Linz | Linz (Stadt)

Lade...
Elisa Reichart

Elisa Reichart
Marketing & Grafik

ASW Immobilien Service & Consulting GmbH

Lade...

Fotomix

Bild 1 Bild 2 Bild 3 Bild 4 Bild 5