NEU - Tiefgaragenstellplatz (Kein Stapelparker) ab sofort zu mieten

Parken zur Miete in 1030 Wien - Gesamtmiete: 120,00 € / Objektnummer: 19178
Ausstattung: Barrierefrei Garage Tiefgarage Parkplatz

Preisinformationen

Gesamtmiete:
120,00 € / Monat
Betriebskosten netto:
24,76 € / Monat
Kaution:
3 Bruttomonatsmieten
Vermittlungsprovision:
Ja
Provision:
2 Bruttomonatsmieten zzgl. 20% USt.

Fakten

Objektnummer:
19178
Objekttyp:
Parken
Stockwerk:
-2
Baujahr:
2014
Neubau:
Ja
Zustand:
Neuwertig
Verfügbarkeit:
Verfügbar

Beschreibung

+ + + Tiefgaragenplatz  in der Erdbergstraße 160, 1030 Wien ab 01.01.2026 zu vermieten + + + 

 

Ein großer Vorteil ist die Nutzung für Berufspendler da die U3 Station Schlachthausgasse im selben Häuserblock befindet. Die Straßenbahnstation 18 und Buslinien 77A und 80 A befinden sich ebenfalls direkt vor der Haustüre.

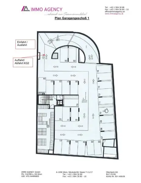
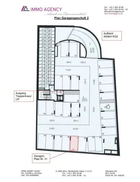
Der Garagenplatz befinden sich im 2. Kellergeschoß.  Es handelt sich um eine sehr gut befahrbare, gut ausgeleuchtete Garage mit breiter Einfahrt. 

Die Garage ist groß genug und hoch genug um mit den meisten Fahrzeugen befahren zu werden. Auch SUVs oder Limousinen finden Platz. Der Mietvertrag kann  längerfristig abgeschlossen werden und kann nach dem ersten Jahr jederzeit gekündigt werden.

 

Nebenkosten bei Anmietung:

* Vermittlungshonorar: € 278,09  inkl. 20% USt.
* Finanzamtsgebühr: € 43,20
* Kaution (für Kaution und Handsender): € 360 Euro

 

Sie haben Interesse an diesem Stellplatz? Ich freue mich auf Ihre Anfrage und stehe ab sofort für eine Terminvereinbarung oder für weitere Fragen zur Verfügung.
Beschreibung weiterlesen

Lage und Verkehrsanbindung

Prater-Stadionallee, TownTown

Grundrisse

Lageplan

1030 Wien | Wien 3., Landstraße

Lade...
Daniel Egger

Daniel Egger
KAUF/MIETE - Wohnimmobilien in Wien und Umgebung

IMMO AGENCY GmbH

Anrufen
Lade...

Fotomix

Bild 1 Bild 2 Bild 3 Bild 4 Bild 5