NEU - Toll aufgeteilte 2-Zimmer-Wohnung im Dachgeschoss inkl. Terrasse!

Wohnung zum Kauf in 1100 Wien - Kaufpreis: 269.000 € / Objektnummer: 247/21981
Ausstattung: Fahrstuhl Abstellraum Fernwärme Terrasse
Wohnraum I
Wohnraum II
Wohnraum III
Schlafzimmer
Küche
Essbereich
Badezimmer
Freifläche I
Freifläche II
Vorraum
Hausansicht
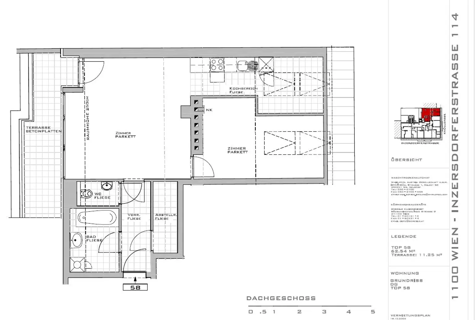
Plan
Lageplan

Preisinformationen

Kaufpreis:
269.000 €
Kaufpreis/m²
4.269,84 €
Betriebskosten netto:
172,61 € / Monat
Preisinfos:
GrESt 3,5% + Grundbucheintragung 1,1% des Gesamtkaufpreises / Vertragserrichtung 1,5% + Barauslagen, Beglaubigungs-, ggf. Treuhandkosten bei Finanzierung +USt. (WeiKes RA) / WE-Begründungsbeitrag € 500 +USt. / Provisio…
Vermittlungsprovision:
Ja
Provision:
3%

Fakten

Objektnummer:
247/21981
Objekttyp:
Wohnung
Terrasse:
1
Wohnfläche:
63 m²
Zimmer:
2
Badezimmer:
1
Toilette:
1
Baujahr:
1900
Verfügbarkeit:
Verfügbar

Beschreibung

Sichern Sie sich diese super geschnittene 2-Zimmer-Wohnung in Favoriten - nahe dem Wienerberg. Die ca. 63 m² große Wohnung befindet sich im ausgebauten Dachgeschoss eines stilvoll sanierten Altbaus und überzeugt neben ihrer funktionalen sowie lichtdurchfluteten Raumaufteilung durch ihre Top-Lage. Die Details: - Wohnungseigentumsobjekt - Vorraum, Badezimmer, WC, Zimmer, Wohnraum, Küche, Abstellraum - Fernwärmeheizung - Aufzug vorhanden - Freier Mietzins Die Lage: - Martin Luther King Park um die Ecke - unweit zum Wienerberg - Zahlreiche Cafés und Einkaufsmöglichkeiten Der Kaufpreis für diese Eigentumswohnung mit hervorragender Infrastruktur beträgt Euro 269.000. Tipp: Die gesamte Anlage wird gerade parifiziert und abverkauft. Fragen Sie uns nach weiteren Objekten bzw. Paketangeboten! Wir möchten darauf hinweisen, dass unsere Antwort möglicherweise in Ihrem Spamordner landen könnte. Bitte kontrollieren Sie diesen, wenn Sie keine Rückmeldung auf Ihre Anfrage erhalten haben.
Beschreibung weiterlesen

Energieeffizienz

HWB:
95 kWh/(m²*a)
HWB Klasse:
C
fGEE:
1,41
fGEE Klasse:
C

Grundrisse

Sebastian Auer

Sebastian Auer

IMV Immobilienmakler

Lade...

Fotomix

Wohnraum I Wohnraum II Wohnraum III Schlafzimmer Küche Essbereich Badezimmer Freifläche I Freifläche II Vorraum Hausansicht