NEU - TOLL aufgeteilte, sehr helle und moderne WOHNUNG in LIEBENAU! Mit geräumigen BALKON zum ENTSPANNEN! Ab April zu mieten!!

Wohnung zur Miete in 8041 Graz-Liebenau - Gesamtmiete: 965,27 € / Objektnummer: 294821
Ausstattung: Barrierefrei Rollstuhlgerecht Boden Fahrstuhl Wohnküche / offene Küche Bad Möbliert Kabel/Satelliten-TV Tiefgarage Parkplatz Außenparkplatz Abstellraum Fußbodenheizung Balkon

Preisinformationen

Gesamtmiete:
965,27 € / Monat
Betriebskosten netto:
177,52 € / Monat
Umsatzsteuer:
87,75 €
Preisinfos:
MIETE ist exklusive Heizung und Strom
Kaution:
3.100,00 €
Provision:
Gemäß Erstauftraggeberprinzip bezahlt der Abgeber die Provision.

Fakten

Objektnummer:
294821
Objekttyp:
Wohnung
Balkon:
1
Balkonfläche:
11,31 m²
Keller Fläche:
4 m²
Wohnfläche:
66,24 m²
Zimmer:
3
Badezimmer:
1
Toilette:
1
Stockwerk:
1
Neubau:
Ja
Zustand:
Neuwertig
Verfügbarkeit:
Verfügbar

Beschreibung

TOLL AUFGETEILTE, SEHR HELLE UND MODERNE WOHNUNG IN LIEBENAU! MIT GERÄUMIGEN BALKON ZUM ENTSPANNEN! AB APRIL ZU MIETEN!!

Provisionsfrei! Perfekt aufgeteilte 3-Zimmer-Wohnung in toller LAGE!

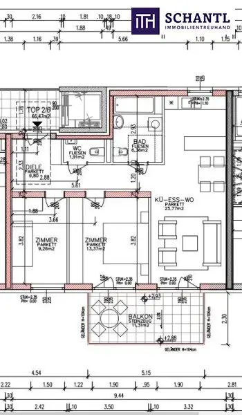
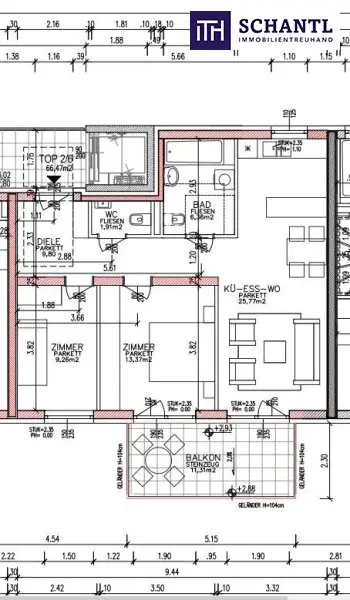
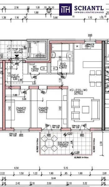
Top 6 am Esserweg 8a, 1.OG, 8041 Graz:

Zur Vermietung steht eine wunderschöne, helle 3-Zimmer-Wohnung in einem gepflegten Neubau in Graz Liebenau.
Wohnung wird leer, ohne Möbel übergeben! Frühester Übergabetermin April 2026!

Raumaufteilung: Vorraum, Bad mit Badewanne und WC, zentraler Wohn-Essbereich mit offener Küche, zwei Schlafzimmer, überdachter Balkon

 

HIGHLIGHTS:

* überdachter Balkon11,31m² mit S-Ausrichtung
* die Wohnung ist hell und lichtdurchflutet
* vollausgestattete Küche inklusive Geschirrspüler und großem Kühlschrank
* Wohn/Ess/Bereich mit 25,77m²
* ein Schlafzimmer mit 13,37m²
* ein weiteres Schlafzimmer mit 9,26m²
* ein Badezimmer mit 6,36m², Badewanne und WM-Anschluss
* WC separat 1,91m²
* Diele 9,80m²
* Lift
* Top Lage & Infrastruktur
* Nahversorger in 2 Minuten erreichbar 
* außenliegender Sonnenschutz - Raffstores
* Haustiere erlaubt!

FACTS / KOSTEN

* Nutzfläche: 66,24m²
* Kaution € 3.100,00
* TG Parkplatz anmietbar um brutto € 81,00/ Monat und einer Kaution von € 243,00
* Parkplatz im Freien anmietbar um brutto € 45,00/Monat und einer Kaution von € 140,00
* Heizung aktuell ca. €140/Monat
 

Gesamtmiete brutto: ca. € 965,28/Monat
(exklusive Heizung, Strom und Parken)

Bonitätskriterien:

* laufendes Dienstverhältnis seit über 3 Monaten
* Miete darf max. 40% des Haushaltseinkommens betragen

 

 

Worauf noch warten?

Vereinbaren Sie noch heute eine Besichtigung oder eine persönliche Beratung mit uns!

 

Sie wollen Ihre Immobilie verkaufen oder vermieten? Dann sind Sie bei uns goldrichtig! Wir sind gerne für Sie da und unterstützen Sie unverbindlich bei der Bewertung Ihrer Immobilie. Mit viel Sorgfalt stellen wir Ihnen alle wichtigen Informationen und Unterlagen zusammen, damit Sie die besten Entscheidungen treffen können.

In Kooperation mit unserer SFI Vermögenstreuhand begleiten wir Sie bei der Verwirklichung Ihres Traumobjekts und unterstützen Sie beim nachhaltigen Vermögensaufbau. Mit unseren erfahrenen Experten sorgen wir dafür, dass Sie die besten Konditionen erhalten – damit Ihre Träume Wirklichkeit werden!

www.schantl-ith.at [https://www.schantl-ith.at/] in Kooperation mit www.sfi-invest.com [https://www.sfi-invest.com/]

 

_Die Angaben über das angebotene Objekt erfolgen mit der Sorgfalt eines ordentlichen Immobilienmaklers; für die Richtigkeit solcher Angaben, die auf Informationen der über das Objekt Verfügungsberechtigten beruhen, wird keine Gewähr geleistet!_

 

Wir weisen darauf hin, dass zwischen dem Vermittler und dem zu vermittelnden Dritten ein familiäres oder wirtschaftliches Naheverhältnis besteht.

Der Immobilienmakler erklärt, dass er – entgegen dem in der Immobilienwirtschaft üblichen Geschäftsgebrauch des Doppelmaklers – einseitig nur für den Vermieter tätig ist.

Infrastruktur / Entfernungen

Gesundheit
Arzt <500m
Apotheke <250m
Klinik <4.500m
Krankenhaus <3.750m

Kinder & Schulen
Schule <250m
Kindergarten <500m
Universität <3.000m
Höhere Schule <4.000m

Nahversorgung
Supermarkt <500m
Bäckerei <750m
Einkaufszentrum <1.000m

Sonstige
Geldautomat <1.000m
Bank <250m
Post <1.000m
Polizei <1.250m

Verkehr
Bus <250m
Straßenbahn <1.000m
Autobahnanschluss <1.000m
Bahnhof <1.000m
Flughafen <5.500m

Angaben Entfernung Luftlinie / Quelle: OpenStreetMap
Beschreibung weiterlesen

Lage und Verkehrsanbindung

Die Lage dieser Immobilie ist wirklich sehr schön, die Wohnung liegt in einer kleinen Seitengasse und bietet viel Grün rundherum. Gegenüber der Gärtnerei Edler, Die Infrastruktur ist auf alle Fälle top, vom Lidl, bis zum Hofer und dem nahe gelegenen Murpark mit dem Interspar ist alles vertreten. Die Autobahnzubringer in alle Richtungen ist ebenfalls in Kürze zu erreichen. Busverbindungen, Schulen und Gastro-Betriebe ganz in Ihrer Nähe gelegen.

Murpark

Energieeffizienz

HWB:
46 kWh/(m²*a)
HWB Klasse:
B
fGEE:
0,9
fGEE Klasse:
A
Energieausweisart:
Energiebedarfs-ausweis

Dokumente

Grundrisse

Lageplan

8041 Graz-Liebenau | Graz (Stadt)

Lade...
Ursula Seiwald

Ursula Seiwald
Projektmanagement und Immobilienvermittlung

Schantl ITH Immobilientreuhand GmbH

Lade...

Fotomix

Bild 1 Bild 2 Bild 3 Bild 4 Bild 5 Bild 6 Bild 7 Bild 8 Bild 9 Bild 10 Bild 11 Bild 12 Bild 13 Bild 14 Bild 15 Bild 16 Bild 17 Bild 18 Bild 19 Bild 20 Bild 21 Bild 22 Bild 23 Bild 24