NEU - Toll geschnittene 5 Zimmerwohnung über ein ganzes Stockwerk

Wohnung zum Kauf in 1160 Wien - Kaufpreis: 565.260 € / Objektnummer: 268
Ausstattung: Barrierefrei Fahrstuhl Bad Etagenheizung

Preisinformationen

Kaufpreis:
565.260 €

Fakten

Objektnummer:
268
Objekttyp:
Wohnung
Wohnfläche:
122,78 m²
Zimmer:
8
Badezimmer:
2
Toilette:
2
Baujahr:
1900
Altbau:
Ja
Verfügbarkeit:
Verfügbar

Beschreibung

Ganzes Stockwerk kann zu Ihrer Traumimmobilie umfunktioniert werden

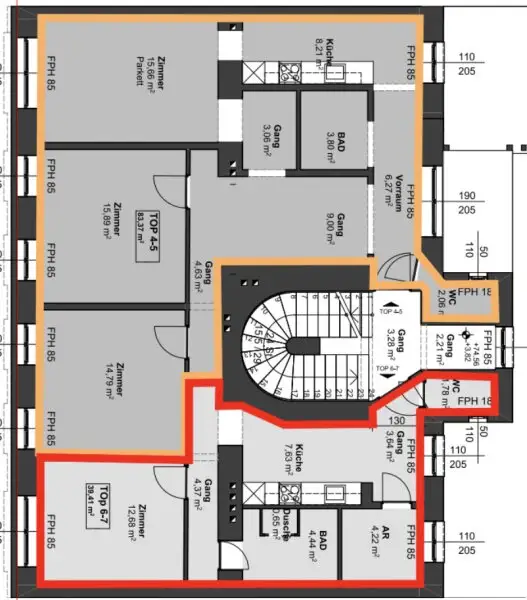
Diese charmante 5 -Zimmer-Wohnung bietet auf 122,78 m² ausreichend Platz für große Familien aber auch Paare die gerne viel Raum haben um sich zu entfalten. Homeoffice, Work-Out Zimmer oder ein Ruheraum zum Lesen. Hier bleiben keine Wünsche offen. Die durchdachte Raumaufteilung sorgt für eine optimale Nutzung des vorhandenen Platzes.

Der Grundriss kann natürlich noch individuell- nach den statischen Vorgaben, gestaltet werden.

Die beiden Küchen sind funktional und laden dazu ein, kulinarische Köstlichkeiten zu kreieren. Jedes Badezimmer verfügt über eine Dusche und ein Waschbecken. 

Weiters wird 2026 ein Lift eingebaut und für 25.500€ ein 10m² und ein 7m2 Balkon errichtet. Aufgrund einer Beherbergungswidmung kann das Objekt auch für die Kurzzeitvermietung genutzt werden.

Die Wohnung befindet sich in einer zentralen Lage, in der Nähe von Einkaufsmöglichkeiten, öffentlichen Verkehrsmitteln und Freizeitangeboten. Vereinbaren Sie noch heute einen Besichtigungstermin und überzeugen Sie sich von der optimalen Raumaufteilung dieser schönen Wohnung!

 

 

Wir weisen darauf hin, dass zwischen dem Vermittler und dem zu vermittelnden Dritten ein familiäres oder wirtschaftliches Naheverhältnis besteht.

Der Vermittler ist als Doppelmakler tätig.

Infrastruktur / Entfernungen

Gesundheit
Arzt <500m
Apotheke <500m
Klinik <1.000m
Krankenhaus <500m

Kinder & Schulen
Schule <500m
Kindergarten <500m
Universität <1.500m
Höhere Schule <1.500m

Nahversorgung
Supermarkt <500m
Bäckerei <500m
Einkaufszentrum <1.000m

Sonstige
Geldautomat <500m
Bank <500m
Post <500m
Polizei <1.000m

Verkehr
Bus <500m
U-Bahn <500m
Straßenbahn <500m
Bahnhof <1.000m
Autobahnanschluss <5.000m

Angaben Entfernung Luftlinie / Quelle: OpenStreetMap
Beschreibung weiterlesen

Lage und Verkehrsanbindung

Die Wohnung befindet sich in einer idealen Lage zwischen Stadt und der Nähe zum Wilhelminenberg.
Öffentliche Verkehrsmittel: Direkt um die Ecke befindet sich eine Haltestelle der Straßenbahn Linie 2.
Diese bringt sie in kurzer Zeit in die Innenstadt.
Einkaufsmöglichkeiten: Supermärkte, Bäckereien und Fachgeschäfte sind bequem zu Fuß erreichbar.
Freizeitangebote: Parks und Grünflächen in der Umgebung laden zu Spaziergängen und Aktivitäten im Freien ein.
Gastronomie: Eine Vielzahl an Restaurants, Cafés und Bars sorgt für kulinarische Vielfalt.
Genießen Sie die Vorzüge einer lebendigen Nachbarschaft, in der alles, was Sie brauchen, direkt vor der Tür liegt!

Wilhelminenberg

Energieeffizienz

HWB:
42 kWh/(m²*a)
HWB Klasse:
B
fGEE:
0,71
fGEE Klasse:
A
Energieausweisart:
Energiebedarfs-ausweis
Gültig bis:
16.10.2033

Grundriss

Lageplan

1160 Wien | Wien 16., Ottakring

Lade...
Daniel Madile- Daschütz

Daniel Madile- Daschütz

Madile- Select Immobilien

Lade...

Fotomix

Bild 1 Bild 2 Bild 3 Bild 4 Bild 5 Bild 6 Bild 7 Bild 8 Bild 9