NEU - Tolle 2-Zimmer-Wohnung direkt am Stadtplatz 6 - Top 6

Wohnung zur Miete in 4600 Wels - Gesamtmiete: 813,74 € / Objektnummer: 133181
Ausstattung: Boden Kabel/Satelliten-TV Zentralheizung
P5121759
P5121760
P5121761
P5121762
P5121763
P5121764
Stadtplatz 6

Preisinformationen

Gesamtmiete:
813,74 € / Monat
Nettomiete:
439,83 € / Monat
Betriebskosten netto:
160,48 € / Monat
Heizkosten netto:
127,83 €
Umsatzsteuer:
85,60 €
Kaution:
1.982,00 €
Vermittlungsprovision:
Ja
Provision:
603,08 € inkl. 20% USt.

Fakten

Objektnummer:
133181
Objekttyp:
Wohnung
Wohnfläche:
48,87 m²
Zimmer:
2
Altbau:
Ja
Zustand:
Gepflegt
Verfügbarkeit:
Verfügbar

Beschreibung

Diese sonnige 2-Zimmer-Wohnung befindet sich im 3. Obergeschoss, ohne Lift. Das Objekt ist mit hellen Parkettböden und einer ablösefreien Küche ausgestattet. Die großen Fenster lassen viel Tageslicht in die Wohnung und ermöglichen einen tollen Blick auf das Welser Innenstadtleben!

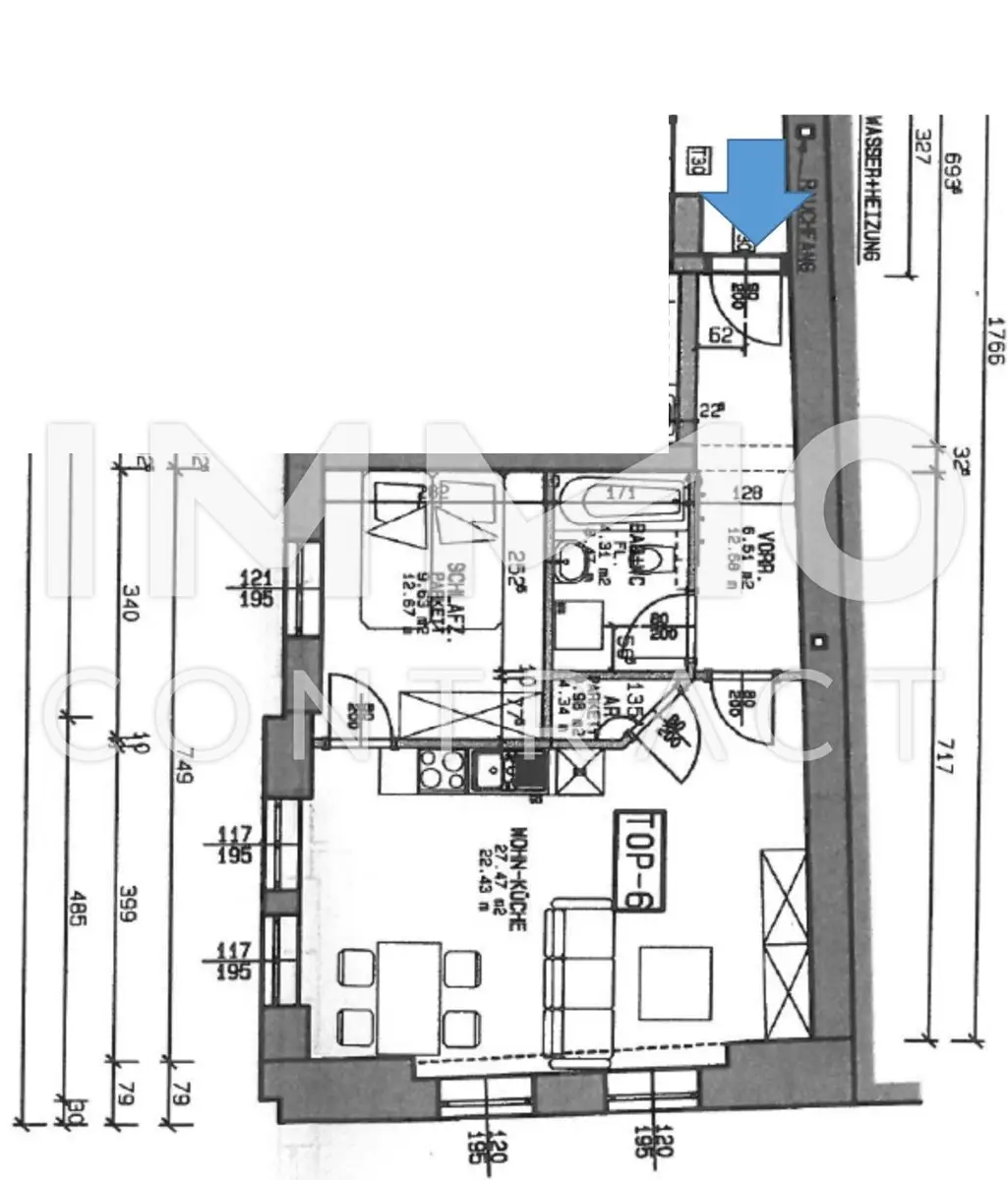
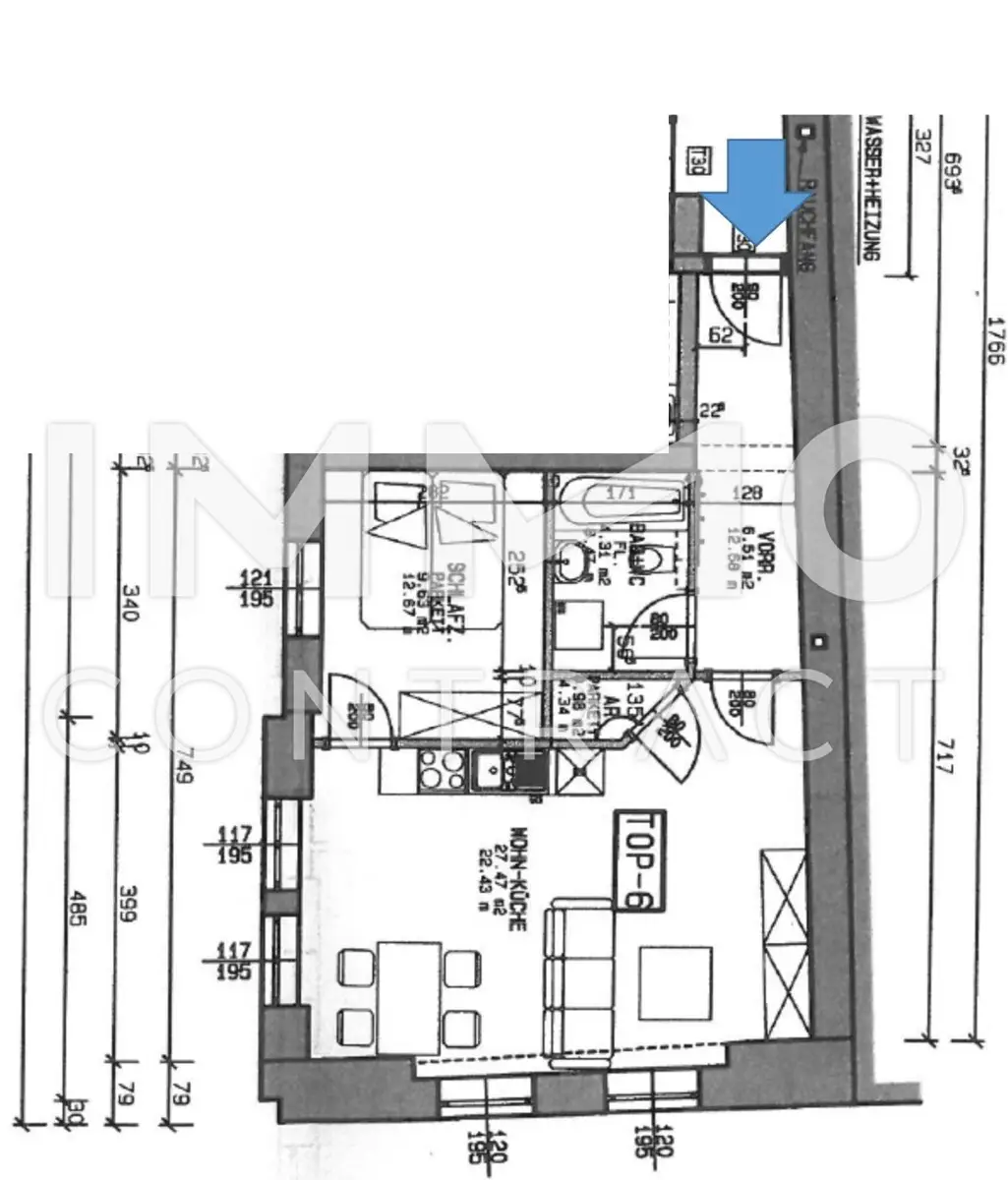
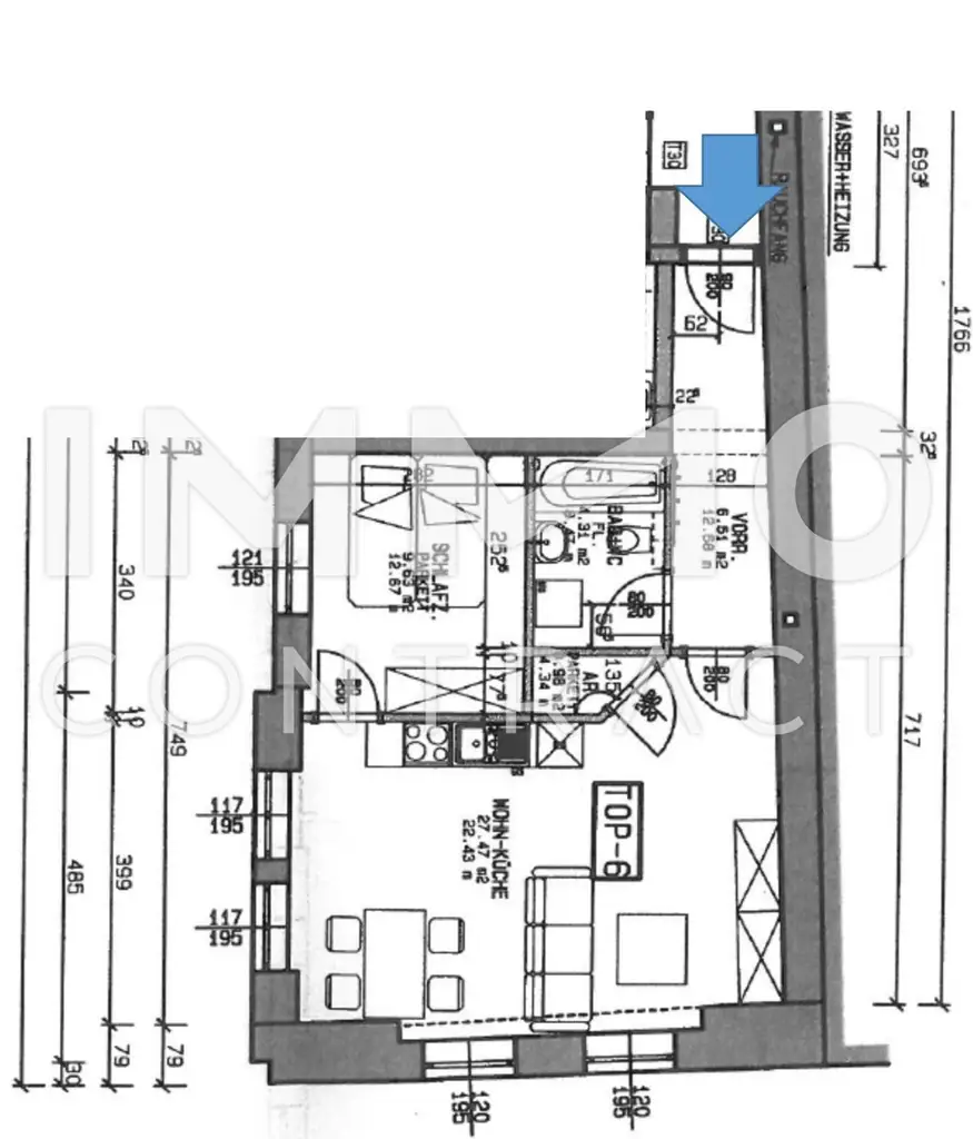
Raumaufteilung: Vorraum, Abstellraum, Bad/WC, Wohnküche, Schlafzimmer.

***Die Anmeldung des Hauptwohnsitzes ist erforderlich.
Beschreibung weiterlesen

Lage und Verkehrsanbindung

Direkt am Welser Stadtplatz

Wels

Energieeffizienz

HWB:
109,2 kWh/(m²*a)
HWB Klasse:
D
fGEE:
1,78
fGEE Klasse:
D
Gebäudeart:
listing.status.epcBuildingType_wohn
Energieausweisart:
Energiebedarfs-ausweis
Ausstellung:
ab dem 1.5.2014
Gültig bis:
05.10.2031

Grundriss

Lageplan

4600 Wels | Wels (Stadt)

Lade...
Klaus Egger, LL.M.

Klaus Egger, LL.M.
Immobilienfachberater

IMMOcontract Immobilien Vermittlung GmbH

Anrufen
Lade...

Fotomix

P5121759 P5121760 P5121761 P5121762 P5121763 P5121764