NEU - TOLLER ALTBAU IN ZENTRALER LAGE - ERSTBEZUG NACH SANIERUNG

Wohnung zum Kauf in 1050 Wien - Kaufpreis: 519.000 € / Objektnummer: 2075953

Preisinformationen

Kaufpreis:
519.000 €
Provision:
3 %

Fakten

Objektnummer:
2075953
Objekttyp:
Wohnung
Wohnfläche:
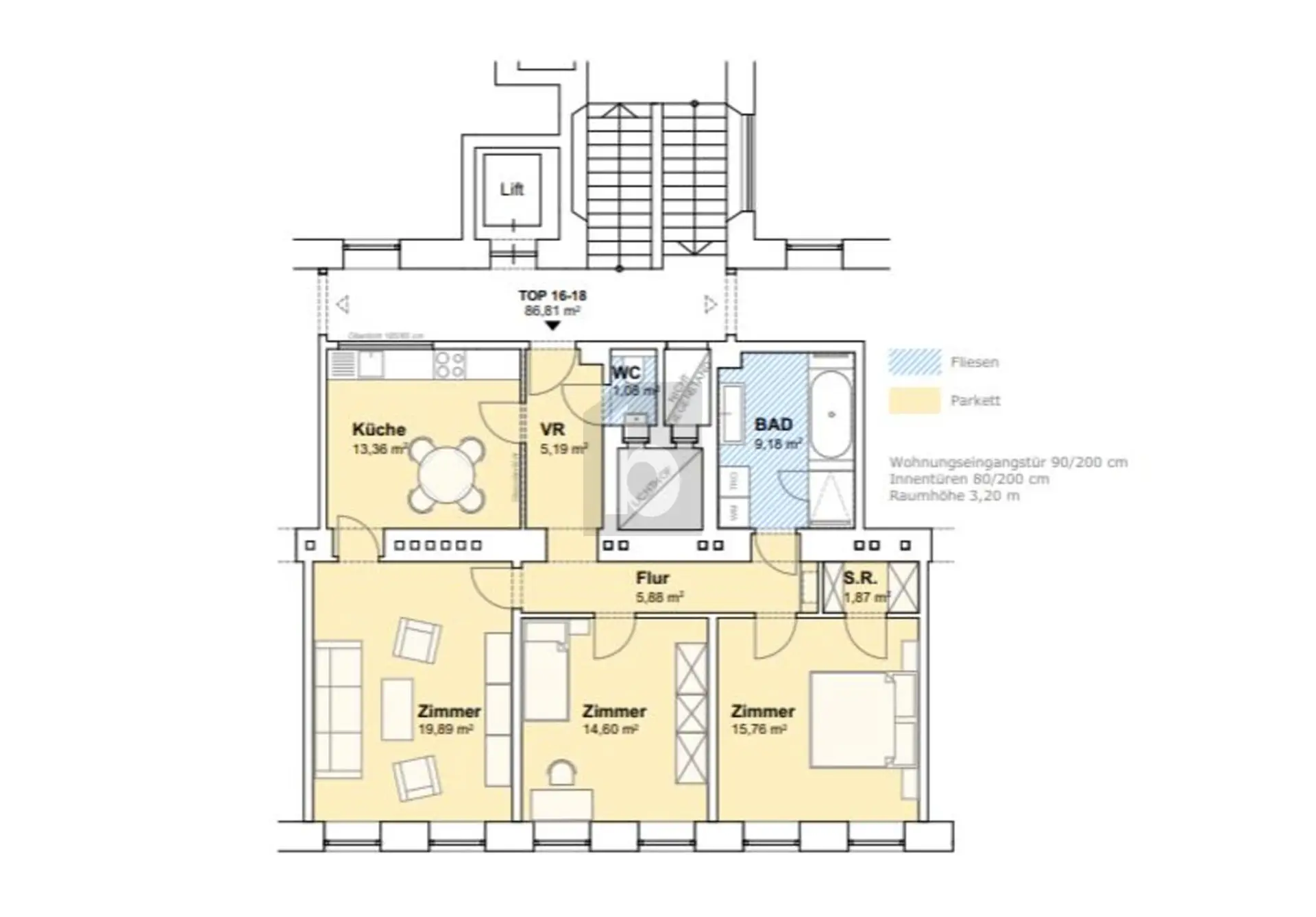
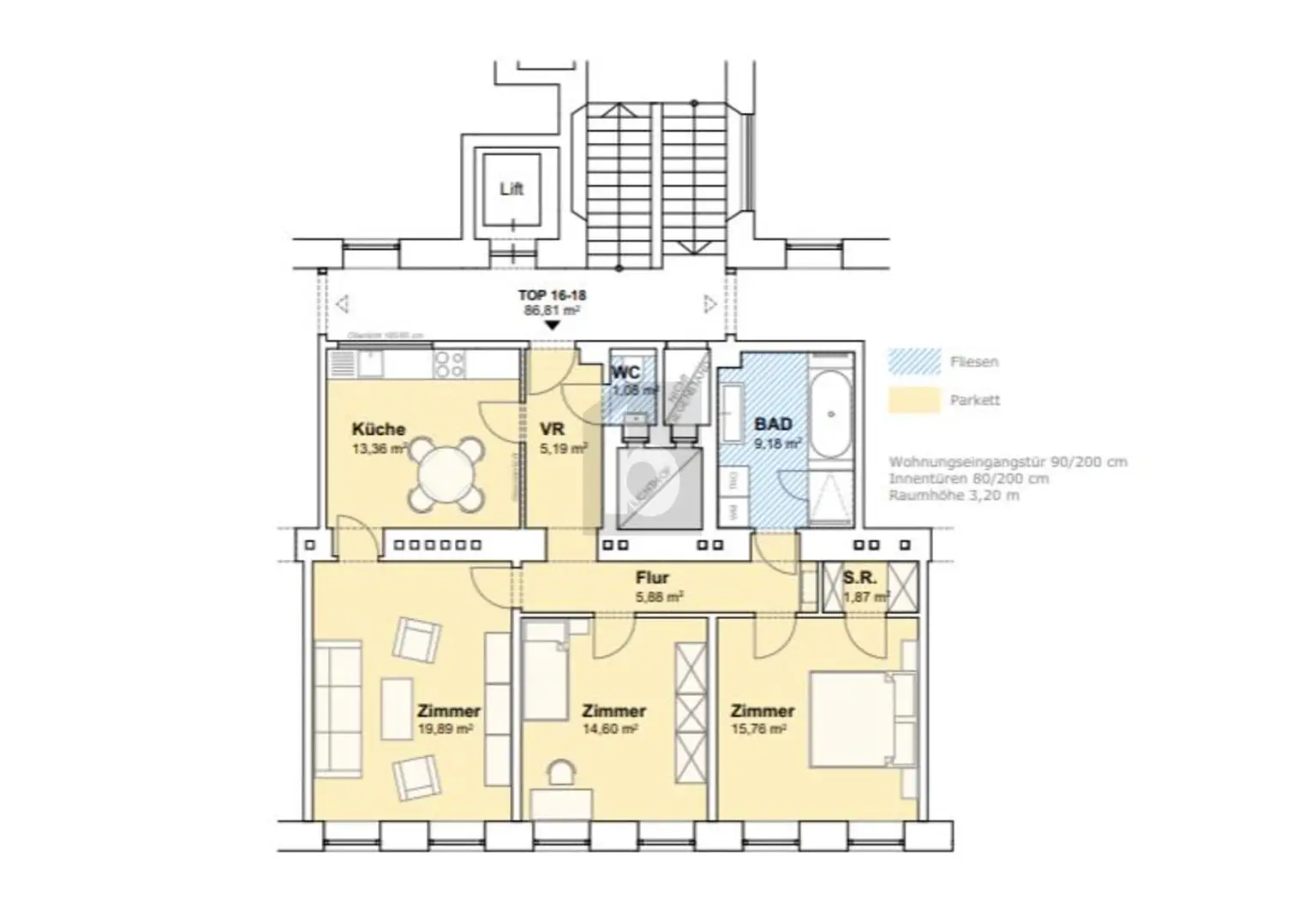
87 m²
Zimmer:
3
Verfügbarkeit:
Verfügbar

Beschreibung

Diese charmante 3-Zimmer-Wohnung in 1050 Wien ist ideal für alle, die Wert auf eine zentrale Lage und eine hochwertige Ausstattung legen. Mit einer Wohnfläche von 87 m² und der Nähe zur U4 sowie bald auch zur U5 bietet sie perfekte Anbindung an den öffentlichen Nahverkehr. Das gesamte Gebäude und die Wohnung werden umfassend saniert, sodass hier modernes Wohnen in bester Lage garantiert ist. Disclaimer: Ein paar Bilder sind KI-generiert, wie das Badezimmer und das Wohnzimmer aussehen könnten.

Dieses BETTERHOMES-Angebot zeichnet sich durch folgende Vorteile aus:
- Nähe U4 und bald U5
- gesamtes Gebäude und die Wohnung werden umfassend saniert
- 3 separate Zimmer und eine Wohnküche
- aktuell können noch Böden, Fliesen und Teile der Ausstattung ausgewählt werden
- und, und, und...


Interessiert? Kontaktieren Sie uns für eine unverbindliche Besichtigung!

Nichts Passendes gefunden? Über 200 weitere Angebote unter: www.betterhomes.at - der Immobilienfairmittler®

Selber eine Immobilie zu vermarkten? Profitieren Sie von unserem Know-how: https://www.betterhomes.at/de/profitieren

Sie möchten eine Immobilie schätzen lassen? Erfahren Sie jetzt ihren Wert über unsere Gratis-Schätzung, sofort und unverbindlich! https://www.betterhomes.at/de/knowledge/estimation
Beschreibung weiterlesen

Lage und Verkehrsanbindung

Zentrale Lage Nähe Wiedner Hauptstraße und dem Matzleinsdorfer Platz

Energieeffizienz

HWB:
137 kWh/(m²*a)
Energieausweisart:
Energiebedarfs-ausweis

Lageplan

1050 Wien | Wien 5., Margareten

Lade...
Marija Traut

Marija Traut

BETTERHOMES Real GmbH

Lade...

Fotomix

Bild 1 Bild 2 Bild 3 Bild 4 Bild 5 Bild 6