Top 3 Zimmerwohnung mit Balkon nahe Donauzentrum

Wohnung zur Miete in 1220 Wien - Gesamtmiete: 1.299,00 € / Objektnummer: 92896
Ausstattung: Boden Fahrstuhl Wohnküche / offene Küche Bad Abstellraum Fernwärme Zentralheizung Balkon Loggia

Preisinformationen

Gesamtmiete:
1.299,00 € / Monat
Betriebskosten netto:
137,05 € / Monat
Umsatzsteuer:
118,10 €
Kaution:
3.897,00 €
Provision:
Gemäß Erstauftraggeberprinzip bezahlt der Abgeber die Provision.

Fakten

Objektnummer:
92896
Objekttyp:
Wohnung
Balkon:
1
Loggia:
1
Wohnfläche:
79,55 m²
Loggia Fläche:
6,28 m²
Zimmer:
2
Badezimmer:
1
Toilette:
1
Stockwerk:
3
Neubau:
Ja
Zustand:
Gepflegt
Verfügbarkeit:
Verfügbar

Beschreibung

Top 3 Zimmerwohnung mit Balkon nahe Donauzentrum

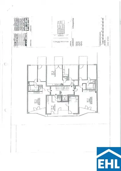
Diese besonders freundliche 3 Zimmerwohnung befindet sich im 3. Obergeschoss und verfügt über eine großzügige Wohnküche, zwei Schlafzimmer, eines davon mit Balkon in den Innenhof, ein Badezimmer mit Doppelhandwaschbecken, Badewanne und Waschmaschinenanschluss, ein separates WC und einen Abstellraum. Die ca. 6m² große Loggia rundet das Wohnerlebnis perfekt ab.

Das Objekt verfügt über eine optimale Verkehrsanbindung und eine sehr gute Infrastruktur. Entspannung finden sie bei der alten Donau, welche sich in unmittelbarer Nähe befindet.

Ausstattung

* Voll ausgestattete Einbauküche mit Geräten
* Bad mit Wanne und Waschmaschinenanschluss
* separate Toilette
* Parkett in den Wohnräumen, edles Feinsteinzeug in den Sanitärräumen
* Stellplatz in der Garage kann für monatlich 110,00 angemietet werden

In dem Haus sind ein Lift, ein Keller, eine Waschküche, ein Kinderwagen - und Fahrradabstellraum ebenfalls verfügbar.

Das Objekt ist nicht barrierefrei. 

Öffentliche Verkehrsanbindung

* U-Bahnlinie U1 "Kagraner Platz"
* Autobuslinie: 23A, 24A, 25A, 31A, 94A
* Straßenbahnlinie: 26

Heizung und Warmwasser werden nach Verbrauch abgerechnet.

Bezug: ab 01.05.2026

Befristung: 5 Jahre, 1 Jahr Kündigungsverzicht, 3 Monate Kündigungsfrist

Nebenkosten
3 BMM Kaution, Vertragserrichtungsgebühr

Wir weisen darauf hin, dass zwischen dem Vermittler und dem zu vermittelnden Dritten ein familiäres oder wirtschaftliches Naheverhältnis besteht.

Der Immobilienmakler erklärt, dass er – entgegen dem in der Immobilienwirtschaft üblichen Geschäftsgebrauch des Doppelmaklers – einseitig nur für den Vermieter tätig ist.

Infrastruktur / Entfernungen

Gesundheit
Arzt <250m
Apotheke <500m
Klinik <2.250m
Krankenhaus <3.500m

Kinder & Schulen
Schule <250m
Kindergarten <500m
Universität <1.250m
Höhere Schule <500m

Nahversorgung
Supermarkt <250m
Bäckerei <250m
Einkaufszentrum <750m

Sonstige
Geldautomat <250m
Bank <250m
Post <500m
Polizei <750m

Verkehr
Bus <250m
U-Bahn <500m
Straßenbahn <500m
Bahnhof <500m
Autobahnanschluss <1.750m

Angaben Entfernung Luftlinie / Quelle: OpenStreetMap
Beschreibung weiterlesen

Lage und Verkehrsanbindung

Kagranerplatz

Energieeffizienz

HWB:
38 kWh/(m²*a)
HWB Klasse:
B
Energieausweisart:
Energiebedarfs-ausweis
Gültig bis:
21.07.2021

Grundriss

Lageplan

1220 Wien | Wien 22., Donaustadt

Lade...
Andreas Minarik

Andreas Minarik
Immobilienberater

EHL Wohnen GmbH

Lade...

Fotomix

Bild 1 Bild 2 Bild 3 Bild 4 Bild 5 Bild 6 Bild 7 Bild 8 Bild 9 Bild 10