NEU - ...TOP 4-Zimmer-Wohnung mit Balkon & Wellnessbereich

Wohnung zur Miete in 1100 Wien - Gesamtmiete: 3.000,00 € / Objektnummer: 13994
Ausstattung: Barrierefrei Boden Wohnküche / offene Küche Bad Gäste-WC Fahrradraum Fernwärme

Preisinformationen

Gesamtmiete:
3.000,00 € / Monat
Betriebskosten netto:
470,00 € / Monat
Provision:
Gemäß Erstauftraggeberprinzip bezahlt der Abgeber die Provision.

Fakten

Objektnummer:
13994
Objekttyp:
Wohnung
Nutzfläche:
127 m²
Zimmer:
4
Badezimmer:
2
Toilette:
2
Stockwerk:
3
Neubau:
Ja
Zustand:
Neuwertig
Verfügbarkeit:
Verfügbar

Beschreibung

***TOP 4-ZIMMER-WOHNUNG MIT BALKON & WELLNESSBEREICH***

Wienerberg City | 1100 Wien

-------------

WOHNKOMFORT AUF HÖCHSTEM NIVEAU

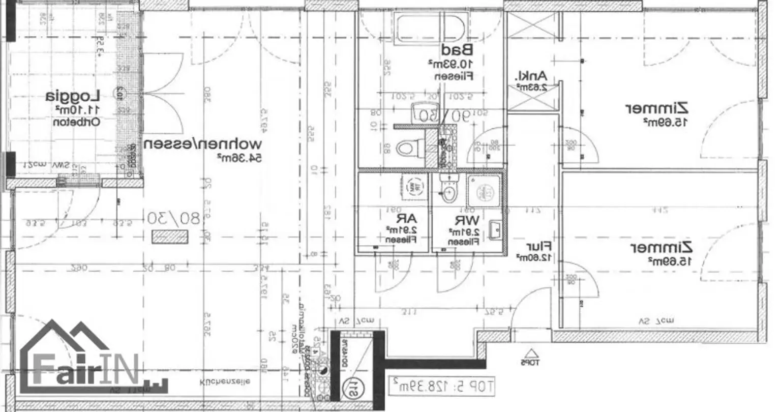
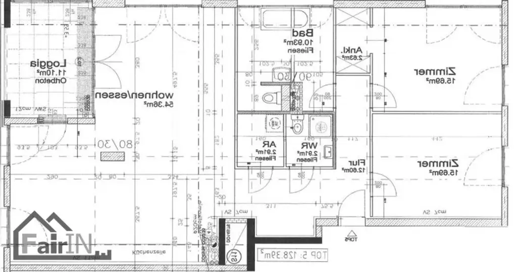
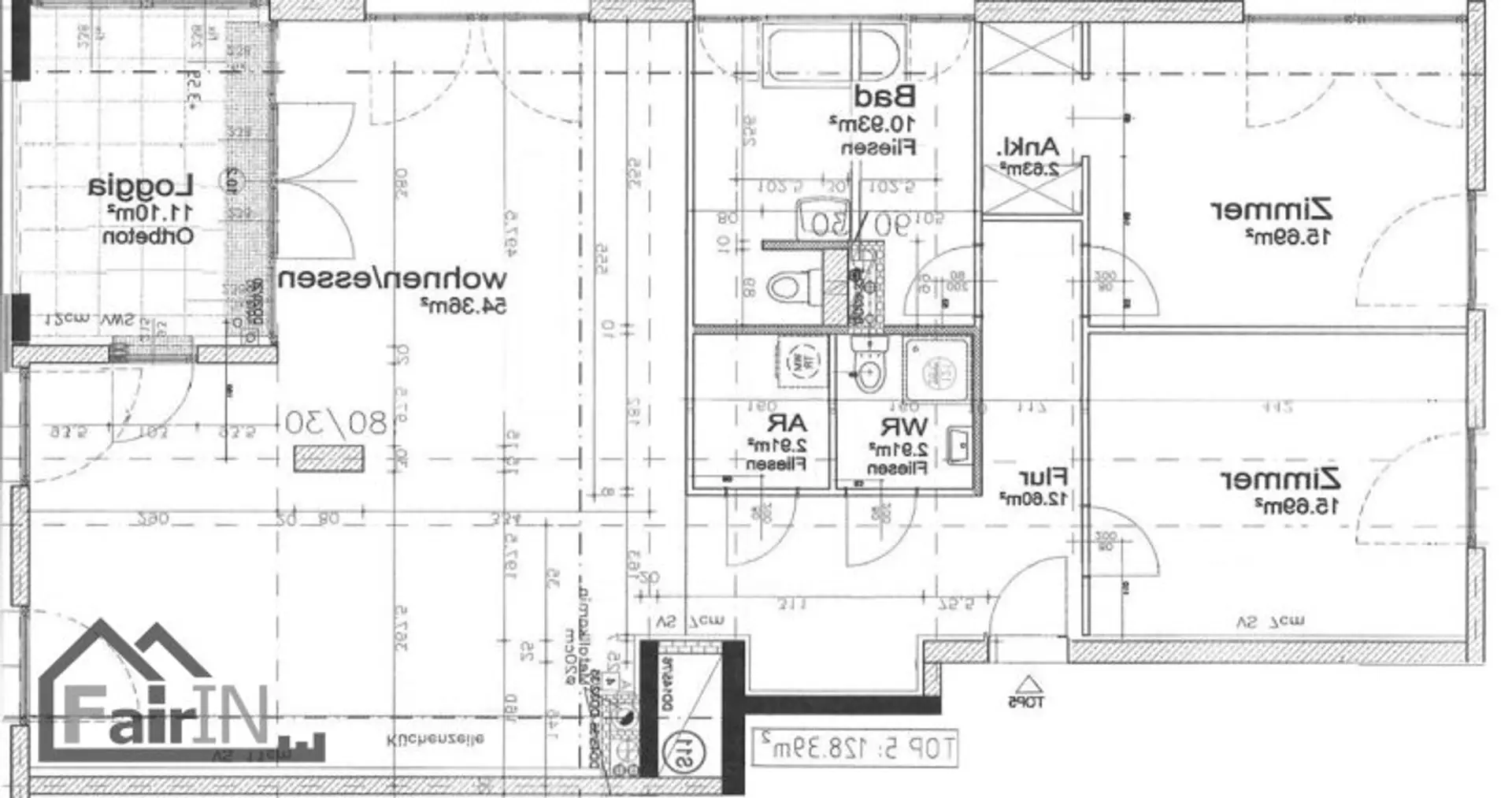
In einer modernen und repräsentativen Wohnanlage der Wienerberg City gelangt diese hochwertige 4-Zimmer-Wohnung (Balkon) mit einer Wohnnutzfläche von ca. 127 m² zur Vermietung.

Die Immobilie überzeugt durch ihre durchdachte Raumaufteilung, ein ruhiges und grünes Umfeld sowie exklusive Freizeitmöglichkeiten direkt im Haus – eine ideale Kombination aus urbanem Wohnen und Erholung.

-------------

RAUMAUFTEILUNG & AUSSTATTUNG

*
Großzügiger Wohn- und Essbereich mit moderner, voll ausgestatteter Küche

*
Drei separat begehbare Schlafzimmer

*
Großer Balkon mit angenehmem Freiraum

*
Zwei Badezimmer:

*
Badezimmer mit Badewanne

*
Badezimmer mit Dusche

*
Abstellraum

*
Geräumiges Vorzimmer

*
3.Liftstock

*
Baujahr 2004

Die Wohnung bietet optimale Voraussetzungen für Familien sowie für anspruchsvolle Berufstätige mit Bedarf an Homeoffice.

-------------

EXKLUSIVER MEHRWERT IM HAUS

Den Bewohnern stehen zahlreiche hochwertige Gemeinschaftseinrichtungen zur Verfügung:

*
Fitnessraum

*
Sauna

*
Schwimmbad

*
Garagenplatz (separat anmietbar)

Dieses Wohnkonzept vereint Alltag, Sport und Entspannung auf komfortable Weise. Das großzügige Eingangsfoyer unterstreicht den repräsentativen Charakter der gesamten Anlage.

-------------

LAGE & UMGEBUNG

Die Wohnung befindet sich in unmittelbarer Nähe zum Naherholungsgebiet Wienerberg und bietet somit eine perfekte Balance zwischen Natur, Ruhe und städtischer Infrastruktur.

*
Sehr gute öffentliche Verkehrsanbindung

*
Einkaufsmöglichkeiten und Nahversorgung in unmittelbarer Umgebung

*
Vielfältige Freizeit- und Erholungsmöglichkeiten direkt vor der Haustür

-------------

MIETKONDITIONEN

*
Gesamtmiete (inkl. Betriebskosten und Garagenplatz): € 3.000 / Monat

*
Heiz- und Stromkosten: nicht inkludiert

*
Kaution: 3 Bruttomonatsmieten

*
Verfügbarkeit: nach Vereinbarung

-------------

FAZIT

Diese exklusive Wohnung bietet großzügigen Wohnraum, hochwertige Ausstattung und ein einzigartiges Freizeitangebot im Haus. Eine ideale Wahl für alle, die Wert auf Komfort, Lebensqualität und eine ruhige, dennoch gut angebundene Lage legen.

 

Kontakt

Für weitere Informationen oder zur Vereinbarung eines persönlichen Besichtigungstermins stehen wir Ihnen gerne zur Verfügung. Sie erreichen uns jederzeit unter:

Tel.: 06 [tel:06673378019]9916600166 [tel:9916600166]

Firmenname: FairIN OG
Adresse: 1120 Wien, Spittelbreitengasse 46/5/R03
Eingang: 1120 Wien, Schwenkgasse 31
Telefon : +43 1 952 75 1 [tel:+4319527513]3

Der Immobilienmakler erklärt, dass er – entgegen dem in der Immobilienwirtschaft üblichen Geschäftsgebrauch des Doppelmaklers – einseitig nur für den Vermieter tätig ist.

Infrastruktur / Entfernungen

Gesundheit
Arzt <500m
Apotheke <500m
Klinik <500m
Krankenhaus <500m

Kinder & Schulen
Schule <500m
Kindergarten <500m
Universität <2.000m
Höhere Schule <1.500m

Nahversorgung
Supermarkt <500m
Bäckerei <500m
Einkaufszentrum <1.500m

Sonstige
Geldautomat <500m
Bank <500m
Post <500m
Polizei <1.500m

Verkehr
Bus <500m
U-Bahn <1.500m
Straßenbahn <1.000m
Bahnhof <1.500m
Autobahnanschluss <2.000m

Angaben Entfernung Luftlinie / Quelle: OpenStreetMap
Beschreibung weiterlesen

Lage und Verkehrsanbindung

Wienerberg City | 1100 Wien

Energieeffizienz

HWB:
51,6 kWh/(m²*a)
HWB Klasse:
C
fGEE:
1,03
fGEE Klasse:
C
Energieausweisart:
Energiebedarfs-ausweis
Gültig bis:
16.05.2033

Grundriss

Lageplan

1100 Wien | Wien 10., Favoriten

Lade...
FAIRIN OG Team

FAIRIN OG Team
Immobilienberater/in

FAIRIN OG

Lade...

Fotomix

Bild 1 Bild 2 Bild 3 Bild 4 Bild 5 Bild 6 Bild 7 Bild 8 Bild 9 Bild 10 Bild 11 Bild 12 Bild 13 Bild 14 Bild 15 Bild 16 Bild 17 Bild 18 Bild 19 Bild 20