NEU - TOP 5: Wohnung mit knapp 100m² Wohnfläche IN TRAUMLAGE!

Wohnung zum Kauf in 8962 Gröbming - Kaufpreis: 499.000 € / Objektnummer: 2445/2779
Ausstattung: Zentralheizung Terrasse

Preisinformationen

Kaufpreis:
499.000 €
Vermittlungsprovision:
Ja
Provision:
3% des Kaufpreises zzgl. 20% USt.

Fakten

Objektnummer:
2445/2779
Objekttyp:
Wohnung
Terrasse:
1
Keller Fläche:
6,85 m²
Wohnfläche:
100 m²
Zimmer:
4
Badezimmer:
2
Toilette:
2
Stockwerk:
1
Baujahr:
2026
Neubau:
Ja
Zustand:
Erstbezug
Verfügbarkeit:
Verfügbar

Beschreibung

Ein tolles Neubauprojekt, gelegen etwas außerhalb von Gröbming (vier Autominuten vom Zentrum entfernt), in Richtung Stoderzinken und im Ortsteil Winkl, mit fünf äußerst durchdachten und
klug ausgericheten Neubauwohnungen in massiver Holzbauweise gelangt 2026 zur Umsetzung.
Die Lage des Grundstücks kann sich sehen lassen: unzählige Sonnenstunden und eine angenehme Umgebung, verbunden mit den Gröbminger Bergen - das garantiert Lebensqualität!

Heimische Firmen und Professionisten werden dafür Sorge tragen, dass alles in feinster Manier ausgeführt wird und Sie sich als
künftiger Bewohner entsprechend wohlfühlen werden.

Erfüllen Sie sich Ihren Traum von einem Heim im wunderschönen Gröbming! Ein Zweit-, Neben- oder Ferienwohnsitz wird
vonseiten der Gemeinde Gröbming ausdrücklich nicht gestattet!

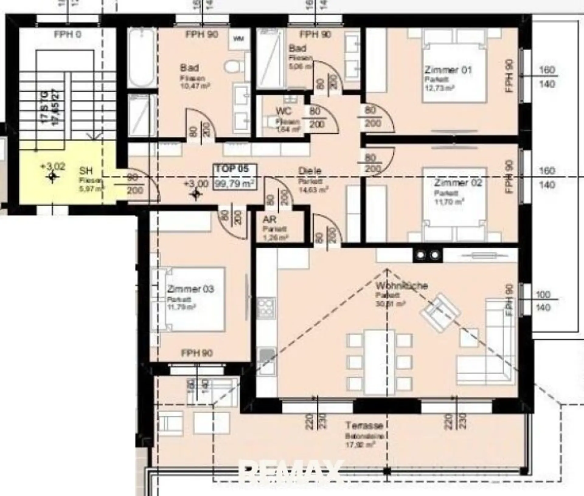
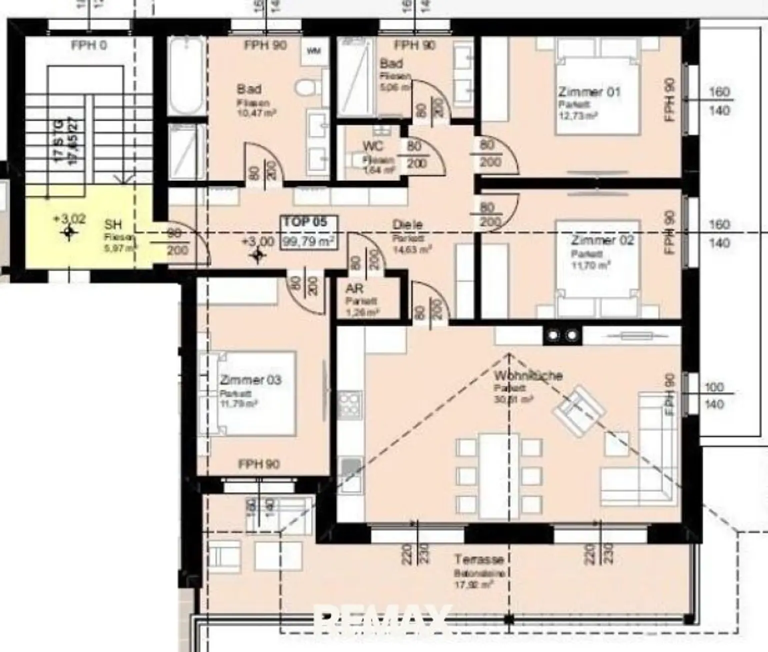
Die gegenständliche Wohnung TOP 5/1 ist im OG angesiedelt und hat bei einer Gesamtfläche von ca. 99,79m² folgende Raumaufteilung
vorzuweisen:
Diele ca. 14,63m²
WC ca. 1,64m²
Bad 1 ca. 10,47m²
Bad 2 ca. 5,06m²
Abstellraum ca. 1,26m²
Zimmer 1 ca. 12,73m²
Zimmer 2 ca. 11,70m²
Zimmer 3 ca. 11,79m²
Wohnküche ca. 30,51m²

Terrasse ca. 17,92m²
Keller ca. 6,85m²

Ein Carport-Stellplatz muss gegen den Aufpreis von €16.000,- dazugekauft werden; ein Freiparker ist im Aufpreis inkludiert.
Ein Kaminanschluss ist gegen den Aufpreis von €4.500,- brutto möglich.
Grundrissänderungen sind, wenn sie früh genug angefragt werden, im Rahmen der Möglichkeiten noch ausführbar.

Auf ein wirtschaftliches Naheverhältnis von RE/MAX Nature zum Abgeber wird ausdrücklich hingewiesen!

Die Marktgemeinde Gröbming ist nicht umsonst der Ort mit einem der größten Bevölkerungszuwächse im Ennstal: eine ausgezeichnete Infrastruktur, ein umfangreiches Vereins- und Freizeitangebot, aber nicht zuletzt die zentrale Lage im Tal machen es zu einem besonders lebenswerten Fleckchen.
Folgende Einrichtungen/ Angebote sind geboten:
katholische und evangelische Kirche
Einkaufszentrum (Pizzeria, Frisör, Bäckerei, Post, Florist, Supermarkt etc.)
Kindergarten, Volksschule, Mittelschule, Fachschule für Land- und Ernährungswirtschaft
ausgezeichnete Speiserestaurants
hauseigener Abenteuerberg (Stoderzinken) mit Zipline
im Winter Langlaufloipe
im Sommer unzählige Wander- und Radwege

Wenn Sie Fragen haben oder eine Besichtigung machen möchten, rufen Sie bitte einfach an oder schreiben uns eine E-Mail.
PS BITTE BEACHTEN SIE, DASS WIR AUFGRUND DER NACHWEISPFLICHT GEGENÜBER DEM EIGENTÜMER NUR ANFRAGEN UNTER ANGABE DER VOLLSTÄNDIGEN ANSCHRIFT SAMT TELEFONNUMMER BEARBEITEN KÖNNEN, DIESEN ANFORDERUNGEN NICHT GERECHT WERDENDE ANFRAGEN MÜSSEN LEIDER UNBEANTWORTET BLEIBEN!
Noch nichts gefunden? Wir informieren Sie über geeignete Immobilienangebote noch vor allen anderen.
Legen Sie jetzt Ihren individuellen Suchagenten unter folgendem Link an. Wir schicken Ihnen passende Immobilien exklusiv vorab zu.
Suchagent anlegen [https://remax-nature-1-zechmann-immobilien.service.immo/registrieren/de] - https://remax-nature-1-zechmann-immobilien.service.immo/registrieren/de

Wir weisen darauf hin, dass zwischen dem Vermittler und dem zu vermittelnden Dritten ein familiäres oder wirtschaftliches Naheverhältnis besteht.

Der Vermittler ist als Doppelmakler tätig.

Infrastruktur / Entfernungen

Gesundheit
Arzt <2.000m
Apotheke <2.000m

Kinder & Schulen
Schule <2.000m
Kindergarten <2.000m

Nahversorgung
Supermarkt <2.000m
Bäckerei <5.000m

Sonstige
Bank <2.000m
Geldautomat <2.000m
Post <2.000m
Polizei <2.000m

Verkehr
Bus <500m
Bahnhof <3.000m

Angaben Entfernung Luftlinie / Quelle: OpenStreetMap
Beschreibung weiterlesen

Energieeffizienz

HWB:
55,9 kWh/(m²*a)
HWB Klasse:
C
fGEE:
0,58
fGEE Klasse:
A+
Energieausweisart:
Energiebedarfs-ausweis

Lageplan

8962 Gröbming | Liezen

Lade...
Marco Schwab

Marco Schwab
REMAX Immobilienmakler

REMAX Nature 1 Zechmann Immobilien GmbH

Lade...

Fotomix

Visualisierung 1 Blick Nordosten Blick Richtung Stoderzinken und Kamm Blick Richtung Südosten Blick Richtung Kamm im Norden Blick Richung Südwesten Der Kamm.. Gröbmings Hausberg im Norden der Stoder und der Kamm im Nordwesten.. GR OG Ansicht Nord Ansicht West Grundriss 2445-2779 TOP 5 mit 100 m²