NEU - Top Büro in Top Lage!

Immobilie zur Miete in 4664 Oberweis / Objektnummer: 1068/5189
Ausstattung: Kabel/Satelliten-TV Zentralheizung
Bürozimmer
Bürozimmer
Eingang
Eingangszimmer
Eingangszimmer
Küche/Aufenthaltsraum/Besprechungsraum
Küche/Aufenthaltsraum/Besprechungsraum
Hausansicht
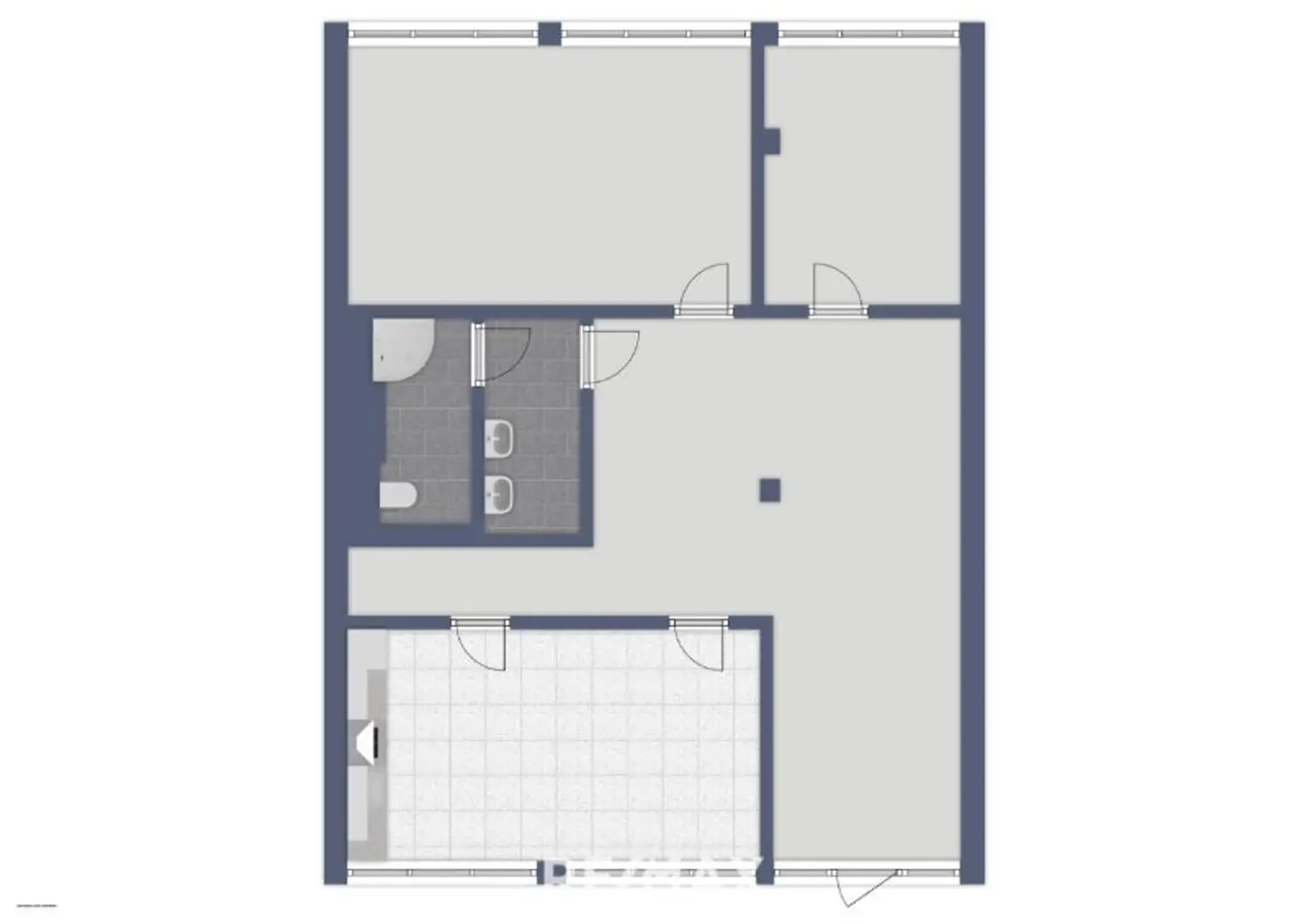
Grundrissplan

Preisinformationen

Gesamtmiete (exkl. USt.):
890,00 € / Monat
Kaution:
3.500,00 €
Vermittlungsprovision:
Ja
Provision:
1.680,00 € inkl. 20% USt.

Fakten

Objektnummer:
1068/5189
Nutzfläche:
100,94 m²
Zimmer:
4,5
Toilette:
1
Baujahr:
2009
Zustand:
Neuwertig
Verfügbarkeit:
Verfügbar

Beschreibung

Mieten Sie diese Bürofläche mit ca. 100 m² im 2. Stock eines repräsentativen Gebäudes, bequem erreichbar über den vorhandenen Aufzug. Die großzügig geschnittene Fläche bietet ideale Arbeitsbedingungen für Ihr Team!

Das Büro verfügt über helle Büroräume, die Ihnen und Ihren Mitarbeitern ein optimales Arbeiten bieten. Ein großer Besprechungsraum mit Küche lädt zu Meetings und Präsentationen ein. Der großzügige Empfangsbereich sorgt für einen professionellen ersten Eindruck bei Ihren Kunden und Besuchern.

Kundenparkplätze befinden sich direkt vor dem Haus.
Tiefgaragenplätze können bei Verfügbarkeit dazu gemietet werden (€ 120,- je TG-Platz).

Die Miete beträgt inkl. BK/HZ/Ust € 890,-

 

Infrastruktur / Entfernungen

Gesundheit
Arzt <2.500m
Apotheke <3.000m
Krankenhaus <5.500m
Klinik <3.500m

Kinder & Schulen
Schule <2.500m
Kindergarten <2.500m

Nahversorgung
Supermarkt <2.500m
Bäckerei <2.000m
Einkaufszentrum <4.000m

Sonstige
Bank <500m
Geldautomat <500m
Post <2.500m
Polizei <3.500m

Verkehr
Bus <500m
Straßenbahn <3.500m
Bahnhof <3.000m
Autobahnanschluss <5.500m
Flughafen <4.000m

Angaben Entfernung Luftlinie / Quelle: OpenStreetMap
Beschreibung weiterlesen

Lage und Verkehrsanbindung

Oberweis

Energieeffizienz

HWB:
30,1 kWh/(m²*a)
HWB Klasse:
B
Energieausweisart:
Energiebedarfs-ausweis

Grundriss

Lageplan

4664 Oberweis | Gmunden

Lade...
Christian Sammer

Christian Sammer
staatl. geprüfter Immobilientreuhänder - Makler

Traunsee Immobilien

Virtuelle Tour

Lade...

Fotomix

Bürozimmer Bürozimmer Eingang Eingangszimmer Eingangszimmer Küche/Aufenthaltsraum/Besprechungsraum Küche/Aufenthaltsraum/Besprechungsraum Hausansicht