NEU - Top-Bürofläche im Rivergate Möbelübernahme inklusive!

Büro zur Miete in 1200 Wien / Objektnummer: 16324

Preisinformationen

Betriebskosten netto:
5,62 € / Monat
Miete/m² netto:
16,26 €
Vermittlungsprovision:
Ja

Fakten

Objektnummer:
16324
Objekttyp:
Büro
Nutzfläche:
338 m²
Bürofläche:
338 m²
Gesamtfläche:
338 m²
Verfügbarkeit:
Verfügbar

Beschreibung

Voll ausgestattete Bürofläche im Rivergate ca. 335 m im 2. Obergeschoss

Neu zur Vermietung steht diese top-moderne, voll ausgestattete Bürofläche mit rund 335 m im 2. Obergeschoss des Rivergate. Die Fläche überzeugt insbesondere durch ihren großzügigen Open-Space-Bereich und bietet ideale Bedingungen für kreatives, flexibles Arbeiten.

Das Rivergate am Wiener Handelskai besticht nicht nur durch seine ansprechende Architektur, sondern auch durch höchste ökologische und ökonomische Standards. Ein durchdachtes Energiekonzept sorgt für besonders niedrige Betriebskosten.

Im Gebäude profitieren Sie von umfassenden Services: ein eigenes Restaurant, ein 24/7-besetzter Empfang sowie kaufmännische Verwaltung und Facility Management direkt vor Ort. Garage direkt im Haus.

Merkmale des Standortes:
Hervorragende Erreichbarkeit mit PKW und direkte Anbindung an Öffis und Flughafen
Internationale Atmosphäre dank Mietern aus der ganzen Welt
Urbaner Hotspot mit Geschäften, Restaurants und Hotels
Markante Lage direkt an der Donau mit Blick auf die Weinberge und die City
Kulinarische Vielfalt im Haus und in direkter Umgebung
Hoher Freizeitwert dank Zugang zum Naherholungsgebiet Donauinsel
Interessante Perspektiven durch neue Stadtentwicklungsgebiete

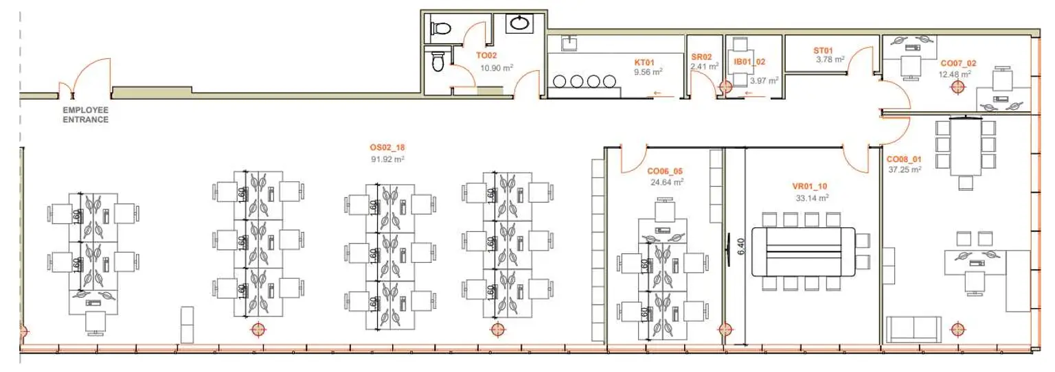
Raumaufteilung:
Open Space Bereich
4 abgetrennte Räume
Teeküche
Serverraum
Abstellraum
Bis zu 25 Arbeitsplätze
Beschreibung weiterlesen

Lage und Verkehrsanbindung

Öffentliche Verkehrsanbindung:
U-Bahn: U6 Handelskai
Schnellbahn: S1, S2, S3, S4, S7
Bus: 5A, 11A, 11B
Zug: diverse Züge Station Handelskai

Parkplatz:
Pro 100m Bürofläche ein Stellplatz zu mtl. 125,00 netto. Weitere Stellplätze nach Verfügbarkeit (mtl. 155/Stpl. netto)

Grundrisse

Antonia Vrcic, MA

Antonia Vrcic, MA

Modesta Real Estate

Lade...

Fotomix

Bild 1 Bild 2 Bild 3 Bild 4 Bild 5 Bild 6 Bild 7 Bild 8 Bild 9