NEU - Top Büroflächen direkt am Nußdorferplatz zu mieten!

Büro zur Miete in 1190 Wien / Objektnummer: 16491

Preisinformationen

Betriebskosten netto:
2,67 € / Monat
Miete/m² netto:
11,99 €
Vermittlungsprovision:
Ja

Fakten

Objektnummer:
16491
Objekttyp:
Büro
Nutzfläche:
139,85 m²
Bürofläche:
139,85 m²
Gesamtfläche:
139,85 m²
Verfügbarkeit:
Verfügbar

Beschreibung

Zur Vermietung gelangen zwei Büroflächen, eine im Erdgeschoss, sowie eine im 3. Obergeschoss in Wien-Döbling. Die Erdgeschoss Einheit verfügt über eine Nutzfläche von ca. 608 m aufgeteilt auf zwei Stockwerke inklusive Terrasse. Die großzügige untere Fläche eignet sich perfekt für eine Verkaufsfläche und/oder einen Showroom. Die Obere, mit einer Treppe verbundene Fläche ist in zwei Räume aufgeteilt. Der größere ist durch Trennwände in Abschnitte geteilt und kann als Open-Space genutzt werden.
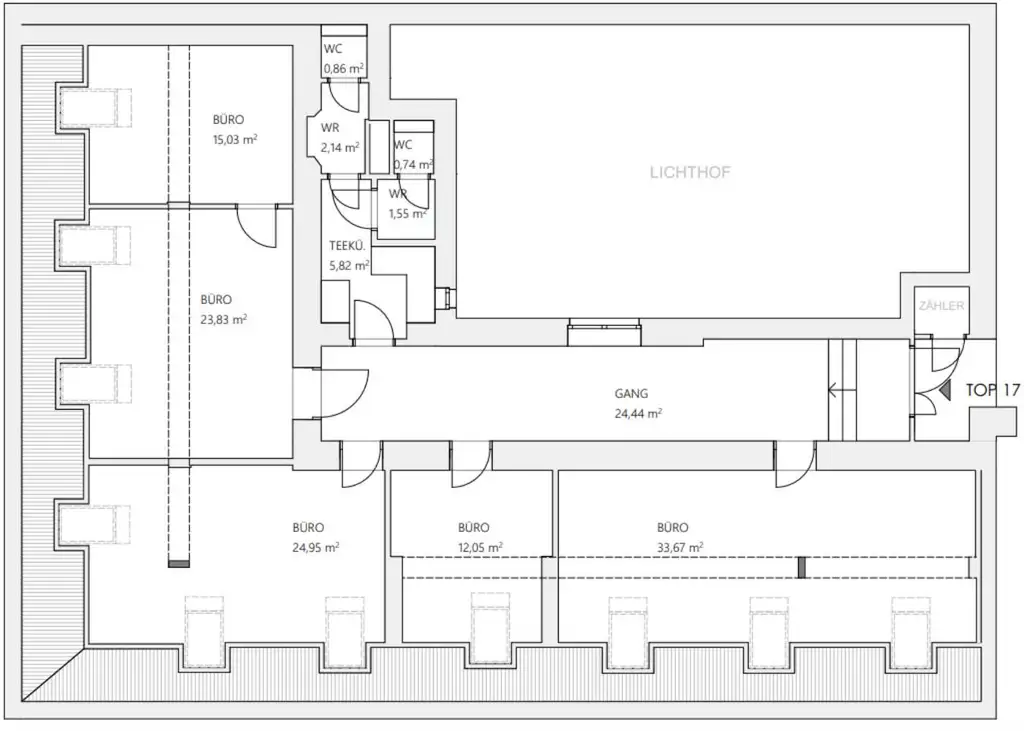
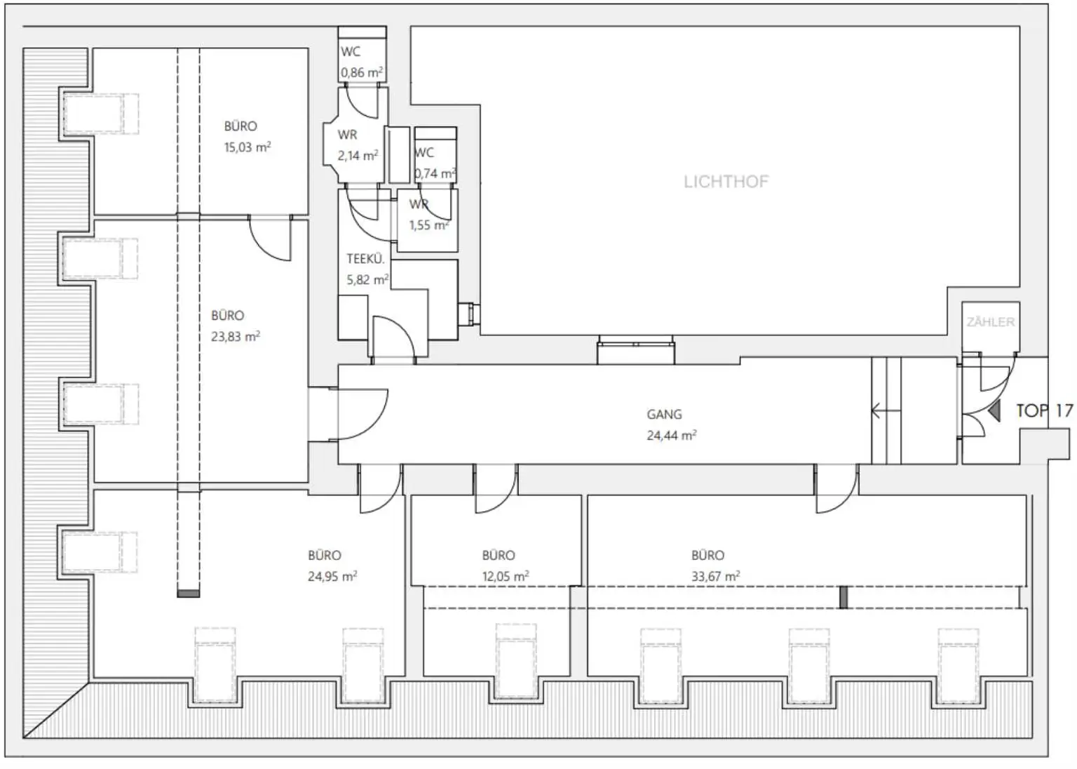
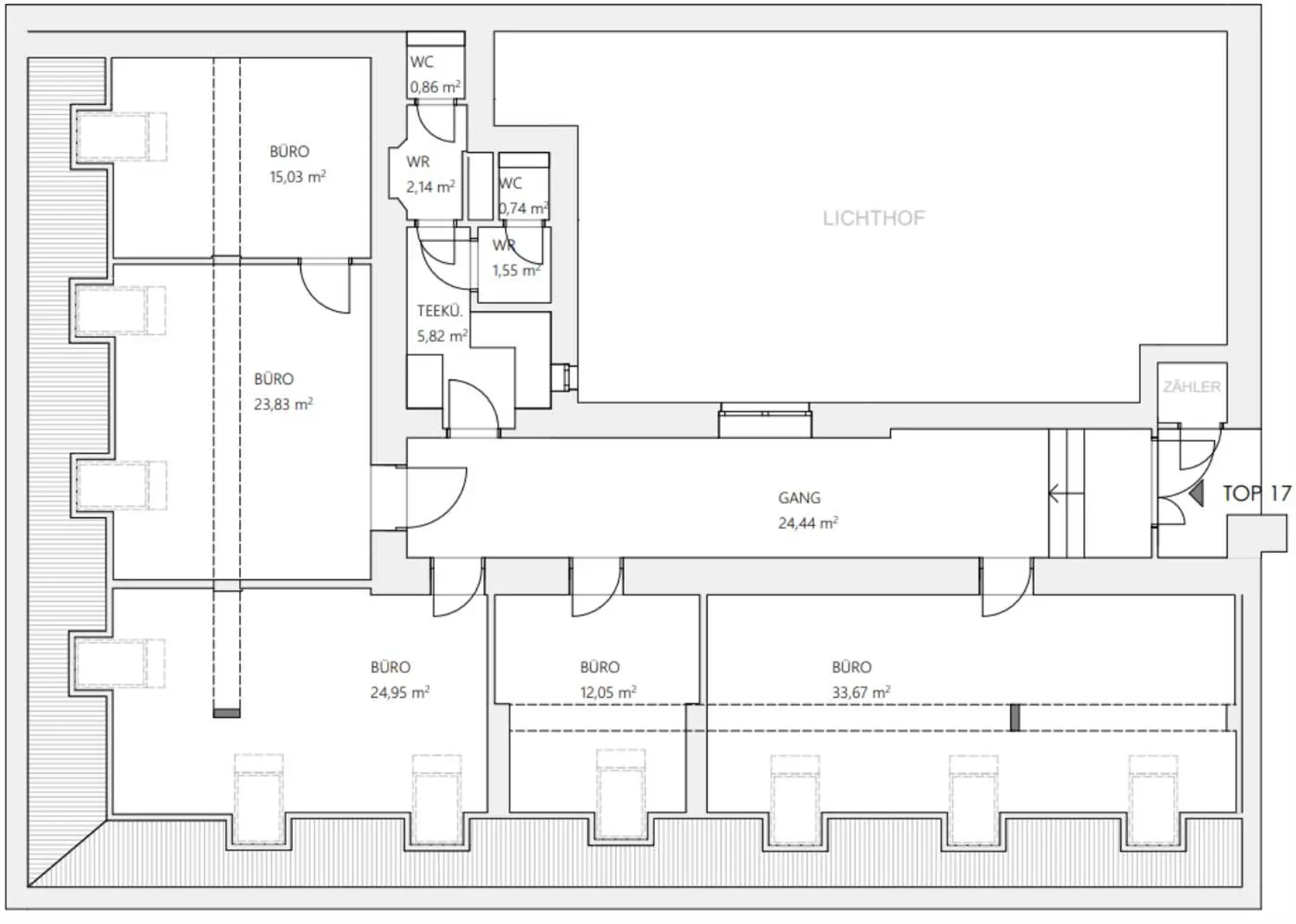
Die zweite Einheit befindet sich im 3. Obergeschoss mit rund 139,85 m und 5 getrennte Büroräume, Nebenräume sowie Sanitärbereiche.
Die Büroräume sind mit Parkettböden sowie Dachflächenfenstern ausgestattet, die für natürliche Belichtung sorgen. Eine voll ausgestattete Teeküche ist ebenfalls vorhanden. Zusätzlich gibt es einen Innenhof, welcher von den Mietern genutzt werden kann.
Beschreibung weiterlesen

Lage und Verkehrsanbindung

Das Objekt befindet sich in unmittelbarer Nähe zum Nußdorfer Platz, einem etablierten Geschäfts- und Verkehrsknotenpunkt. Die Lage zeichnet sich durch eine sehr gute öffentliche Verkehrsanbindung aus, unter anderem durch Straßenbahn- und Buslinien sowie die Nähe zur U-Bahn-Station Spittelau.

Grundrisse

Fabian Muzik

Fabian Muzik

Modesta Real Estate

Lade...

Fotomix

Bild 1 Bild 2 Bild 3 Bild 4 Bild 5 Bild 6 Bild 7 Bild 8 Bild 9 Bild 10 Bild 11 Bild 12 Bild 13