NEU - TOP LAGE: MODERNE BÜROFLÄCHEN IM EKAZENT HIETZING

Büro zur Miete in 1130 Wien / Objektnummer: 1609/47009
Ausstattung: Barrierefrei Fahrstuhl Klimaanlage Terrasse

Preisinformationen

Gesamtmiete (exkl. USt.):
8.642,16 € / Monat
Betriebskosten netto:
1.080,27 € / Monat
Umsatzsteuer:
864,22 €
Miete/m² netto:
21,00 €
Vermittlungsprovision:
Ja
Provision:
3 Bruttomonatsmieten zzgl. 20% USt.

Fakten

Objektnummer:
1609/47009
Objekttyp:
Büro
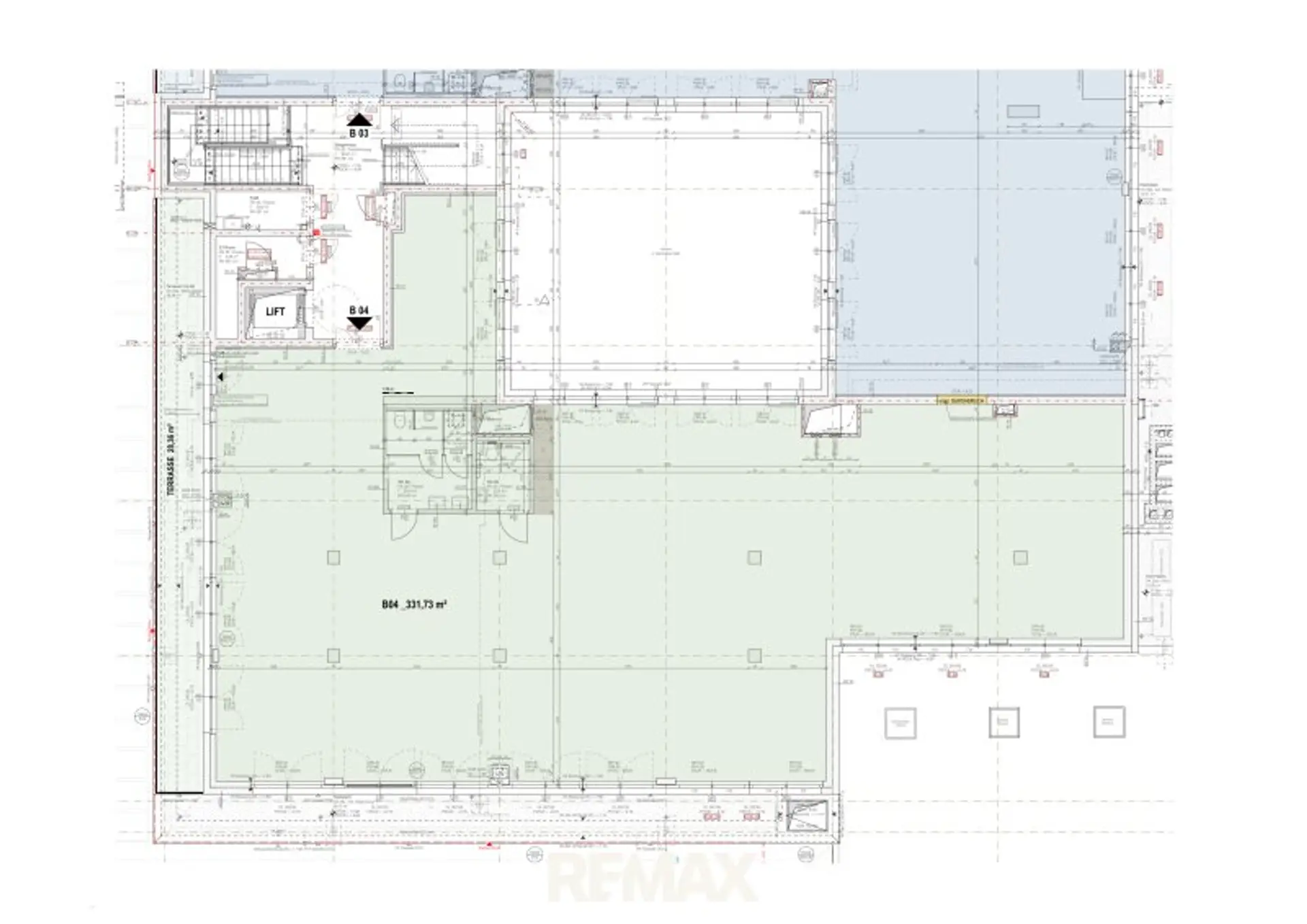
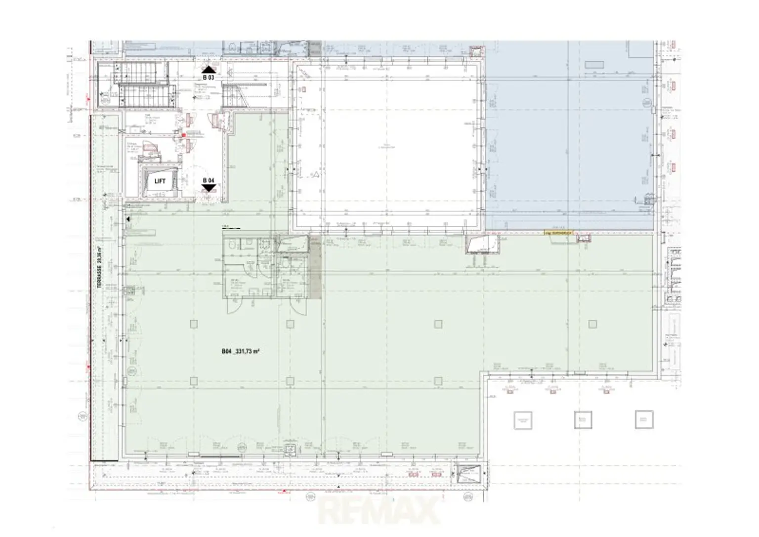
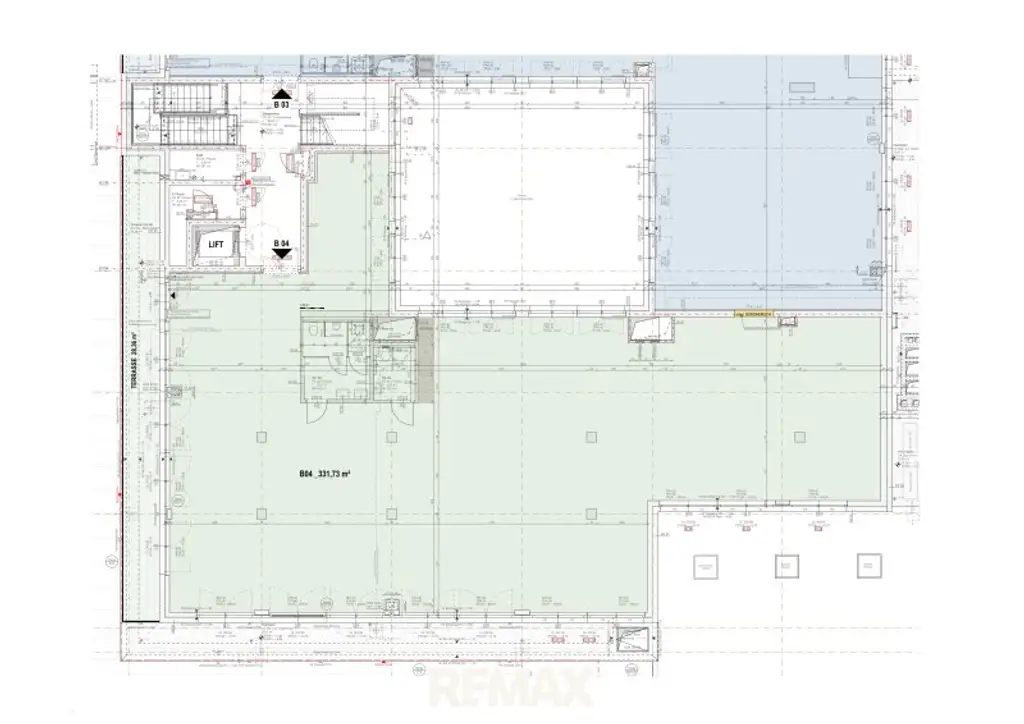
Terrasse:
1
Bürofläche:
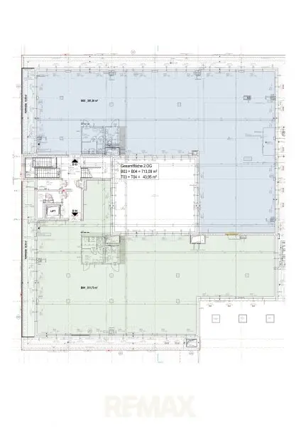
331,73 m²
Stockwerk:
2
Baujahr:
2025
Neubau:
Ja
Verfügbarkeit:
Verfügbar
Verfügbar ab:
nach Ausbau

Beschreibung

Entdecken Sie Ihr neues Büro- oder Praxisdomizil im Herzen des 13. Bezirks in Wien! Diese attraktive Bürofläche im 1.Obergeschoss im vorderen Bauteil des Ekazent bietet Ihnen ideale Voraussetzungen, um Ihr Unternehmen oder Ihre Praxis professionell und komfortabel zu präsentieren.

Die Räumlichkeiten bieten eine Standardausstattung, die nach eigenen Vorstellungen angepasst werden können. Ein außenliegender Sonnenschutz schützt vor zu starker Sonneneinstrahlung und sorgt für ein optimales Raumklima – so bleibt Ihr Arbeitsplatz stets hell und gleichzeitig angenehm temperiert. Für Ihre Fahrzeuge steht eine Tiefgarage zur Verfügung, die Ihnen und Ihren Kunden oder Mitarbeitern bequeme und sichere Parkmöglichkeiten bietet.

Die Lage der Immobilie ist unschlagbar: Dank exzellenter Verkehrsanbindung mit Bus, U-Bahn, Straßenbahn und Bahnhof erreichen Sie Ihr Büro schnell und unkompliziert – perfekt für Pendler und Kunden. Zudem befinden sich in unmittelbarer Nähe zahlreiche wichtige Einrichtungen wie Ärzte, Apotheken, Kliniken, Schulen, Kindergärten sowie die Universität. Auch für die tägliche Versorgung ist gesorgt: Supermärkte und Bäckereien sind fußläufig erreichbar.

Diese Bürofläche verbindet optimale Infrastruktur mit einem ansprechenden Arbeitsumfeld und bietet Ihnen die besten Voraussetzungen, um erfolgreich zu arbeiten und zu wachsen. Nutzen Sie diese Chance und sichern Sie sich Ihren neuen Standort in 1130 Wien – Ihr Business verdient den besten Platz! Kontaktieren Sie uns noch heute für weitere Informationen und eine Besichtigung.

Wir weisen darauf hin, dass zwischen dem Vermittler und dem zu vermittelnden Dritten ein familiäres oder wirtschaftliches Naheverhältnis besteht.

Der Vermittler ist als Doppelmakler tätig.

Infrastruktur / Entfernungen

Gesundheit
Arzt <500m
Apotheke <500m
Klinik <500m
Krankenhaus <2.000m

Kinder & Schulen
Schule <500m
Kindergarten <1.000m
Universität <1.000m
Höhere Schule <3.000m

Nahversorgung
Supermarkt <500m
Bäckerei <500m
Einkaufszentrum <2.000m

Sonstige
Geldautomat <500m
Bank <500m
Post <500m
Polizei <500m

Verkehr
Bus <500m
U-Bahn <500m
Straßenbahn <500m
Bahnhof <500m
Autobahnanschluss <4.000m

Angaben Entfernung Luftlinie / Quelle: OpenStreetMap
Beschreibung weiterlesen

Lage und Verkehrsanbindung

Das EKAZENT Hietzing überzeugt durch seine ruhige, gepflegte Umgebung sowie die Nähe zum Schloss Schönbrunn.

Die Infrastruktur ist ausgezeichnet: Die U4-Station Hietzing ist in wenigen Gehminuten erreichbar. Zusätzlich sorgen die Straßenbahnlinien 10 und 60 sowie die Buslinien 51A, 56A, 56B, 58A und 58B für eine optimale Anbindung. Zahlreiche Geschäfte, Restaurants und Dienstleister befinden sich in unmittelbarer Umgebung.

Schönbrunn

Energieeffizienz

HWB:
35,4 kWh/(m²*a)
HWB Klasse:
B
fGEE:
0,69
fGEE Klasse:
A+
Energieausweisart:
Energiebedarfs-ausweis
Gültig bis:
14.04.2036

Grundrisse

Lageplan

1130 Wien | Wien 13., Hietzing

Lade...
Norbert Galfusz

Norbert Galfusz

REMAX First - REM Immobilienmakler GmbH & Co KG

Lade...

Fotomix

Bürofläche B04_KI bearbeitet Bürofläche B04 Bürofläche B04 Bürofläche B04_KI bearbeitet Bürofläche B04 Bürofläche B04_ KI bearbeitet Bürofläche B04 Terrasse mit Kemperventil Aussicht auf Ekazent Platz Südseite Hauptplatz Ekazent Zugang Hauptplatz Ekazent Eingang über Passage