NEU - Top modernes Loft/Atelier direkt an der Mariahilfer Straße

Büro zur Miete in 1070 Wien / Objektnummer: 14256

Preisinformationen

Betriebskosten netto:
2,92 € / Monat
Miete/m² netto:
19,00 €
Vermittlungsprovision:
Ja

Fakten

Objektnummer:
14256
Objekttyp:
Büro
Nutzfläche:
111,49 m²
Bürofläche:
111,49 m²
Gesamtfläche:
111,49 m²
Verfügbarkeit:
Verfügbar

Beschreibung

In unmittelbarer Nähe zur Mariahilfer Straße befindet sich dieses beeindruckende Loft/Atelier, das durch seinen unverwechselbaren Industriestyle besticht. Die großzügige Fläche bietet eine ideale Kombination aus urbanem Charme und funktionalem Design. Hohe Decken und große Fensterfronten sorgen für eine helle und offene Atmosphäre, während authentische Elemente wie Betonpfeiler den industriellen Flair unterstreichen.
Ob als modernes Atelier, großzügiges Büro oder stilvolles Zuhause, diese Fläche vereint urbanen Stil mit vielfältigen Nutzungsmöglichkeiten und einer erstklassigen Lage.
Beschreibung weiterlesen

Lage und Verkehrsanbindung

öffentliche Verkehrsanbindung:
U-Bahn: U3-Neubaugasse
Bus: 13A, 14A
Straßenbahn: 49

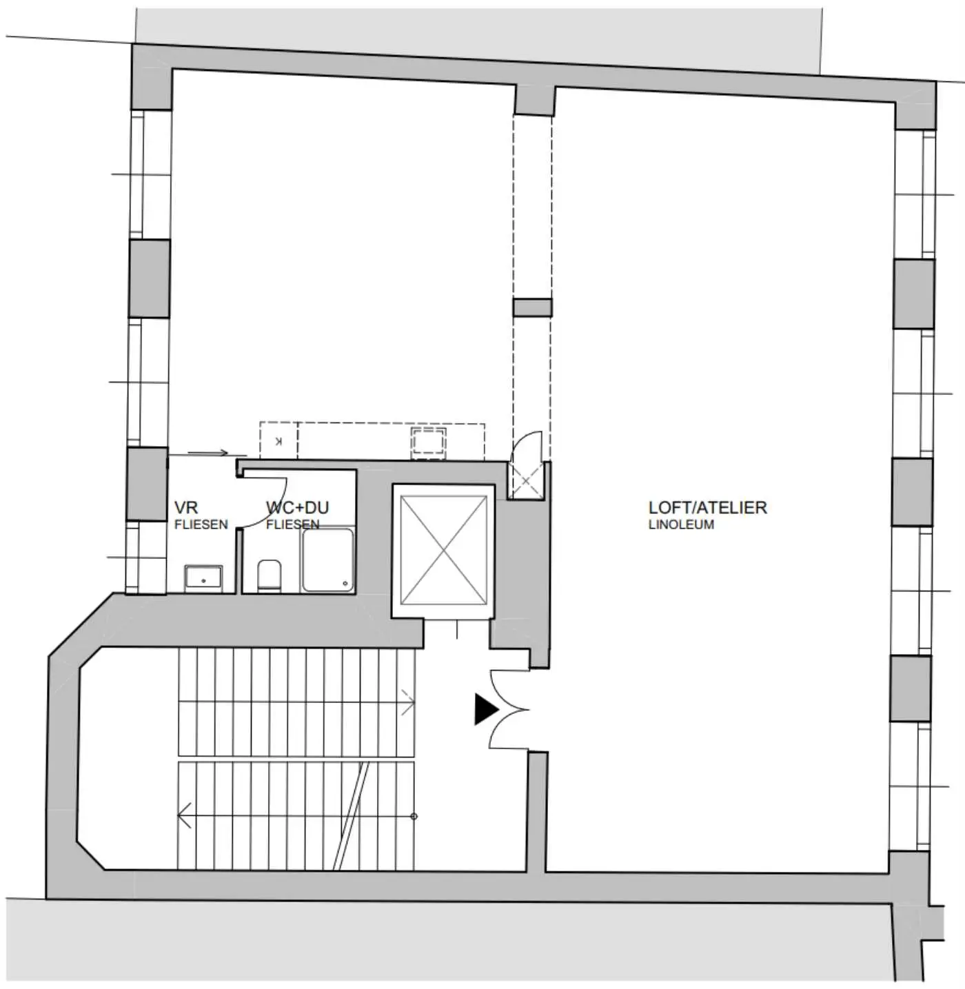
Grundrisse

Fabian Muzik

Fabian Muzik

Modesta Real Estate

Lade...

Fotomix

Bild 1 Bild 2 Bild 3 Bild 4 Bild 5 Bild 6 Bild 7 Bild 8 Bild 9 Bild 10 Bild 11