NEU - TOPLAGE - NEU ERRICHTETE LAGERFLÄCHEN - Nähe Hauptbahnhof! (Mietbeginn 01.05.2026)

Lager zur Miete in 1100 Wien / Objektnummer: 98720

Preisinformationen

Gesamtmiete (exkl. USt.):
1.041,25 € / Monat
Miete/m² netto:
8,50 €
Preisinfos:
* Die monatl. Gesamtbelastung von € 1.041,25 ist inkl. BK, jedoch exkl. USt > Endpreis € 1.249,50
Kaution:
3 Bruttomonatsmieten
Vermittlungsprovision:
Ja
Provision:
3 Bruttomonatsmieten zzgl. 20% USt.

Fakten

Objektnummer:
98720
Objekttyp:
Lager
Nutzfläche:
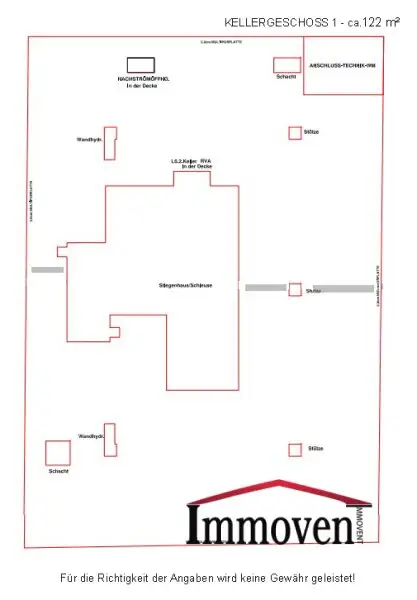
122,5 m²
Stockwerk:
-1
Verfügbarkeit:
Verfügbar

Beschreibung

Lagerflächen mit sehr guter Anbindung.
Eine Lagerfläche befindet sich im 1. Kellergeschoss und bietet eine Nutzfläche von ca. 123 m² und eine Traglast von ca. 500 KG.

Im Gebäude befinden sich weitere Lagermöglichkeiten über mehrere Etagen verteilt. Diese sind über das Stiegenhaus und/oder mittels Lastenaufzug (Traglast ca. 2.000 KG) erreichbar.

WICHTIGER HINWEIS: 
Die monatliche Gesamtbelastung (Pauschalmiete) von € 1.041,25 ist inkl. BK, jedoch exkl. USt > Endpreis € 1.249,50

Zusätzlich können noch weitere Lagerflächen - auch Teilflächen - angemietet werden.

Lager

€/m² Netto*
Nettomiete*
 Traglast/m²

Erdgeschoss
266,07
8,50
€ 2.261,60
ca. 1000 KG

1. Kellergeschoss
245,38
8,50
€ 2.085,73
ca. 500 KG

2. Kellergeschoss
263,29
8,50
€ 2.237,96
unbegrenzt

3. Obergeschoss
308,38
8,50
€ 2.621,23
ca. 500 KG

4. Obergeschoss
298,50
8,50
€ 2.537,25
ca. 500 KG

5. Obergeschoss
211,68
8,50
€ 1.799,28
ca. 500 KG

* zzgl. 20 % USt.
Die Vergebührung für das Finanzamt richtet sich nach der Befristung.

Lage und Infrastruktur:
Die Lagerflächen liegen zentral und quasi direkt beim Hauptbahnhof, der eine optimale Verbindung ins Stadtzentrum und über Land bietet. Eine gute Erreichbarkeit ist dadurch gewährleistet.

Öffentliche Anbindungen:
- Straßenbahn: O
- Buslinie: 14A
- U-Bahn: U1 Station Keplerplatz
- Hauptbahnhof
_ _ _ _ _ _ _ _ _ _ _ _ _ _ _ 

Über weitere Informationen zu diesem bzw. ähnlichen Objekten aus unserem bestehenden Wohnungsportfolio informieren wir Sie sehr gerne persönlich auf Anfrage unter:

Mag. Hannes Dobnikar
+43 (0)664 344 73 73
h.dobnikar@immovent.at

Im Falle einer erfolgreichen Vermittlung stellen wir 3 BMM zzgl. 20 % USt als Provision in gesetzlicher Höhe in Rechnung.

Die obigen Angaben über dieses Objekt erfolgen mit der Sorgfalt eines ordentlichen Immobilienmaklers und basieren auf den Angaben und Informationen des Eigentümers. Daher können wir keine Gewähr für die Richtigkeit der Angaben leisten.

Hinweis gemäß Energieausweisvorlagegesetz: Ein Energieausweis wurde vom Eigentümer bzw. Verkäufer, nach unserer Aufklärung über die generell geltende Vorlagepflicht, sowie Aufforderung zu seiner Erstellung noch nicht vorgelegt. Daher gilt zumindest eine dem Alter und der Art des Gebäudes entsprechende Gesamtenergieeffizienz als vereinbart. Wir übernehmen keinerlei Gewähr oder Haftung für die tatsächliche Energieeffizienz der angebotenen Immobilie.

Infrastruktur / Entfernungen

Gesundheit
Arzt <250m
Apotheke <250m
Klinik <250m
Krankenhaus <1.250m

Kinder & Schulen
Schule <250m
Kindergarten <250m
Universität <1.250m
Höhere Schule <1.750m

Nahversorgung
Supermarkt <250m
Bäckerei <500m
Einkaufszentrum <500m

Sonstige
Geldautomat <250m
Bank <500m
Post <500m
Polizei <250m

Verkehr
Bus <250m
U-Bahn <500m
Straßenbahn <250m
Bahnhof <500m
Autobahnanschluss <2.000m

Angaben Entfernung Luftlinie / Quelle: OpenStreetMap
Beschreibung weiterlesen

Lage und Verkehrsanbindung

Keplerplatz (U-Bahnstation)

Dokumente

Grundriss

Lageplan

1100 Wien | Wien 10., Favoriten

Lade...
Hannes Dobnikar

Hannes Dobnikar
Geschäftsführung

Immovent GmbH

Lade...

Fotomix

Bild 1 Bild 2 Bild 3 Bild 4 Bild 5 Bild 6 Bild 7 Bild 8 Bild 9 Bild 10 Bild 11 Bild 12