NEU - Trafik in TOP Lage mit gutem Kundenstock

Einzelhandel zum Kauf in 1030 Wien - Kaufpreis: 239.000 € / Objektnummer: 1806
01_Verkaufslokal
02_Verkaufslokal
03_Verkaufslokal
04_Strassensicht
05_Lager
06_Lager_2
07_Juchgasse
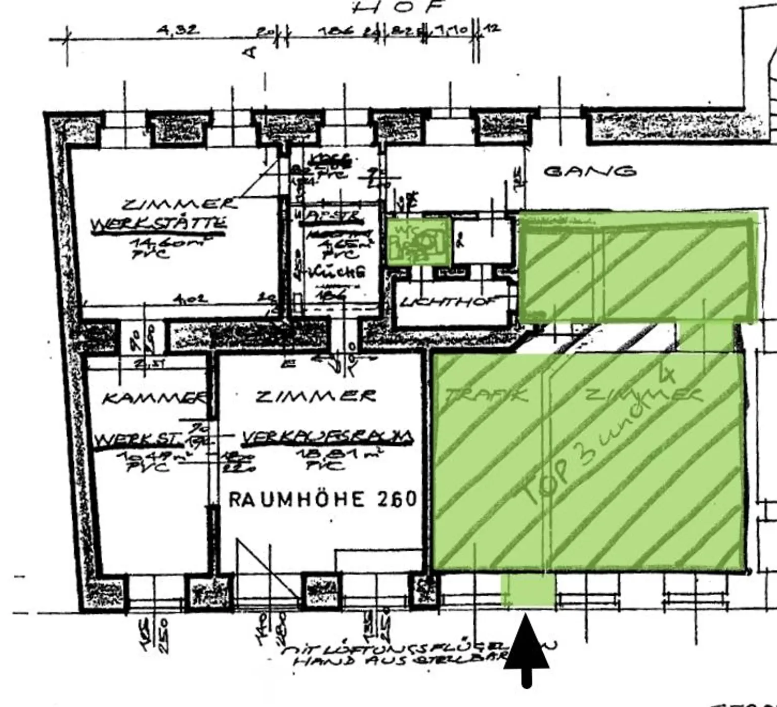
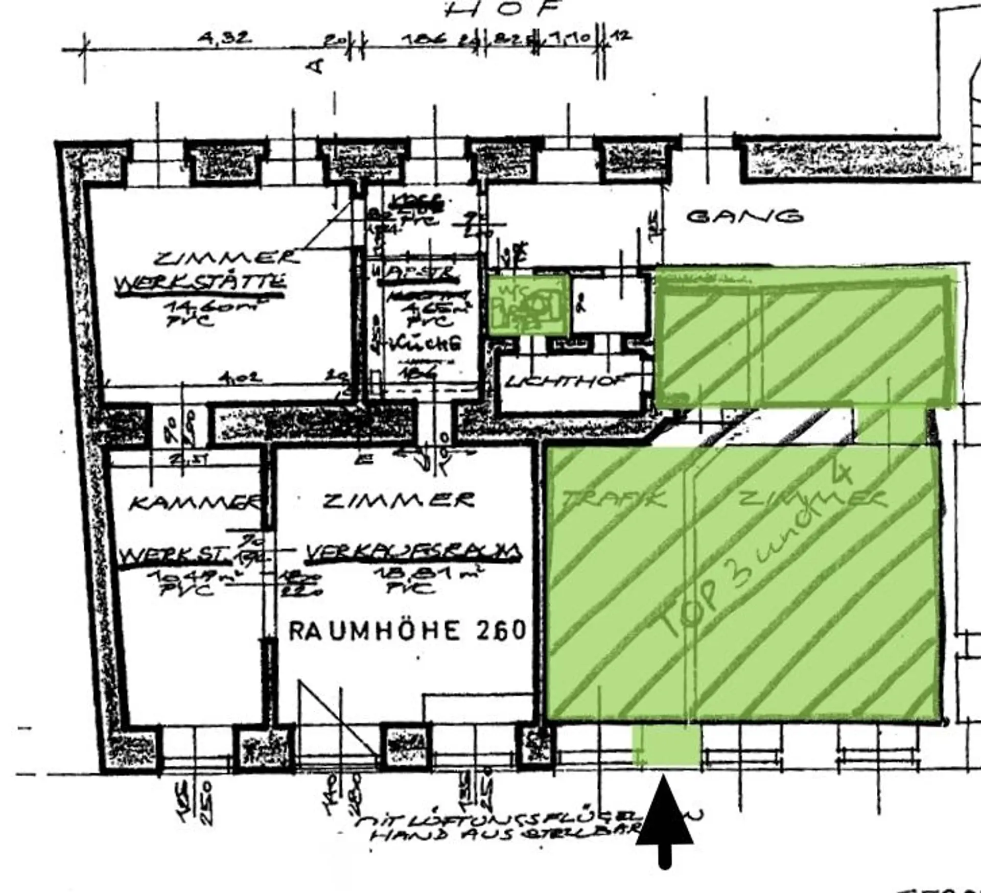
Plan

Preisinformationen

Kaufpreis:
239.000 €
Betriebskosten netto:
84,94 € / Monat
Preisinfos:
Verhandlungsbasis
Provision:
3.00 %

Fakten

Objektnummer:
1806
Objekttyp:
Einzelhandel
Nutzfläche:
38 m²
Toilette:
1
Zustand:
Gepflegt
Verfügbarkeit:
Verfügbar

Beschreibung

LAGE

Einen Steinwurf vom Spital Rudolfstiftung und 100 m von der Landstraßer Hauptstraße entfernt liegt unser gut eingeführte Trafik in guter Frequenzlage. Busverbindungen mit der Linie 77A und 74A sind unweit des Geschäftslokales.


BESCHREIBUNG:
In sehr guter Lage in der Juchgasse befindet sich unsere Trafik mit einer Gesamtfläche von 37,4 m², welche ab Mai 2026 auf 10 Jahre vermietet werden wird. Hier sind Sie im dritten Bezirk sehr gut präsent und gut aufgehoben, denn die Fußgängerfrequenz ist durch die naheliegende Rudolfstifung als sehr gut zu bezeichnen und durch naheliegende Lokale und Kaffehäuser auch weiter aufgewertet. Des Weiteren hat die Trafik einen guten Stammkundenstock.

OBJEKT:
Das Gebäude ist Altbau und das Geschäftslokal wurde wurde 2012 komplett neu eingerichtet und immer wieder geringfügig adaptiert. Das Geschäft ist fast barrierefrei (mini Stufe) und ebenerdig zu betreten. Die neuen Mieter sind bereits bei der Tabakmonopol gemeldet.

PREIS:
Kaufpreis: VB € 239.000,-
Die jährlichen Mieteinnahmen werden ~ € 9.252,- betragen und sind indexgesichert.

Wenn ich Ihr Interesse geweckt habe, würde ich mich über Ihre Kontaktaufnahme freuen um Ihre Fragen beantworten zu können.


Wir weisen darauf hin, dass zwischen dem Vermittler und dem Auftraggeber ein wirtschaftliches Naheverhältnis besteht. Der Vermittler ist als Doppelmakler tätig.
In Entsprechung des FAGG (Fern- und Auswärtsgeschäfte-Gesetz) und des VRUG (Verbraucherrechte-Richtlinie-Umsetzungsgesetz) ist es uns leider nur mehr möglich, Termine nach Erhalt einer schriftlichen Anfrage mit vollständigen Kontaktdaten zu vereinbaren. Dies gilt ebenso für die Nennung relevanter Informationen wie z.B. der Lage. Sehr gerne sind wir auf diesem Wege bereit, die gewünschten Informationen und Unterlagen samt Adresse an Sie zu senden.
Unbedingt erforderlich sind:
+ Vor- und Nachname
+ aktuelle Meldeadresse (Hauptwohnsitz)
+ Telefonnummer
+ E-Mail Adresse

Hinweis zu Widerrufsrecht, Rücktrittsrecht bei Fern- und Auswärtsgeschäften: Gem. §11 FAGG (Fern- und Auswärtsgeschäftegesetz) kann der Interessent innerhalb von 14 Tagen vom Vertrag zurücktreten. Wünscht der Interessent mit der Kontaktaufnahme ein vorzeitiges Tätigwerden (Namhaftmachung und Adresse der Immobilie) des Immobilienbüros RE/MAX Welcome innerhalb der offenen Rücktrittsfrist, verzichtet er damit auf das Rücktrittsrecht vom Maklervertrag gem. §11 FAGG.
Sie finden alle unsere Objekte 2 Tage früher auf www.remax.at!
Beschreibung weiterlesen

Lageplan

1030 Wien | Wien 3., Landstraße

Lade...
Herwig Froschauer

Herwig Froschauer

RE/MAX Welcome in Baden

Lade...

Fotomix

01_Verkaufslokal 02_Verkaufslokal 03_Verkaufslokal 04_Strassensicht 05_Lager 06_Lager_2 07_Juchgasse Plan