NEU - Traumhafte 5-Zimmer Altbauwohnung mit zwei Balkonen

Wohnung zur Miete in 1010 Wien - Gesamtmiete: 4.195,00 € / Objektnummer: 25957
Ausstattung: Boden Fahrstuhl Bad Gäste-WC Abstellraum Etagenheizung Balkon

Preisinformationen

Gesamtmiete:
4.195,00 € / Monat
Betriebskosten netto:
369,34 € / Monat
Umsatzsteuer:
381,36 €
Kaution:
3 Bruttomonatsmieten
Provision:
Gemäß Erstauftraggeberprinzip bezahlt der Abgeber die Provision.

Fakten

Objektnummer:
25957
Objekttyp:
Wohnung
Balkon:
2
Wohnfläche:
186 m²
Zimmer:
5
Badezimmer:
2
Toilette:
2
Stockwerk:
2
Altbau:
Ja
Verfügbarkeit:
Verfügbar

Beschreibung

Highlights

* Wiener Altbaucharme
* Stuck und Flügeltüren
* Hochwertiger Fischgrätparkett
* 5 Zimmer
* 2 Balkone
* Neue EWE-Küche mit Markengeräten
* Optimale Raumaufteilung
* Dusche und Badewanne
* Ausgezeichnete Anbindung und Infrastruktur

 

Objektbeschreibung:

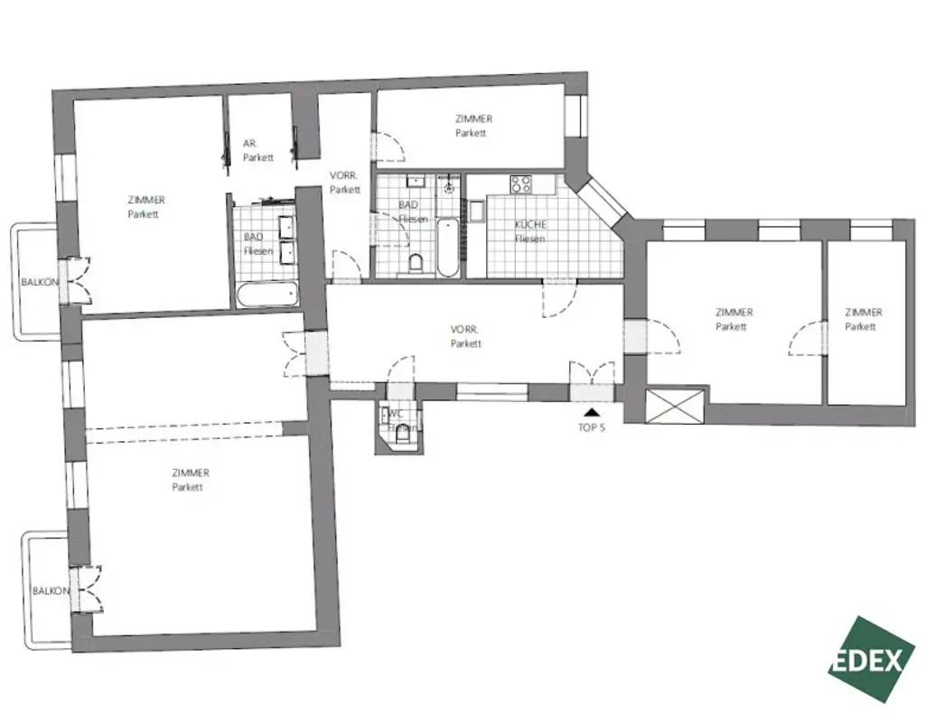
Diese traumhafte ca. 186 m² große Altbauwohnung liegt im 2. Liftstock eines gepflegten Wiener Altbaus und befindet sich in der Schellinggasse im 1. Wiener Gemeindebezirk. Die optimal geschnittene Wohnung gliedert sich wie folgt:

* Großzügiger Vorraum
* Separate Küche mit Fenster in den Innenhof

* 5 Zimmer 

* Großzügiges Wohnzimmer mit Balkon
* Schlafzimmer mit Balkon und angrenzendem Abstell- bzw. begehbarem Kleiderschrank
* 3 weitere Zimmer

* Separate Toilette mit Handwaschbecken
* Badezimmer mit Doppelwaschbecken und Badewanne 
* Badezimmer mit Dusche, Badewanne, Toilette und Waschmaschinenanschluss  

Die Wohn- bzw. Schlafräume sind mit hochwertigen Fischgrätparkett und die Nassräume mit modernen Fließen ausgestattet. 

 

Disclaimer

Die in diesem Exposé enthaltenen Bilder dienen der Veranschaulichung und können teilweise computergenerierte Visualisierungen (Renderings) beinhalten. Diese Darstellungen sollen einen Eindruck von der möglichen Gestaltung der Immobilie vermitteln, stellen jedoch keine verbindliche Beschaffenheitsangabe dar. Die abgebildeten Möbel und Einrichtungsgegenstände dienen ausschließlich der Illustration und sind nicht Bestandteil des Kauf- oder Mietgegenstandes.

Der Immobilienmakler erklärt, dass er – entgegen dem in der Immobilienwirtschaft üblichen Geschäftsgebrauch des Doppelmaklers – einseitig nur für den Vermieter tätig ist.

Infrastruktur / Entfernungen

Gesundheit
Arzt <500m
Apotheke <500m
Klinik <1.000m
Krankenhaus <1.000m

Kinder & Schulen
Schule <500m
Kindergarten <500m
Universität <500m
Höhere Schule <500m

Nahversorgung
Supermarkt <500m
Bäckerei <500m
Einkaufszentrum <500m

Sonstige
Geldautomat <500m
Bank <500m
Post <500m
Polizei <1.000m

Verkehr
Bus <500m
U-Bahn <500m
Straßenbahn <500m
Bahnhof <500m
Autobahnanschluss <3.000m

Angaben Entfernung Luftlinie / Quelle: OpenStreetMap
Beschreibung weiterlesen

Lage und Verkehrsanbindung

Innere Stadt, Stadtpark, Stubentor, Schwarzenbergplatz

Innere Stadt

Energieeffizienz

HWB:
114,7 kWh/(m²*a)
HWB Klasse:
D
fGEE:
2,01
fGEE Klasse:
D
Energieausweisart:
Energiebedarfs-ausweis
Gültig bis:
18.10.2033

Grundriss

Lageplan

1010 Wien | Wien 1., Innere Stadt

Lade...
Thomas Prendinger, MSc

Thomas Prendinger, MSc
Leitung Projektverkauf

EDEX Immobilien GmbH

Lade...

Fotomix

Bild 1 Bild 2 Bild 3 Bild 4 Bild 5 Bild 6 Bild 7 Bild 8 Bild 9 Bild 10 Bild 11 Bild 12 Bild 13 Bild 14 Bild 15 Bild 16 Bild 17 Bild 18 Bild 19 Bild 20 Bild 21