NEU - Traumhafte Balkonwohnung I 4 Zimmer I Holzbauweise

Wohnung zum Kauf in 2372 Gießhübl - Kaufpreis: 567.200 € / Objektnummer: 61481
Ausstattung: Barrierefrei Boden Fahrstuhl Wohnküche / offene Küche Bad Tiefgarage Parkplatz Zentralheizung Fußbodenheizung Balkon

Preisinformationen

Kaufpreis:
567.200 €
Vermittlungsprovision:
Ja
Provision:
3% des Kaufpreises zzgl. 20% USt.

Fakten

Objektnummer:
61481
Objekttyp:
Wohnung
Balkon:
1
Balkonfläche:
15,96 m²
Keller Fläche:
2,74 m²
Wohnfläche:
90,66 m²
Zimmer:
4
Badezimmer:
1
Toilette:
2
Stockwerk:
1
Baujahr:
2023
Neubau:
Ja
Zustand:
Erstbezug
Verfügbarkeit:
Verfügbar

Beschreibung

Für eine noch größere Auswahl an Immobilien besuchen Sie www.akkadia.at [http://www.akkadia.at].

Dieses außergewöhnliche Neubauprojekt vereint moderne Architektur, höchste Wohnqualität und eine nachhaltige Bauweise in perfekter Harmonie.
Im Jahr 2023 entstanden vier baugleiche Stadtvillen mit insgesamt 36 barrierefreien Wohnungen, errichtet in energieeffizienter Holzbauweise.
Jede Einheit verfügt über ein Kellerabteil. Abstellflächen für Fahrräder und Kinderwägen sind vorhanden.
Tiefgaragenplätze sind optional erwerbbar und runden das Angebot ab.

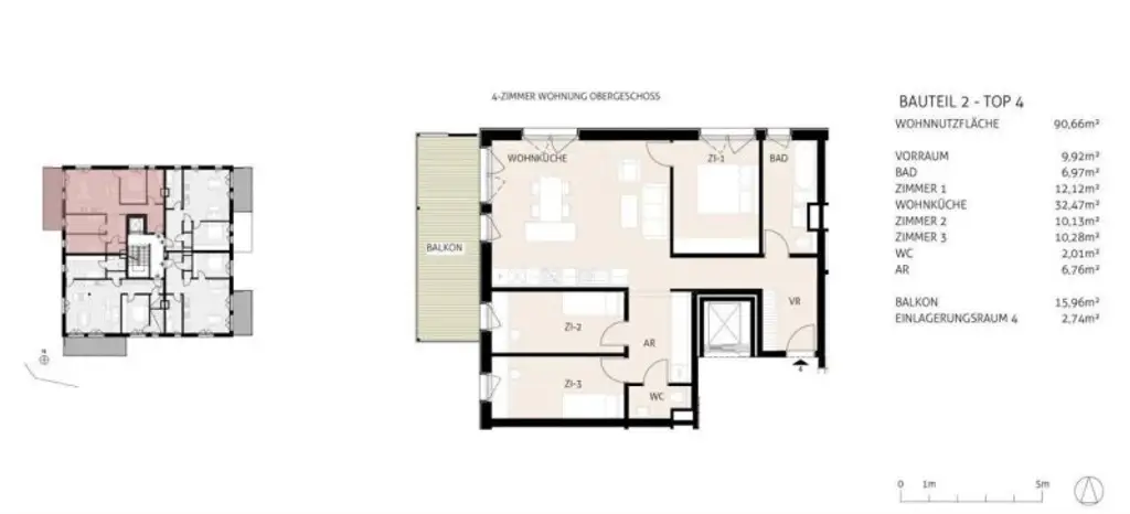
Die gegenständliche Wohnung befindet sich im ersten Liftstock von Haus 2 und verfügt über eine Wohnfläche von ca. 91 m². Hier stehen Ihnen ein geräumiges Vorzimmer, eine Wohnküche mit vorgelagertem Balkon, drei Schlafzimmer, ein Badezimmer mit Wanne und WC, eine Gästetoilette und ein Abstellraum zur Verfügung.

„Auf Grund der EU-Richtlinien zum Fernabsatz- und Auswärtsgeschäfte-Gesetz bitten wir um Ihr Verständnis, dass wir Ihnen seit 13. Juni 2014 die Objekt-Unterlagen erst nach Ihrer Bestätigung, dass Sie unser Tätigwerden wünschen und über Ihre Rücktrittsrechte aufgeklärt wurden, zusenden können. Bevor Sie die Unterlagen zugesendet bekommen, erhalten Sie eine Mail in der Sie diese beiden Punkte bestätigen müssen. Vielen Dank für Ihr Vertrauen!“

Infrastruktur / Entfernungen

Gesundheit
Arzt <400m
Apotheke <900m
Klinik <2.650m
Krankenhaus <525m

Kinder & Schulen
Schule <475m
Kindergarten <750m
Höhere Schule <3.575m
Universität <9.875m

Nahversorgung
Supermarkt <925m
Bäckerei <1.325m
Einkaufszentrum <3.125m

Sonstige
Bank <1.200m
Geldautomat <1.450m
Post <1.475m
Polizei <1.650m

Verkehr
Bus <175m
U-Bahn <5.425m
Straßenbahn <4.100m
Bahnhof <2.525m
Autobahnanschluss <800m

Angaben Entfernung Luftlinie / Quelle: OpenStreetMap
Beschreibung weiterlesen

Lage und Verkehrsanbindung

Dieses traumhafte Projekt südlich von Wien in Gießhübl besticht durch seine außergewöhnliche Lage und vereint auf perfekte Weise urbanes Wohnen mit naturnahem Erholungsraum.
Die idyllische Umgebung schafft eine Atmosphäre der Ruhe und Entspannung und lädt zum Abschalten vom Alltag ein.
Dank der hervorragenden Anbindung an den öffentlichen Verkehr – unter anderem durch die VOR-Buslinie 262 sowie die Schnellbahn – und die optimale Erreichbarkeit über das Straßennetz mit der nahegelegenen Außenringautobahn (A21) ist eine ausgezeichnete Mobilität gewährleistet.
Eine erstklassige Nahversorgung sowie vielfältige Freizeit- und Erholungsmöglichkeiten in unmittelbarer Umgebung runden das Angebot ab und garantieren höchste Lebensqualität.

Energieeffizienz

HWB:
28,7 kWh/(m²*a)
HWB Klasse:
B
fGEE:
0,71
fGEE Klasse:
A
Energieausweisart:
Energiebedarfs-ausweis

Grundrisse

Lageplan

2372 Gießhübl | Mödling

Lade...
Michael Schlaffer

Michael Schlaffer
Berater | Consultant

AKKADIA Immobilienvermittlung GmbH

Virtuelle Tour

Lade...

Fotomix

Bild 1 Bild 2 Bild 3 Bild 4 Bild 5 Bild 6 Bild 7 Bild 8 Bild 9 Bild 10 Bild 11 Bild 12 Bild 13 Bild 14