NEU - TRAUMHAFTE Balkonwohnung mit 2 Zimmern und Tiefgaragenparkplatz in St. Peter

Wohnung zur Miete in 8042 Graz-St. Peter - Gesamtmiete: 599,99 € / Objektnummer: 5971/5093
Ausstattung: Boden Fahrstuhl Bad Garage Tiefgarage Parkplatz Zentralheizung Fußbodenheizung Balkon

Preisinformationen

Gesamtmiete:
599,99 € / Monat
Nettomiete:
383,21 € / Monat
Betriebskosten netto:
162,24 € / Monat
Monatliche Kosten USt.:
54,54 €
Umsatzsteuer:
54,54 €
Kaution:
3 Bruttomonatsmieten
Provision:
Gemäß Erstauftraggeberprinzip bezahlt der Abgeber die Provision.

Fakten

Objektnummer:
5971/5093
Objekttyp:
Wohnung
Balkon:
1
Balkonfläche:
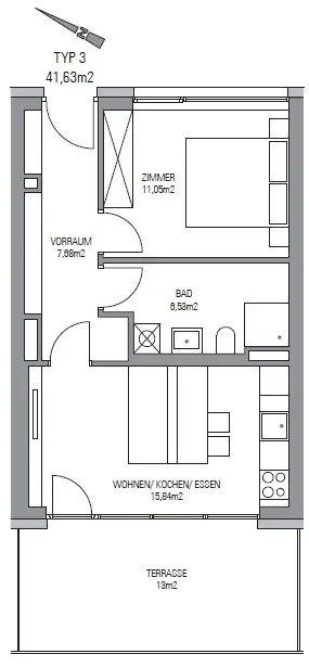
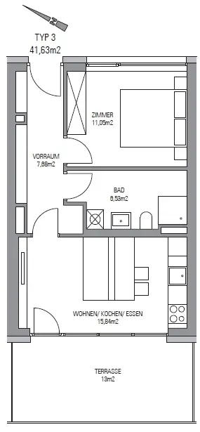
13,63 m²
Wohnfläche:
42 m²
Zimmer:
2
Stockwerk:
1. Etage
Baujahr:
2018
Neubau:
Ja
Zustand:
Neuwertig
Verfügbarkeit:
Verfügbar

Beschreibung

BEZUGSFERTIG: ab sofort

Weitere Informationen unter: +43 664 500 92 10

Bruttomiete inkl. BK und Tiefgarage: € 697,02

 

Diese Wohnung liegt im Bezirk St. Peter, im beliebten Wohnbezirk in Graz. Durch den großen Grünanteil und die gute Infrastruktur ist dieser Außenbezirk eine beliebte Wohngegend und besticht durch gute Lebensqualität. Kindergarten, Schulen, Kulinarik- und Kulturangebote sowie Naherholungsgebiete sind in unmittelbarer Umgebung der Wohnung situiert. 

Diese Wohnung verfügt über einen kompakten und unglaublich vorteilhaften Grundriss und einer gemütlichen Terrasse, in der genug Platz ist um sich zu erholen und das schöne Wetter zu genießen. Ebenfalls verfügt das Objekt über einen Lift, ein privates Kellerabteil und einen zugewiesenen Tiefgaragenplatz. 

AUSSTATTUNG 

  • moderne Einbauküche und Sanitärausstattung
  • hochwertiges Eichenparkett in Wohn- und Schlafräumen
  • Kunststofffenster mit 3-fach-Isolierverglasung
  • außenliegende Rolläden in Wohn- und Schlafräumen
  • Balkon/Terrasse 
  • Garage
  • Kellerabteil
  • Aufzug

Weitere Informationen unter: +43 664 500 92 10 

Der Immobilienmakler erklärt, dass er – entgegen dem in der Immobilienwirtschaft üblichen Geschäftsgebrauch des Doppelmaklers – einseitig nur für den Vermieter tätig ist.

Beschreibung weiterlesen

Lage und Verkehrsanbindung

GRAZ / ST.PETER
AUTOBAHN
BUS UND STRASSENBAHN
SCHULEN UND KINDERGARTEN IN DER NÄHE
GESCHÄFTE DES TÄGLICHEN BEDARFS ZU FUSS ERREICHBAR

Energieeffizienz

HWB:
41,4 kWh/(m²*a)
HWB Klasse:
B
fGEE:
0,57
fGEE Klasse:
A+
Energieausweisart:
Energiebedarfs-ausweis
Gültig bis:
06.05.2026

Lageplan

8042 Graz-St. Peter | Graz (Stadt)

Lade...
Hr. Trabi

Hr. Trabi

Immotura Consulting GmbH

Lade...

Fotomix

Bild 1 Bild 2 Bild 3