NEU - Traumhafte Gartenoase in Zirl

Sonstige zum Kauf in 6170 Zirl - Kaufpreis: 85.000 € / Objektnummer: 391
Aussicht
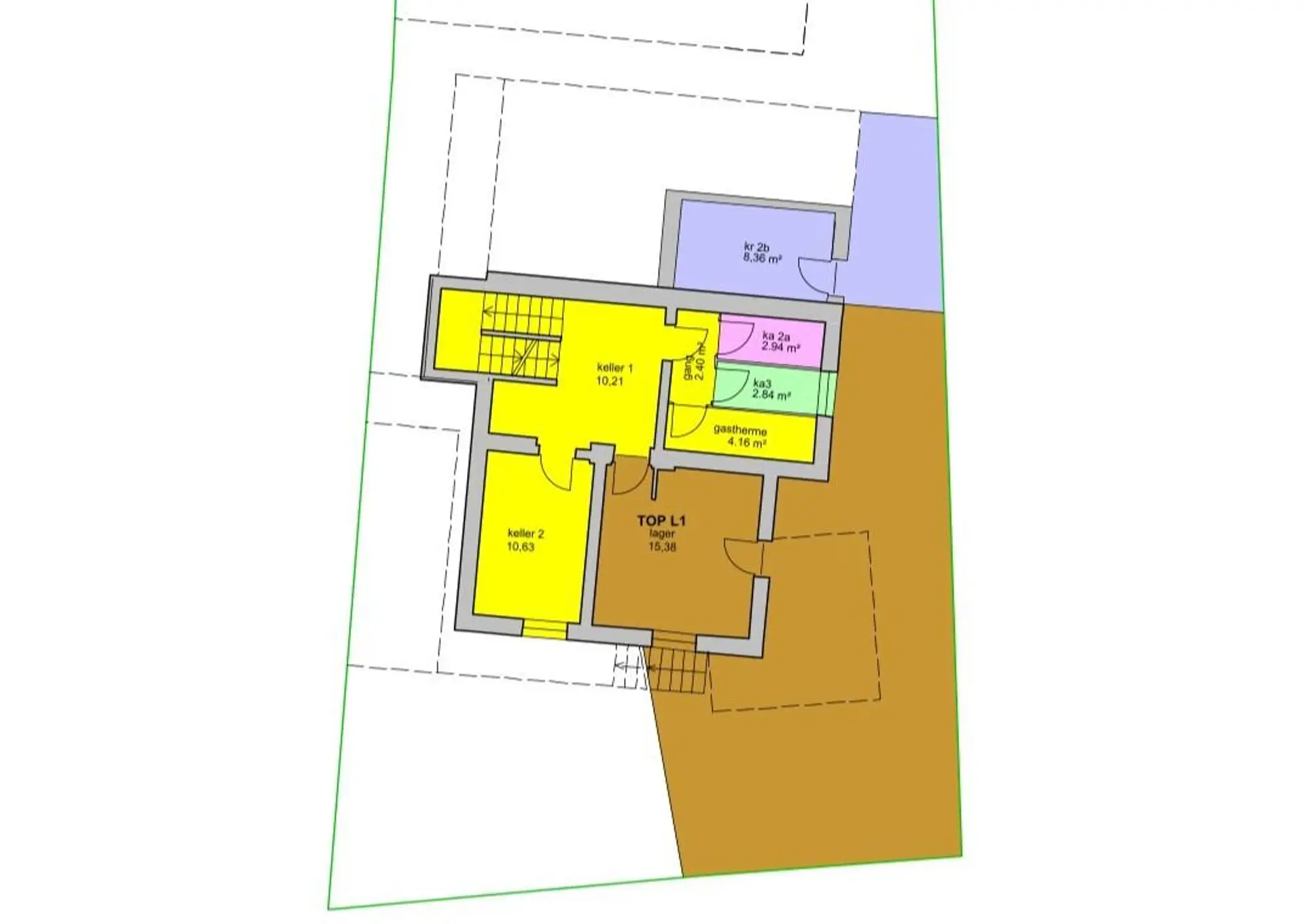
Plan

Preisinformationen

Kaufpreis:
85.000 €

Fakten

Objektnummer:
391
Objekttyp:
Sonstige
Nutzfläche:
15,38 m²
Verfügbarkeit:
Verfügbar

Beschreibung

In ruhiger Lage von Zirl wird eine Lagerfläche mit ca. 15,38 m² frei. Die Einheit eignet sich ideal als Stauraum oder für individuelle Nutzungsmöglichkeiten.

Ein besonderes Highlight ist der großzügige Garten mit ca. 88,20 m², der viel Potenzial für eine persönliche Gartenoase bietet.

Die Kombination aus praktischer Fläche und ruhiger Umgebung macht dieses Objekt besonders attraktiv. Zusätzliche Keller- und Nebenflächen im Gebäude bieten weiteren Nutzen

AUF EINEN BLICK:

- Lagerfläche: ca. 15,38 m²
- Garten: ca. 88,20 m²
- Preis: 85.000.-

Nebenkostenübersicht:
- 3,5 % Grunderwerbsteuer an das Finanzamt
- 1,1 % Eintragungsgebühr für das Eigentumsrecht
- Provisionsfrei für den Käufer
- Kosten für die Errichtung des Kaufvertrages plus Barauslagen

Für Fragen oder einen unverbindlichen Besichtigungstermin stehen wir Ihnen jederzeit gerne zur Verfügung.
Es werden nur Anfragen mit vollständigen Kontaktdaten (Name, Adresse, Telefonnummer…) bearbeitet!
Alle Angaben nach bestem Wissen. Irrtum und Zwischenverkauf vorbehalten. Dieses Exposé ist eine Vorinformation, als Rechtsgrundlage gilt alleine der abgeschlossene Kaufvertrag. §15 der Maklerverordnung gilt als vereinbart.

Ihr persönlicher Ansprechpartner:
Benjamin Grunser
Tel. +43 676 626 1988
Mail. office@grunser.com
Schöpfstraße 6a
6020 Innsbruck
Beschreibung weiterlesen

Lageplan

6170 Zirl | Innsbruck-Land

Lade...
Benjamin Grunser

Benjamin Grunser

Immobilienkanzlei Grunser GmbH

Lade...

Fotomix

Aussicht Plan