NEU - Traumhafte Innenstadtwohnung inkl. Küche - Ideal für Anleger oder Eigennutzer

Wohnung zum Kauf in 4020 Linz - Kaufpreis: 190.000 € / Objektnummer: 2711
Ausstattung: Barrierefrei Fahrstuhl Kabel/Satelliten-TV Zentralheizung
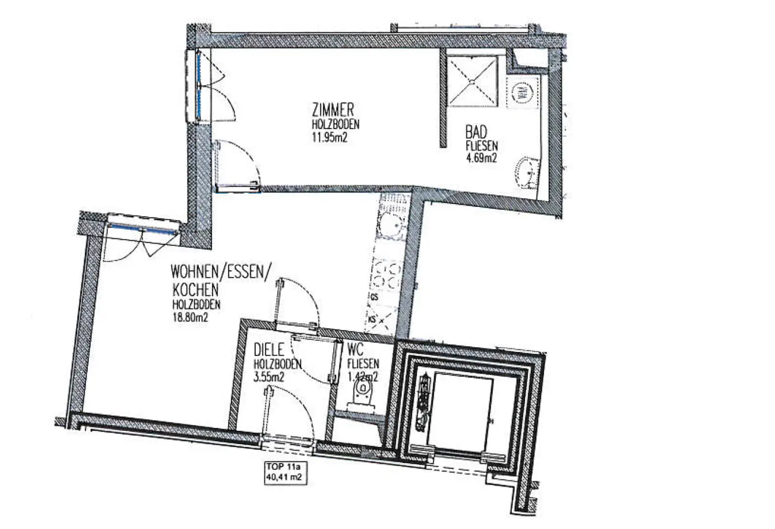
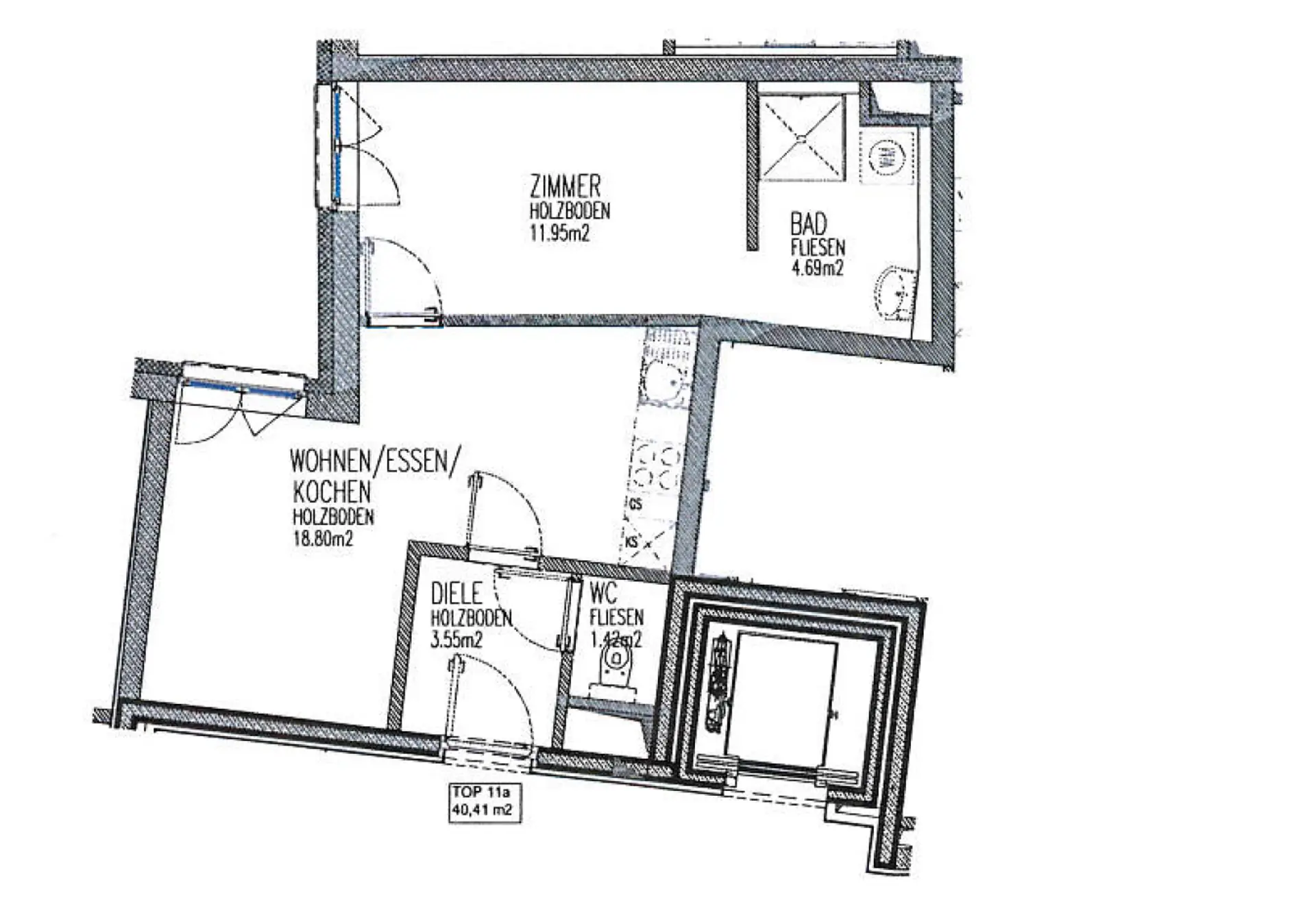
Grundrissplan

Preisinformationen

Kaufpreis:
190.000 €
Betriebskosten netto:
160,59 € / Monat
Provision:
3.00 %

Fakten

Objektnummer:
2711
Objekttyp:
Wohnung
Wohnfläche:
40,41 m²
Zimmer:
2
Badezimmer:
1
Toilette:
1
Stockwerk:
2
Baujahr:
ca. 2013
Zustand:
Gepflegt
Verfügbarkeit:
Verfügbar

Beschreibung

Hier haben Sie die seltene Möglichkeit eine neuwertige 2 Zimmerwohnung im Herzen von Linz zu erwerben, durch die zentrale Lage ist die Wohnung für Anleger sowie Eigennutzer sehr interessant.

Diese gut geschnittene 2 Zimmerwohnung mit ca. 40,41m² Wohnfläche befindet sich in einer attraktiven Innenstadtlage von Linz und überzeugt durch eine funktionale Raumaufteilung sowie die perfekte Infrastruktur. Die Wohnung befindet sich in einem neuwertigen Wohnhaus und bietet auf kompakter Wohnfläche alles, was modernes Stadtwohnen erfordert. Diese besteht aus einem Wohnbereich mit integrierter Küche, einem Schlafzimmer mit angrenzendem Badezimmer, Vorraum und WC. Weiters verfügt die Wohnung über einen Fernwärmeanschluss, Fußbodenheizung, eine Wohnraumlüftung sowie eine Oberlichte im Schlafzimmer. Ein weiteres Highlight der Wohnung sind die bodentiefen Fenster im Wohnbereich Richtung Innenhof.

Die Innenstadtwohnung eignet sich hervorragend als Anlegerwohnung, bietet jedoch ebenso beste Voraussetzungen für einen Eigennutzer, sei es als Stadtwohnung, Single- oder Pärchenhaushalt.

Allgemeinräumlichkeiten sowie ein zugeordnetes Kellerabteil und ein begrünter Innenhof stehen in diesem Objekt ebenfalls zur Verfügung.
Ein Energieausweis mit einem HWB von 19 kWh/m²a ist vorhanden.

Für nähere Informationen steht Ihnen unser Herr Gansterer Gerald unter 0664805565689 sowie gerald.gansterer@oberbank.at jederzeit und unverbindlich zur Verfügung.
Angaben gemäß gesetzlichem Erfordernis:
Heizwärmebedarf: 19.0 kWh/(m²a)
Klasse Heizwärmebedarf: A
Faktor Gesamtenergieeffizienz: 0.59
Klasse Faktor Gesamtenergieeffizienz: A+
Beschreibung weiterlesen

Energieeffizienz

HWB:
19 kWh/(m²*a)
HWB Klasse:
A
fGEE:
0,59
fGEE Klasse:
A+
Energieausweisart:
Energiebedarfs-ausweis

Lageplan

4020 Linz | Linz (Stadt)

Lade...
Gerald Gansterer

Gerald Gansterer

Oberbank Immobilien-Service GesmbH

Lade...

Fotomix

Bild 1 Bild 2 Bild 3 Bild 4 Bild 5 Bild 6 Bild 7 Bild 8 Bild 9 Bild 10 Bild 11 Bild 12 Grundrissplan