NEU - Traumhaus am Bartholomäberg – Modernes Wohnen mit Weitblick

Haus zum Kauf in 6781 Bartholomäberg / Objektnummer: 6446
Visualisierung Einfamilienhau
Lageskizze
Visualisierung
Visualisierung
Visualisierung
Visualisierung
Visualisierung
Visualisierung
Visualisierung
Visualisierung
Visualisierung
Visualisierung
Ansicht
Ansicht
Ansicht
Ansicht
Ansicht
Ansicht
Ansicht
Ansicht
Lageplan
Adressplan
Flächenwidmungsplan
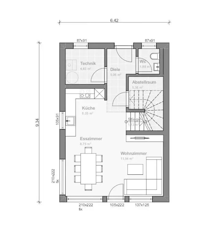
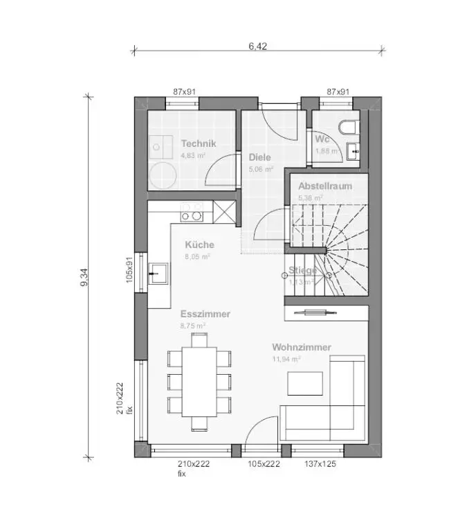
Erdgeschoss
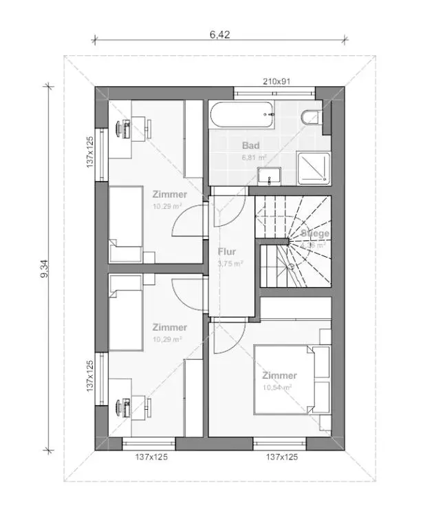
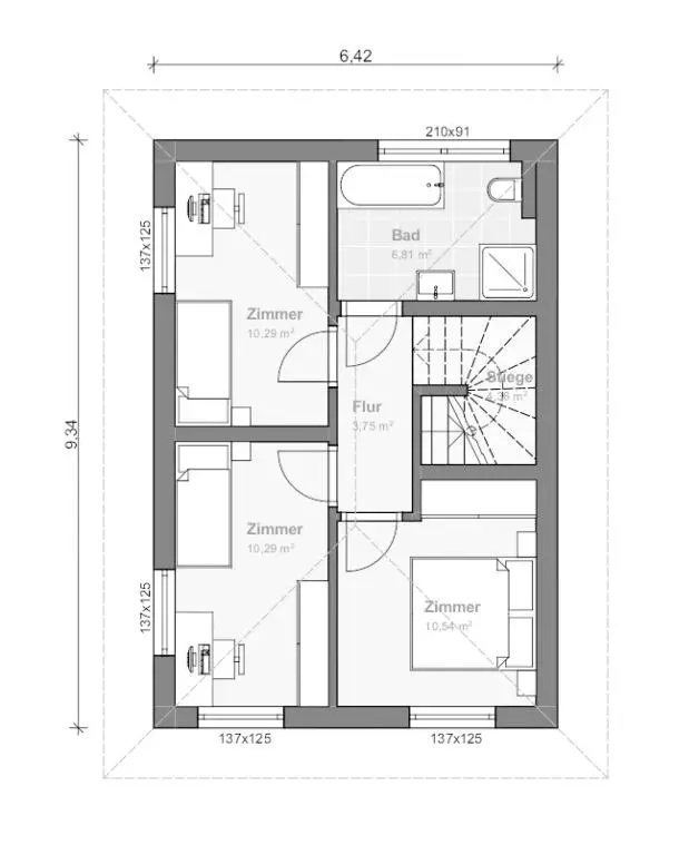
Obergeschoss

Preisinformationen

Provision:
3.00 %

Fakten

Objektnummer:
6446
Objekttyp:
Haus
Wohnfläche:
93 m²
Grundstücksfläche:
240 m²
Zimmer:
4
Baujahr:
2026
Verfügbarkeit:
Verfügbar

Beschreibung

+ Einfamilienhaus Smart Life 93 mit 93 m² Nettogrundrissfläche, Schlüsselfertig
+ 20° Walmdach fertig eingedeckt inkl. Dachvorsprung
+ Ziehtreppe in Dachboden
+ Fertige Sanitär- und umfangreiche Elektroinstallationen
+ Luft-Wasser-Wärmepumpe mit Fußbodenheizung inkl. Kühlfunktion
+ 3-fach verglaste Kunststoff-Alu-Fenster
+ Alu-Rollläden inkl. E-Antrieb mit Fernbedienung
+ Photovoltaik-Anlage 5 kWp
+ Fugenloser Fassadenputz auf der Baustelle aufgebracht
+ Fundamentplatte inkl. anteilige Erschließungskosten und Erdarbeiten
+ Anschlussgebühren (Strom, Wasser und Kanal)
+ Schigebiet Golm und viele Wanderwege, sowie Tennisplatz und Schwimmbad
+ Gute Verkehrsanbindung

Dieses schlüsselfertige Einfamilienhaus „Smart Life 93“ vereint modernes Design, nachhaltige Technik und höchsten Wohnkomfort auf 93 m². Das 20° Walmdach mit elegantem Dachvorsprung verleiht dem Haus einen zeitlosen Charakter, während eine Ziehtreppe den Dachboden mühelos erreichbar macht.

Im Inneren erwarten Sie hochwertige Ausstattung und durchdachte Details: Fertige Sanitärinstallationen, umfangreiche Elektroinstallationen, eine Luft-Wasser-Wärmepumpe mit Fußbodenheizung inklusive Kühlfunktion sorgen für ein angenehmes Raumklima zu jeder Jahreszeit. 3-fach verglaste Kunststoff-Alu-Fenster und Alu-Rollläden mit elektrischem Antrieb garantieren Komfort, Sicherheit und Energieeffizienz. Zusätzlich sorgt eine Photovoltaik-Anlage mit 5 kWp für nachhaltige Energiegewinnung.

Die Außenanlage überzeugt mit fugenlosem Fassadenputz, einer stabilen Fundamentplatte, anteiligen Erschließungskosten und Erdarbeiten.

Die Lage am Bartholomäberg bietet Erholung und Freizeitspaß pur: Ski- und Wanderwege direkt vor der Haustür, Tennisplätze, Schwimmbad und eine gute Verkehrsanbindung machen das Leben hier besonders attraktiv.

Dieses Haus ist ideal für alle, die modernes Wohnen, Komfort und die Nähe zur Natur perfekt verbinden möchten.
- 3,5% Grunderwerbsteuer
- 1,1% Grundbuchseintragung (entfällt bis € 500.000,00)*
- 3,0% Vermittlungsprovision zzgl. 20% MwSt.
- Vertragserrichtungskosten
- Beglaubigungskosten + Barauslagen

*Für Detailinformationen stehen wir Ihnen gerne zur Verfügung.
Beschreibung weiterlesen

Lageplan

6781 Bartholomäberg | Bludenz

Lade...
Alfred Geisinger

Alfred Geisinger

RE/MAX Immowest

Anrufen
Lade...

Fotomix

Visualisierung Einfamilienhau Lageskizze Visualisierung Visualisierung Visualisierung Visualisierung Visualisierung Visualisierung Visualisierung Visualisierung Visualisierung Visualisierung Ansicht Ansicht Ansicht Ansicht Ansicht Ansicht Ansicht Ansicht Lageplan Adressplan Flächenwidmungsplan Erdgeschoss Obergeschoss